Ons kantoor is lid van Baerz & Co Luxury Homes; een internationaal platform dat exclusieve woningmakelaars met elkaar verbindt. Neem contact op met ons secretariaat voor meer informatie over het landelijke aanbod, waarvan u hieronder een selectie kunt bekijken.

BERGEN (NH)
Buerweg 15 - 1861 CG
Netherlands

Frits Wilbrink profile image
Frits Wilbrink
Real Estate Agent
€2,995,000 k.k.
Living Area
344m2
Plot Size
2684m2
Bedrooms
4

Description

This is a truly unique location, featuring a deep garden and unobstructed views over the meadows behind. The artistic gate that marks the entrance to this property already hints that something special awaits. A place where you hear no traffic—only birds singing their beautiful symphonies. A place to unwind and recharge after a busy day. And yet, the vibrant centre of Bergen and the beach are just a few minutes away.

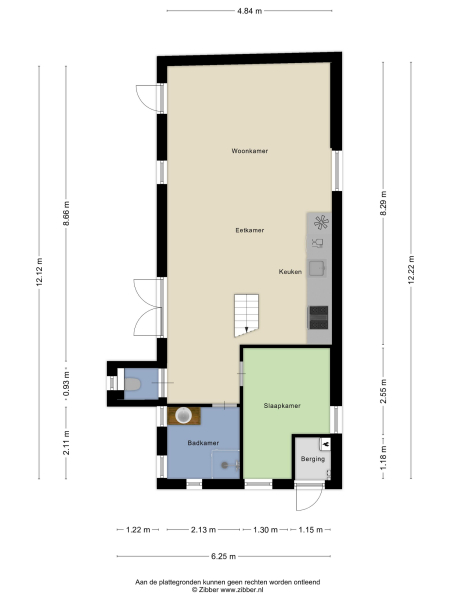
You are welcomed at the front of the plot by a monumental and thatched, mid-18th-century small farmhouse. In 2014, this farmhouse was completely renovated. An ideal place for working at home, a workshop or informal care, for example.

The villa was built in 1984 under architecture and has a modern contemporary look. Through the entrance you enter the hall from where various rooms are accessible. In the hall you will also find a spacious toilet, the stairs to the first floor and the meter cupboard.

We start in the spacious living room, which is very bright and overlooks the lawn towards the meadow behind. A fireplace provides a cozy atmosphere and warmth in the afternoons and evenings.
The modern open kitchen has an island where you can sit together. From here again a beautiful view of the greenery.French doors and a covered heated terrace bring the outside in.The kitchen is equipped with various appliances including a quooker, refrigerator, freezer, steam oven, wine cooler, warming drawer and dishwasher. Cooking is available on the large stove with 4 gas burners, a teppanyaki plate, deep fryer and double oven.
Adjacent to the kitchen is a utility room with sink, cupboard space and door to the outside.

On the first floor there are 2 more rooms, one with door to the outside, now used as a closet room/storage space for shoes and coats. The other generous room faces north and now serves as an office.This is another nice bright room, with French doors, can be used for various purposes.
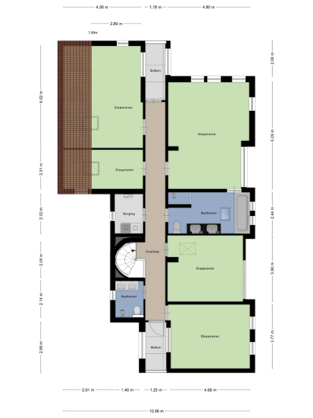
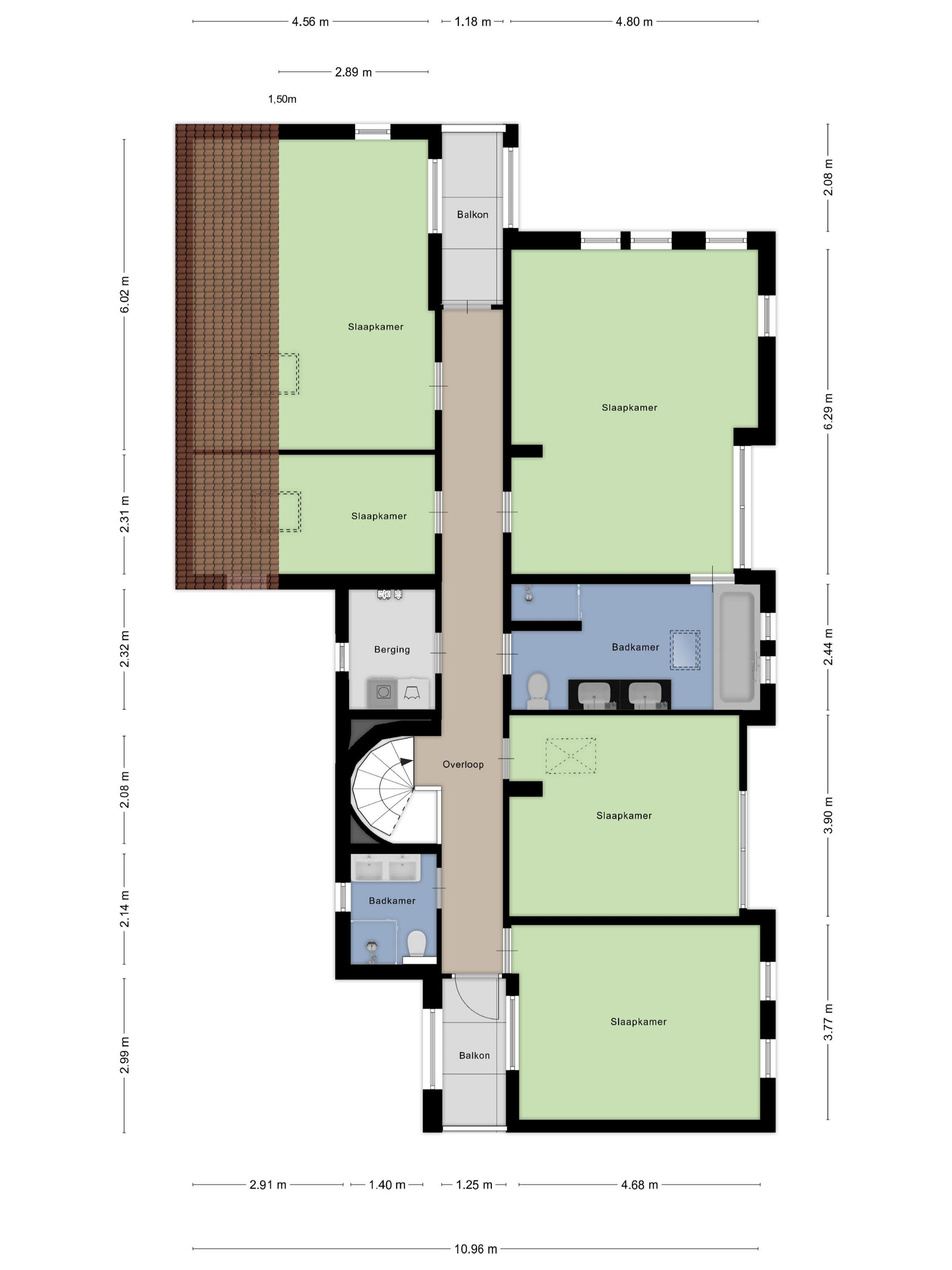
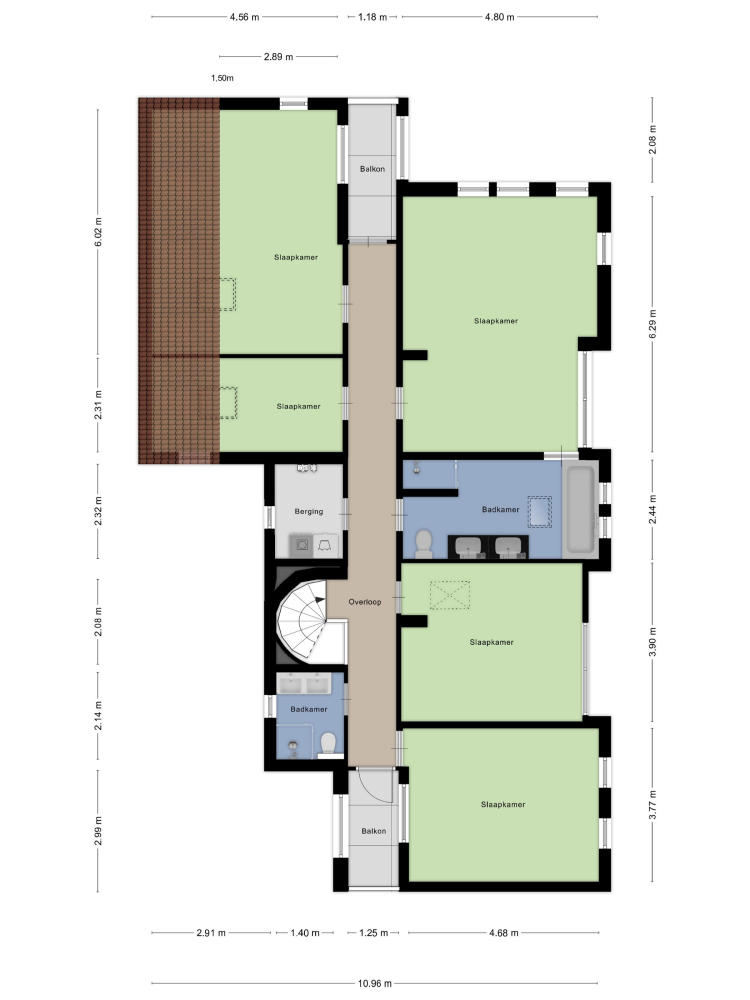
Upstairs on the landing are five rooms. Four rooms can certainly be called generous, the fifth is a smaller room, this is used as a laundry/ironing room but would also be an ideal baby room.
Also located on the landing are 2 bathrooms. The large bathroom has a double sink, bathtub, walk-in shower and toilet, this bathroom is adjacent to the master bedroom.
The other bathroom has a double sink, shower and toilet.

One room provides access to the very spacious attic where, when installing a staircase, several more rooms can be created. Currently, the attic is only accessible via a loft ladder.

Also the technical room is located on this floor, besides the heat pump, boiler and water softener we find here the connections for the washer and dryer.

Next to the villa is a beautiful wooden carport for several cars, this carport runs into a workshop with water and electricity and is prepared for a wellness area.

The monumental outbuilding with delightful garden at the front of the plot is fully equipped and is, for example, a beautiful and suitable place to work at home or to use as a studio or informal care home.

At the front is ample space for parking several cars on site. At the rear of the villa you will find a beautiful spacious garden with several terraces where you can enjoy the sun, nature and the beautiful view of the meadow behind.

Are you curious about this special location, please contact us for an appointment, we are happy to show you around.

Features

Solar panels
Alarm system
Transfer of ownership
Asking Price
€ 2.995.000 k.k.
Status
beschikbaar
Acceptance
in overleg
Construction
Kind of house
Villa
Building type
vrijstaande woning
Construction period
1984
Energy rating
A
Bedrooms
4
Bathrooms
2
Surface Areas And Volume
Living Area
344 m2
Other indoor space
41 m2
Exterior space attached to the buildinge
27 m2
External storage space
93 m2
Volume in cubic meters
1428 m3
Plot Size
2684 m2
Facilities
Mechanische ventilatie
Alarminstallatie
Rookkanaal
Dakraam
Zonnepanelen
Natuurlijke ventilatie
Aan rustige weg
Vrij uitzicht
Beschutte ligging
In bosrijke omgeving
Baerz & Co Property Brochure

Brochure

Videos

Floor Plans

Wilbrink & v.d. Vlugt Makelaars

Heereweg 231
2161 BG Lisse

info@wilbrinkvandervlugt.nl
+31 252 41 90 49

www.onsaanbod.nl

Information / Viewing request

Frits Wilbrink profile image
Frits Wilbrink
Real Estate Agent