Baerz & Co is een landelijk samenwerkingsverband van zorgvuldig geselecteerde boutique luxury makelaars. Samen vormen wij één netwerk, met één gedeeld aanbod. De woningen die u op onze website ziet, zijn afkomstig van alle aangesloten kantoren binnen Baerz & Co. Daardoor is niet ieder object rechtstreeks door ons kantoor in verkoop, maar door een gespecialiseerde collega binnen ons netwerk. Heeft u een woning gevonden die u aanspreekt en wilt u meer informatie? Dan brengen wij u graag persoonlijk in contact met de betreffende verkoopmakelaar, zodat u direct en zorgvuldig wordt begeleid.

HERBAIJUM
Kiesterzijl 56 - 8807 PG
Netherlands

Frits Wilbrink profile image
Frits Wilbrink
Real Estate Agent
€1,200,000 k.k.
Living Area
218m2
Plot Size
21211m2
Bedrooms
2

Description

Zero-Energy Home, Wellness, Hunting Lodge, Silence, Stables, Riding Arena, Meadow by Van Harinxmakanaal!

The tranquility and privacy in the middle of greenery and the natural experience around this home are indescribable but can certainly be felt. A literally hidden spot, next to the Van Harinxmakanaal, where you can see the masts of boats passing by in the distance from the house as a silent witness. The peace is at most interrupted by the braying of a donkey, the neighing of a horse, and a dog chasing a flying pheasant. The sunrise through the misty haze, where your horse happily greets you during the first feeding early in the morning, and you take a walk with your dog unnoticed in your pajamas around your own domain. The kids launch the boat into the water for a short trip to the center of Harlingen for a cozy lunch. Enjoy the sauna and jacuzzi as you watch the red sun set into the water. In the summer, with the glass doors open, and in the winter, cozying up with friends by the wood-burning stove in the hunting lodge; this oasis offers everything for the perfect home, making you never want to leave.

The serene peace, the ever-changing Frisian skies, the wildlife that comes and goes in your own meadow (approx. 1.8 ha), the horses at home with their own 20x40 riding arena, and all this with bustling and friendly Harlingen just around the corner and a connection to the west within an hour via the Afsluitdijk.

The charming, fully insulated, nearly energy-neutral home was built in 2019. Sustainable and low-maintenance materials such as IPE hardwood cladding, luxurious wide overhangs, 40 solar panels, a heat pump, flat tiles, zinc, and plastic were used. Privacy, relaxation, and a connection to nature were the main focus in the design. The stylish black-stained outbuildings, currently used as a sauna, wellness area, hunting lodge, wood storage, spacious insulated storage/workshop, stables, and equipment/boat storage, offer every possibility for maximum living enjoyment.

This is fully private, in a hidden lane, living in silence outside the city, yet with all amenities in Franeker or Harlingen (with the ferry to the Wadden Islands) within cycling distance!

LAYOUT

GROUND FLOOR
The entrance of the house is located on the east side, with space for a wardrobe in the hallway, which also provides access to the guest toilet. The living room is situated on the sunny southwest side of the house. When you enter this bright space, you immediately feel at home. This is due to the charming high wooden ceilings with beautiful heavy beams, the cozy lounge area by the wood stove, and the floor-to-ceiling windows offering endless views of the nature; the stylish garden, the fruit trees, the animals in the meadow, the wildlife around the house, and the ever-changing Frisian skies. There is no traffic here!

The open living kitchen is a joy in itself—a place where there is often a lot of socializing while cooking. The open glass accordion sliding doors to the indoor terrace are almost always open, thanks to the sheltered location created by the surrounding outbuildings. This way, the garden is fully integrated into the indoor living space. The kitchen has a sturdy stainless steel cooking/washing island and is equipped with all luxuries; a large induction cooktop with integrated extraction, an extra-large sink with a boiling water tap, and the sleek black floor-to-ceiling cabinet wall houses an integrated coffee machine and combi-oven. The utility room, with connections for washing appliances, is tastefully hidden in the extension behind a cabinet wall in the same style as the kitchen.

From the dining area, directly adjacent to the kitchen, there is also a beautiful view of the garden, the fields, and the horse arena. There is also another door to the outside here. The entire ground floor is fitted with a "wooden" PVC floor with high skirting boards and underfloor heating.

UPPER FLOOR
The landing provides access to two spacious bedrooms, a bathroom, and plenty of storage space under the eaves on the landing. The charming, spacious master bedroom with two walk-in closets under the sloping roof is located on the south side and has floor-to-ceiling windows with a French balcony, overlooking the green meadows with the Van Harinxmakanaal beyond. Here you wake up happy, energized, and ready to start the day. The chic bathroom with stylish Italian tiles has a slightly elevated window in the wide dormer. The bathroom features a walk-in shower, toilet, and washbasin cabinet. The second spacious bedroom is located on the northeast side and offers a beautiful view of the green meadow landscape.

ATTIC
The storage attic is accessible via a loose ladder in the second bedroom.

GARDEN HOUSE
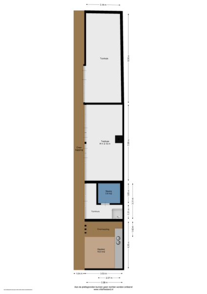
The outbuildings, arranged in a courtyard style with the house, give the garden a secluded and intimate atmosphere. In the stylishly wooden insulated garden house with 3 glass sliding doors and a wide canopy, a true hunting lodge and wellness area are situated. The outdoor kitchen connects the entire space with the main house. If desired, this can easily be integrated into the indoor space. The wellness and hunting lodge are rustically paneled on the inside and equipped with wood stoves, spotlights, a jacuzzi, sauna, steam shower, electricity, and water. A fantastic space that maximizes the living experience and invites gatherings with friends.

GARAGE
The space for wood storage is enormous and adjoins the even larger garage. This part of the courtyard setup is built in the same style as the garden house. The garage/storage is an insulated space with electricity.

STABLES
Halfway along the driveway is the stable complex. There are two spacious horse boxes in succession with an indoor grooming area with hot and cold running water in the middle, followed by a fodder/saddle room, and then a smaller stable where Jil, the elderly donkey, resides. From the stable, there is access to the horse pasture behind (over 1.7 ha) and also the well-drained 20x40m riding arena with a soft surface and outdoor lighting opposite.

EQUIPMENT/BOAT STORAGE
On a solid foundation, a plastic sliding cover has been placed, currently used for tractor and boat storage.

GARDEN/PLOT/MEADOW
The driveway to the house, garages, and stable is covered with gravel with flower borders edged with corten steel and garden lighting. There is ample parking on the property, both at the stables and the house, for multiple cars. The garden directly around the house has several terraces in sun and shade, offering beautiful views from all angles over varying natural areas and the passing sailboats, pleasure yachts, and commercial vessels. The sheltered courtyard garden with the 4 linden trees, beautiful lighting, and outdoor kitchen offers the utmost privacy. There are many types of fruit trees, berry bushes, shrubs, and flower borders in the garden. The over 1.7 ha meadow, bordered by a ditch, has two access points and is located directly behind the stables along the Van Harinxmakanaal. In the current situation, the horses graze on the plot behind the house, but in the new situation, due to land consolidation, this will change to the front (canal and view side) of the house. The 20x40 riding arena is well-drained and equipped with a soft surface and lighting.

SPECIAL FEATURES
- Built in 2019
- Energy label A, nearly energy-neutral with heat pump and 40 solar panels
- Unpredictably beautiful, quiet, free natural location by Van Harinxmakanaal
- Spacious living room, kitchen, and master bedroom, all with panoramic views
- Extra living space through courtyard-arranged outbuildings such as sauna, wellness, hunting lodge
- Ample wood storage, insulated workshop/garage
- Large garden plot (3740m2) around the house
- Over 1.7 ha of meadow by the stable (new situation)
- 3 stables with grooming area and storage
- Drained 20x40m riding arena with lighting
- Solid foundation equipment/boat cover
- Boat slipway directly in front of the electric entrance gate

HERBAIJUM
Herbaijum is a mound village, located between Harlingen and Franeker. All amenities such as shops, schools, theater, museums, restaurants, and of course the Wadden Sea or ferry from Harlingen to the islands are within cycling distance. It is a charming rural village with a good sense of community where many activities are still organized for young and old. And how lovely is it to take the RIB over the Van Harinxmakanaal for a meal or a drink at one of the many terraces on the Noorder- or Zuiderhaven?!

Features

Solar panels
Transfer of ownership
Asking Price
€ 1.200.000 k.k.
Status
beschikbaar
Acceptance
in overleg
Construction
Kind of house
Landhuis
Building type
vrijstaande woning
Construction period
2019
Energy rating
A
Roof type
zadeldak
Bedrooms
2
Bathrooms
2
Surface Areas And Volume
Living Area
218 m2
Other indoor space
0 m2
Exterior space attached to the buildinge
5 m2
External storage space
91 m2
Volume in cubic meters
825 m3
Plot Size
21211 m2
Facilities
Jacuzzi
Stoomcabine
Rookkanaal
Schuifpui
Frans balkon
Sauna
Zonnepanelen
Natuurlijke ventilatie
Aan water
Aan rustige weg
Vrij uitzicht
Buiten bebouwde kom
Aan vaarwater
Landelijk gelegen
Baerz & Co Property Brochure

Brochure

Videos

Floor Plans

Wilbrink & v.d. Vlugt Makelaars

Heereweg 231
2161 BG Lisse

info@wilbrinkvandervlugt.nl
+31 252 41 90 49

www.onsaanbod.nl

Information / Viewing request

Frits Wilbrink profile image
Frits Wilbrink
Real Estate Agent

Buying a Luxury Property in Herbaijum

Herbaijum presents a rare combination of privacy, heritage, outstanding countryside, and timeless architecture. The village appeals to discerning clients seeking a community-oriented lifestyle, exceptional advisory services, and a refined base in the Dutch countryside.