Welkom bij Wilbrink & v.d. Vlugt Makelaars Internationaal. Ook ver buiten Nederland zijn wij zeer actief. Via ons internationale netwerk binnen Baerz & Co Luxury Homes begeleiden onze Nederlandse (!) partners u vakkundig bij de aankoop van exclusieve tweede huizen. U vindt ons in 20 landen rond de Middellandse zee, de Alpen, Mexico en Dubai. Neem voor meer informatie contact op met ons secretariaat.

KOSTRENA
Croatia

Mateja Funtek Derča profile image
Mateja Funtek Derča
Personal Property Advisor
€850,000
Living Area
250m2
Plot Size
N/A
Bedrooms
4

Description

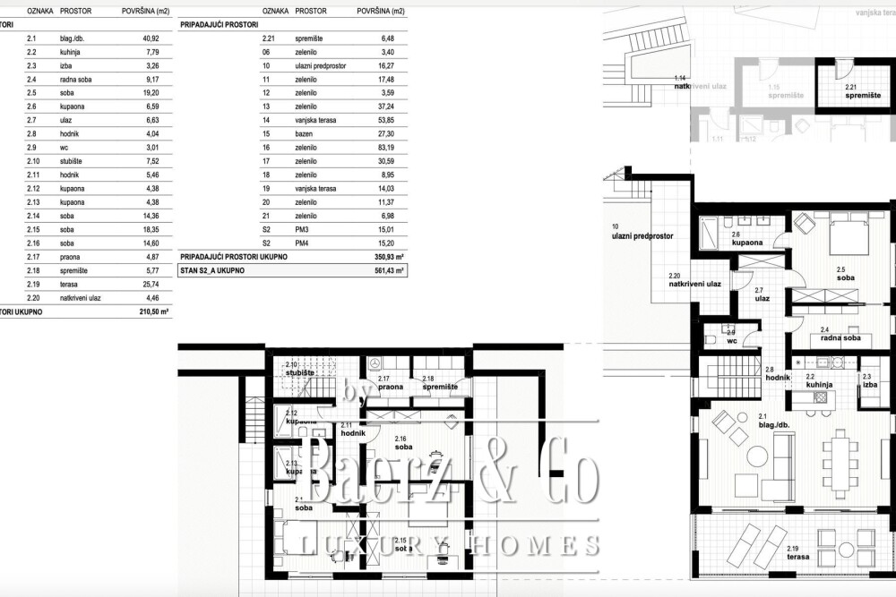
Apartment Kostrena anchors a new standard of refined living on Croatia’s Kvarner coast. This 250 m² residence is set across two levels within a modern two-storey building, integrating four bedrooms and expansive sea views. The apartment’s layout is composed for everyday ease and quiet luxury—its 42.20 m² living and dining area flows toward a contemporary kitchen of 7.73 m², establishing a seamless rhythm for gatherings or quiet reflection.

Each of the four bedrooms offers space and balance, with the principal measuring 21.91 m², and three others at 14.20 m² each. Thoughtful details include three elegant bathrooms, a walk-in wardrobe, a laundry room, pantry and storage. A covered 26.14 m² terrace brings the panorama of the Adriatic into daily life, complemented by additional outdoor terraces and a landscaped garden.

The apartment features a private swimming pool, two dedicated parking spaces and a separate 6.48 m² storage room. Premium finishes, underfloor heating by heat pump, air conditioning, advanced security, and ALU BEN aluminum joinery are enhanced by smart-home integration for complete comfort and control. With the sea only 1,118 meters away, swift access to beaches and promenades is assured. The property is offered turnkey, VAT included, and the buyer is exempt from real estate transfer tax. Apartment Kostrena affirms a way of life defined by tranquility, design and proximity to the coast.

Explore Kostrena with Baerz, Your Trusted Personal Property Finder & Advisor

The upper tier of the Kostrena property market is nuanced, requiring a combination of strategic sourcing and discreet negotiation. Local advisors offer invaluable access to off-market residences and can guide clients through regulatory details and relationship-based transactions. Their expertise ensures buyers and sellers achieve optimal terms, protecting assets and reputations throughout the process.

Avoid common pitfalls

International buyers often waste valuable time on duplicate, outdated or misleading online listings, especially since nearly 30% of luxury homes never appear on the public market. Seller’s agents represent the seller’s interests, not the buyer’s. Even requesting information about a property can result in a seller’s agent registering you as their “client” without your consent.
With Baerz Property Finders & Advisors, you avoid all these pitfalls entirely. We work solely on your behalf, offering independent representation, clear guidance and access to all available properties, including off-market opportunities that others never get to see.

Interested in a Personal Property Advisor?

We show you all available homes in one place. Feel free to contact us to learn how we can meet your needs and protect your interests exclusively.

Features

Transfer of ownership
Asking Price
€ 850.000
Reference
535186
EUR
Construction
Kind of house
apartment
Bedrooms
4
Bathrooms
4
Surface Areas And Volume
Living Area
250 m2
Plot Size
0 m2
Baerz & Co Property Brochure

Brochure

Videos

Information / Viewing request

Mateja Funtek Derča profile image
Mateja Funtek Derča
Personal Property Advisor

Buying a Luxury Property in Kostrena

Kostrena delivers an exclusive coastal lifestyle, balancing privacy, culture, and access to world-class services. Its international appeal is underscored by strong community ties and refined amenities tailored to the needs of astute global buyers.