Baerz & Co is een landelijk samenwerkingsverband van zorgvuldig geselecteerde boutique luxury makelaars. Samen vormen wij één netwerk, met één gedeeld aanbod. De woningen die u op onze website ziet, zijn afkomstig van alle aangesloten kantoren binnen Baerz & Co. Daardoor is niet ieder object rechtstreeks door ons kantoor in verkoop, maar door een gespecialiseerde collega binnen ons netwerk. Heeft u een woning gevonden die u aanspreekt en wilt u meer informatie? Dan brengen wij u graag persoonlijk in contact met de betreffende verkoopmakelaar, zodat u direct en zorgvuldig wordt begeleid.

RHENEN
Utrechtsestraatweg 31 - 3911 TR
Netherlands

Frits Wilbrink profile image
Frits Wilbrink
Real Estate Agent
€1,150,000 k.k.
Living Area
128m2
Plot Size
815m2
Bedrooms
4

Description

Energy label pending

Beautifully situated on the edge of Rhenen’s characterful town centre and overlooking the Palmerswaard nature reserve and the Lower Rhine. This is one of the most scenic spots on the Utrechtse Heuvelrug. In this unique location, you now have the chance to make all your living wishes come true. On this dream site stands this authentic 1930s detached house with private driveway, carport, and a generous plot—now for sale.

A charming detached home with plenty of space and potential awaits at Utrechtsestraatweg 31 in Rhenen. Here, space and character come together beautifully. With a bright living room and open kitchen, a practical utility room, and a bedroom and bathroom on the ground floor, this property offers everything for comfortable, versatile living. The upper floors add three bedrooms, a second bathroom, and a spacious attic. In total, the house has a living area of approx. 127 m², which can easily be expanded with an extension and possibly a second-storey addition. The spacious, sunny garden with stunning panoramic views over the green surroundings and the Lower Rhine completes the picture. The existing solar panels provide extra sustainability. This is a house that immediately feels pleasant, while still offering room to add your own ideas—a rare opportunity in a fantastic location.

A special location on the edge of Rhenen makes this a wonderful place to live. Primary and secondary schools and sports clubs are nearby, and supermarkets and shops are easily accessible. The proximity to public transport and major roads ensures you can quickly reach other parts of town and surrounding areas. Nature and recreation are abundantly present in the immediate vicinity, making this area not only practical but also highly appealing.

Entrance

A driveway that accommodates several cars and a neatly landscaped front garden create an inviting first impression. Through the entrance you enter the hall, which provides access to the toilet, the staircase to the first floor, the cellar, and the living room. There is also ample space for a coat rack or storage unit.

Living Room

The living room is the heart of the home and exudes warmth thanks to the combination of large windows, a cozy fireplace, and characterful wooden support beams. The open layout offers plenty of scope for arranging a sitting area and dining space, while the sliding door to the garden creates a direct connection to the outdoors. Thanks to the air conditioning, this room is comfortable in every season.

Kitchen

The open kitchen adjoins the living room and features an L-shaped worktop with hob, extractor, dishwasher, and sink. There is also a combination oven, a refrigerator, and ample storage. While the kitchen is functional and spacious, it can be modernized to suit personal taste.

Utility Room

A utility room adjoins the kitchen and offers practical storage for provisions or household items—a welcome addition for day-to-day convenience.

Bathroom (Ground Floor)

A bathroom on the ground floor is a unique feature, enabling single-level living. Fully tiled, it includes a shower with glass screen, toilet, washbasin, and storage unit—adding comfort and ease of use.

Additional Room

An extra room adjacent to the bathroom adds further flexibility. Whether used as a study, reading room, or bedroom: with views and direct access to the garden—combined with air conditioning—this is a versatile and pleasant space.

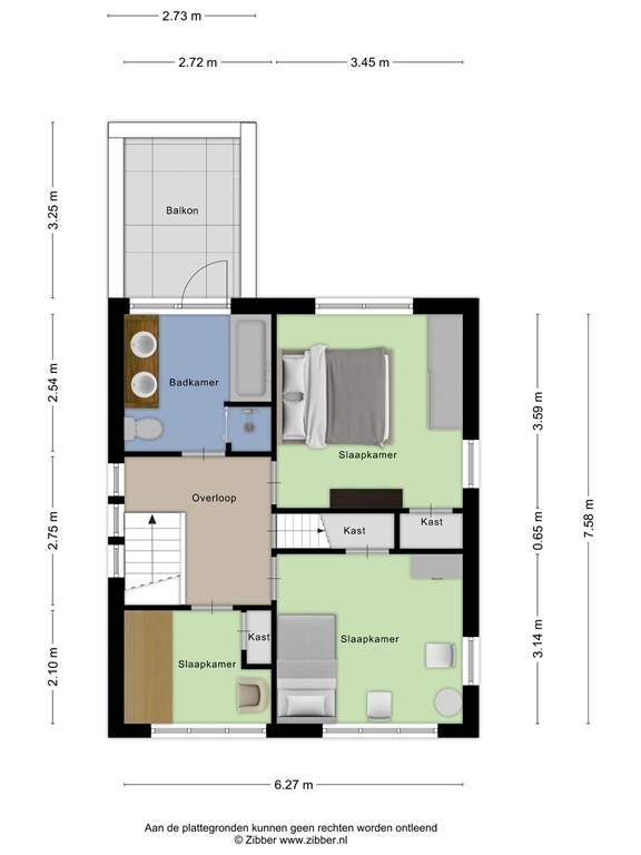
First Floor

A fixed staircase leads to the first floor, where you will find three bedrooms and a second bathroom. The layout makes this an ideal floor for families or for those seeking space to combine living and working.

Bedrooms

The bedrooms on this floor are practical in size and feature built-in wardrobes, making them well suited as sleeping, working, or hobby rooms. The spaces are neatly maintained, but can be modernized if desired.

Sanitary (First Floor)

The first-floor bathroom is generously sized and includes a shower, bathtub, toilet, and double washbasin with storage unit. From this room there is also access to the roof terrace—a unique bonus for those who enjoy fresh air and privacy.

Second Floor

A fixed staircase brings you to the second floor, where a spacious attic sits beneath the roof ridge. The central heating boiler is located here, and there is ample room for storage or for creating an additional room.

Cellar Spaces

Two cellar rooms provide practical extra storage. They are ideal for provisions, seasonal items, or hobbies that require extra space. One of the two rooms is accessible from the back garden and is used as a storage area.

Outdoor Space

A rear garden with a sunny aspect and magnificent unobstructed views over nature and water is the highlight of this home. With a paved terrace, there is ample room for a lounge set or outdoor dining table, while the garden’s greenery provides peace and privacy.

General Information
- Type of property: Detached
- Year built: 1932
- Year of renovation:
- Number of rooms: 5
- Number of bedrooms: 4
- Number of bathrooms: 2
- Parking: 4 cars on private driveway
- Features: Storage / carport
- Garden orientation: Southwest
- Garden access: Front / rear / side and via the house

Technical Details
- Hot water: Bosch HRVW65 70L boiler (2012)
- Heating: Bosch 30 HRC (2012)
- Solar panels: 21
- Gas fireplace
- Features: Air conditioning / external sunshades / cellar
- Mechanical ventilation: No
- Double glazing: Throughout
- Connections: Fiber-optic cable, TV cable
- Window frames: Wood / uPVC

Would You Like to Take a Look Inside?

For more information about this property, please contact our office in Rhenen.

You are most welcome! The best impression of this home is, of course, gained during a viewing. We schedule viewings in consultation with both seller and buyer and take ample time so you can explore and experience the property at your leisure.

Note: Every effort has been made to compile this information with the utmost care. No rights can be derived from any inaccuracies or omissions in the data or drawings provided.

Features

Transfer of ownership
Asking Price
€ 1.150.000 k.k.
Status
Available
Acceptance
In Concert
Reference
08129
Construction
Kind of house
Single Family House
Building type
Detached House
Construction period
1932
Energy rating
F
Roof type
pyramid hip
Bedrooms
4
Bathrooms
2
Surface Areas And Volume
Living Area
128 m2
Other indoor space
34 m2
Exterior space attached to the buildinge
24 m2
Volume in cubic meters
598 m3
Plot Size
815 m2
Facilities
Airco
Balcony
Garden
Internetconnection
Outdoorawnings
Phoneline
Rollerblinds
Skylight
Slidingdoors
Storageroom
Baerz & Co Property Brochure

Brochure

Videos

Floor Plans

Wilbrink & v.d. Vlugt Makelaars

Heereweg 231
2161 BG Lisse

info@wilbrinkvandervlugt.nl
+31 252 41 90 49

www.onsaanbod.nl

Information / Viewing request

Frits Wilbrink profile image
Frits Wilbrink
Real Estate Agent

Buying a Luxury Property in Rhenen

Rhenen offers elevated living amidst river views and heritage charm. Residents enjoy a vibrant, close-knit community, expert property services, and seamless integration with the international lifestyle.