Ons kantoor is lid van Baerz & Co Luxury Homes; een internationaal platform dat exclusieve woningmakelaars met elkaar verbindt. Neem contact op met ons secretariaat voor meer informatie over het landelijke aanbod, waarvan u hieronder een selectie kunt bekijken.

ROTTERDAM
Plasoord 13 - 3054 LJ
Netherlands

Joris van Oosten profile image
Joris van Oosten
Real estate agent
€1,250,000 k.k.
Living Area
119m2
Plot Size
226m2
Bedrooms
4

Description

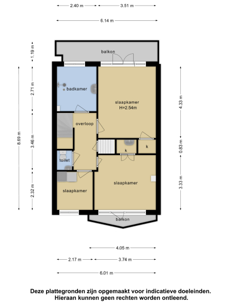
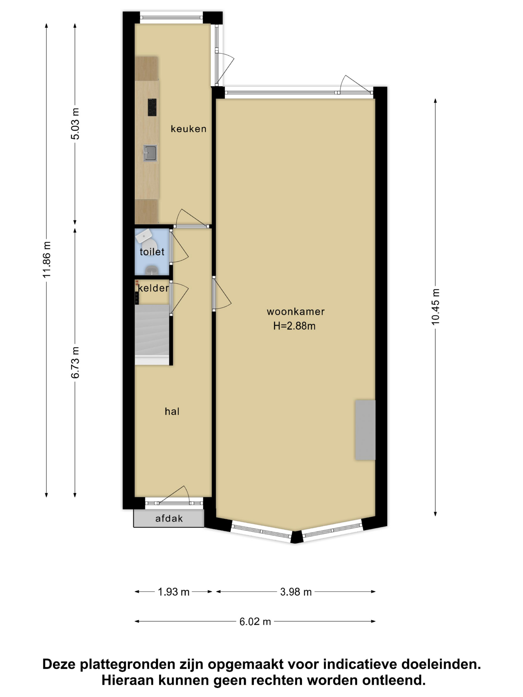
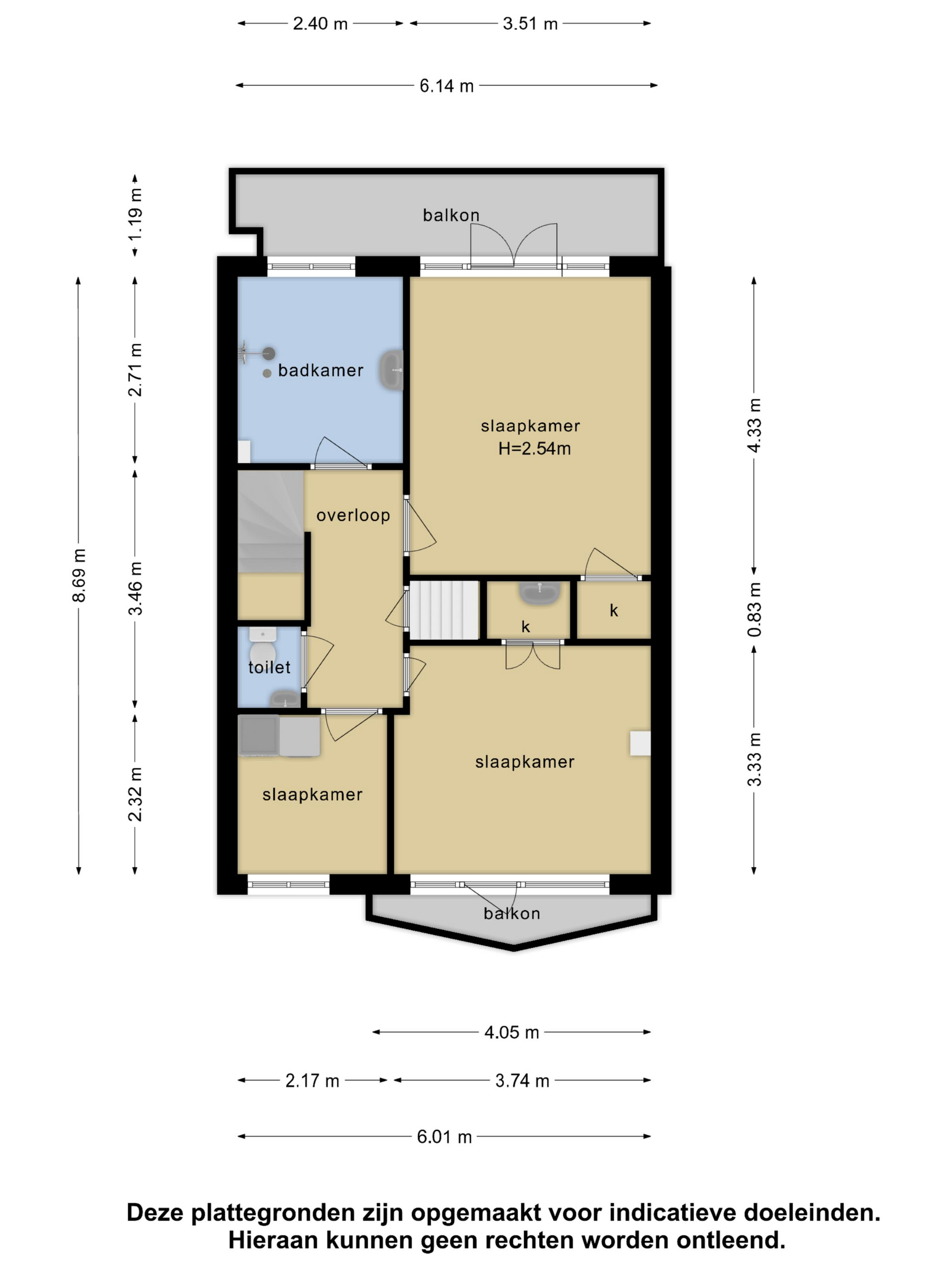
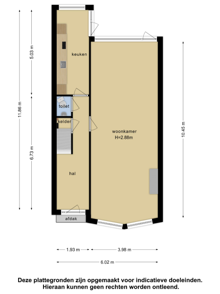
This family home Rotterdam captures both architectural heritage and the rare privilege of direct water access on a 226 m² private plot. Built in 1927, it retains original integrity while offering approximately 119 m² of living area as measured by NEN-2580. The property’s classic lines are met by updates including partial double glazing and a central heating combi boiler installed in 2021.

Four bedrooms and one bathroom offer balanced proportions for repose and activity. The possibility to moor a sloop in the backyard sets this address apart, cultivating a lifestyle directly connected to the water. The remaining 29 m² of indoor space, distributed between the basement and second floor, offers scope for adaptation; with modest adjustments to dormer windows, additional usable living area could be realized. Building-related outdoor space of approximately 10 m² extends the living zone outward for quiet retreat.

Features include TV connection, outdoor sun blinds, energy label D, and the discreet assurance of private ownership. This is a property defined by legacy and potential, designed for those who appreciate authenticity and the canalside rhythm of Rotterdam.

Explore Rotterdam with Baerz, Your Trusted Personal Property Finder & Advisor

Navigating Rotterdam’s dynamic property market requires seasoned advisors who combine local intelligence with international client service. Discreet access to off-market listings, targeted negotiation strategies, and in-depth knowledge of regulatory nuances allow sophisticated buyers and sellers to make finely tuned decisions. Such expertise optimises investment opportunities and safeguards interests at every stage.

Features

Transfer of ownership
Asking Price
€ 1.250.000 k.k.
Status
beschikbaar
Acceptance
in overleg
Construction
Kind of house
Eengezinswoning
Building type
tussenwoning
Construction period
1927
Energy rating
D
Roof type
zadeldak
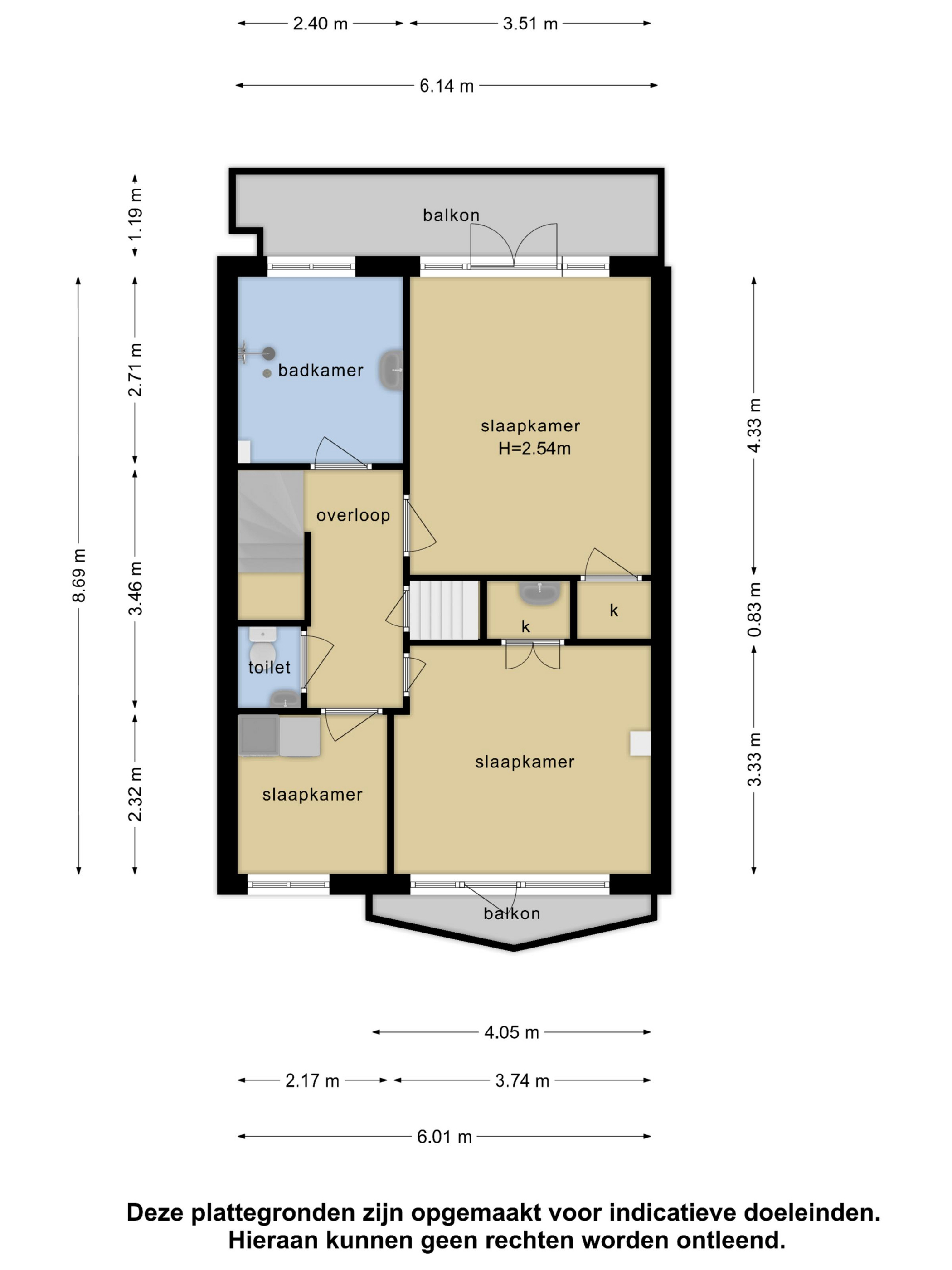
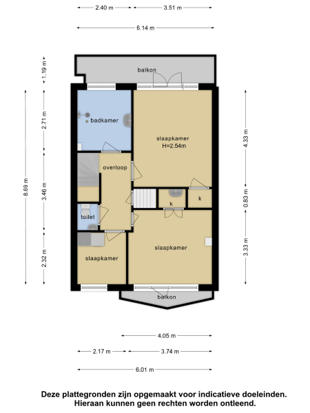
Bedrooms
4
Bathrooms
1
Surface Areas And Volume
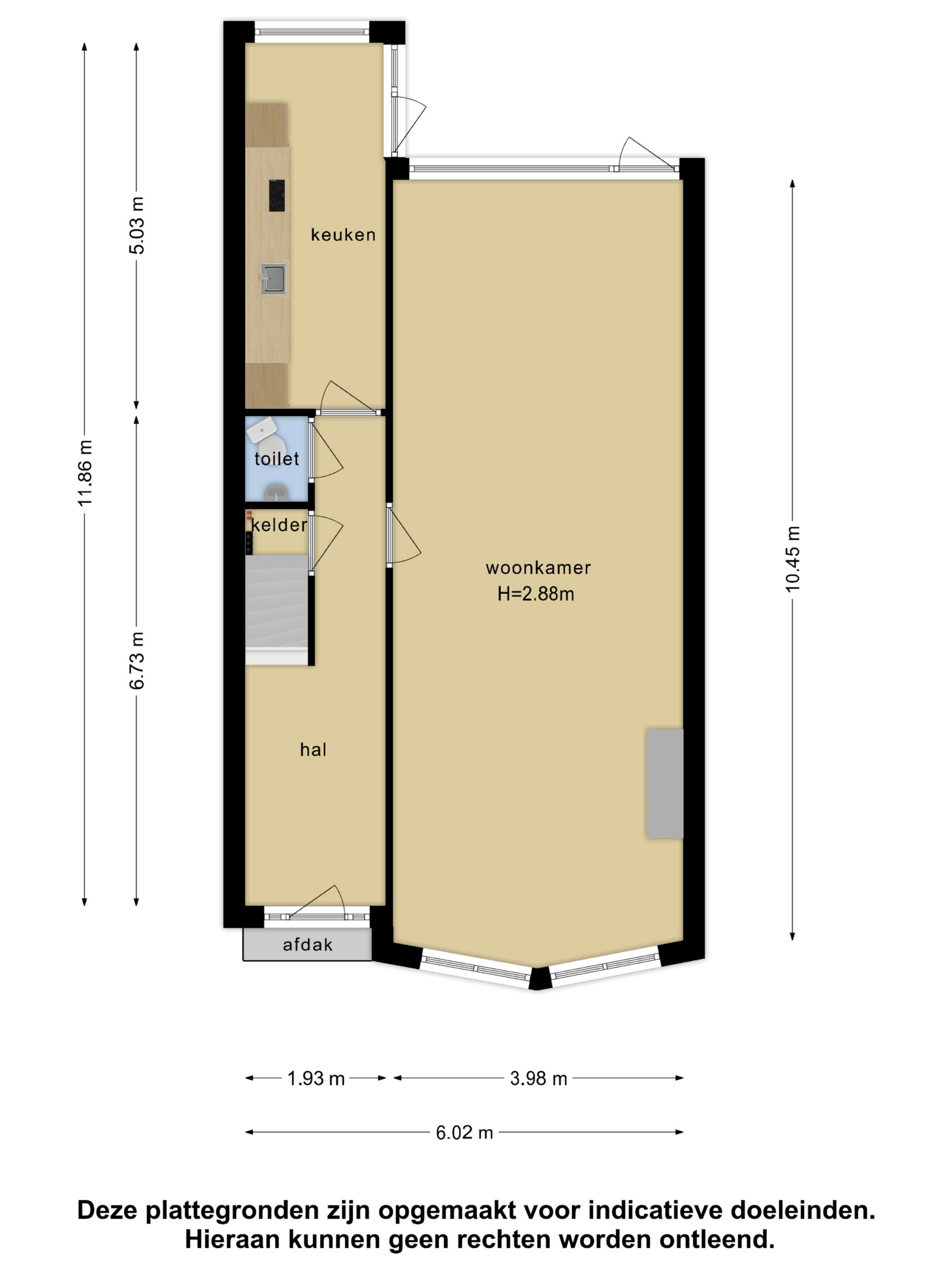
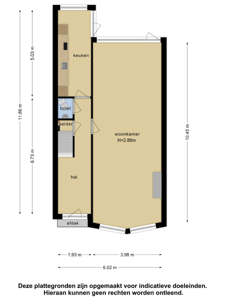
Living Area
119 m2
Other indoor space
29 m2
Exterior space attached to the buildinge
10 m2
Volume in cubic meters
522 m3
Plot Size
226 m2
Facilities
Tv kabel
Buitenzonwering
Aan water
In woonwijk
Vrij uitzicht
Aan vaarwater
Baerz & Co Property Brochure

Brochure

Videos

Floor Plans

J.J. Van Oosten Makelaardij BV

Straatweg 225
3054 AG Rotterdam

info@vanoostenmakelaardij.nl
+31 10 422 11 00

www.vanoostenmakelaardij.nl

Information / Viewing request

Joris van Oosten profile image
Joris van Oosten
Real estate agent