Ons kantoor is lid van Baerz & Co Luxury Homes; een internationaal platform dat exclusieve woningmakelaars met elkaar verbindt. Neem contact op met ons secretariaat voor meer informatie over het landelijke aanbod, waarvan u hieronder een selectie kunt bekijken.

SCHOONHOVEN
Lopikerweg 1 b - 2871 AT
Netherlands

Frits Wilbrink profile image
Frits Wilbrink
Real Estate Agent
€935,000 k.k.
Living Area
128m2
Plot Size
490m2
Bedrooms
3

Description

LOPIKERWEG 1B, SCHOONHOVEN
Detached family home with views, charm, and top comfort

WORDS FROM THE SELLER
During our first viewing of the house on Lopikerweg, we immediately felt like we were on vacation. As soon as we entered, we experienced the light, the relaxed atmosphere, and the stunning view. Although we have lived here happily for ten years, another special home unexpectedly crossed our path. This has led us to make the decision to sell our beloved home.

In recent years, we have completely renovated our sunny south-facing garden and added new sheds. The covered seating area by the water has become the garden's crown jewel in our eyes. In summer, it's a cool spot under the sedum roof, and in the evening, you can light the stove for a bit of extra warmth.
Two years ago, we renovated the upper floor and used custom designs to optimize every space. As a result, our bedrooms are now both practical and cozy.

Living on the Lopikerweg has been ideal for us. Wonderful neighbors, a peaceful location, and still close to all amenities. Even at a young age, our children could safely and quickly cycle to primary school via the adjacent bike path.

We hope the new owners will enjoy the house just as much as we have!

DETACHED LIVING WITH VIEWS AND SPACE
Lopikerweg 1b offers the ideal combination of rural charm and modern comfort. At the front, you enjoy expansive views over the countryside; at the back, the sunny south-facing garden borders water and an orchard. The house is situated on a quiet country lane with mainly local traffic – a true oasis of calm, just a short distance from schools, shops, and the charming center of Schoonhoven.

The garden was completely redesigned in 2021 and radiates a year-round holiday vibe. With a piled terrace, wooden sheds, a luxury outdoor kitchen, and an atmospheric covered area with sedum roof and wood stove, it’s a joy in every season. Garden lighting has been pre-installed, and the bank reinforcement has been replaced with a hardwood retaining wall. Everything is just right.

BRIGHT, LUXURIOUS AND PRACTICALLY LAID OUT
The home has been carefully maintained and tastefully finished. On the ground floor, you'll find a hallway with tiled flooring and a modern toilet; the living room features an oak floor with underfloor heating, plastered walls, ceilings with decorative molding, and recessed lighting.

The kitchen is a true eye-catcher, handcrafted from wood and equipped with a Quooker, high-pressure steam oven, combination oven, Boretti gas hob, extractor hood, fridge, freezer, and dishwasher. It also has a tiled floor with underfloor heating. From the kitchen, there is access to the terrace and the insulated, heated garage (40 m²) with electric door, underfloor heating, and access to the basement (13 m², standing height).

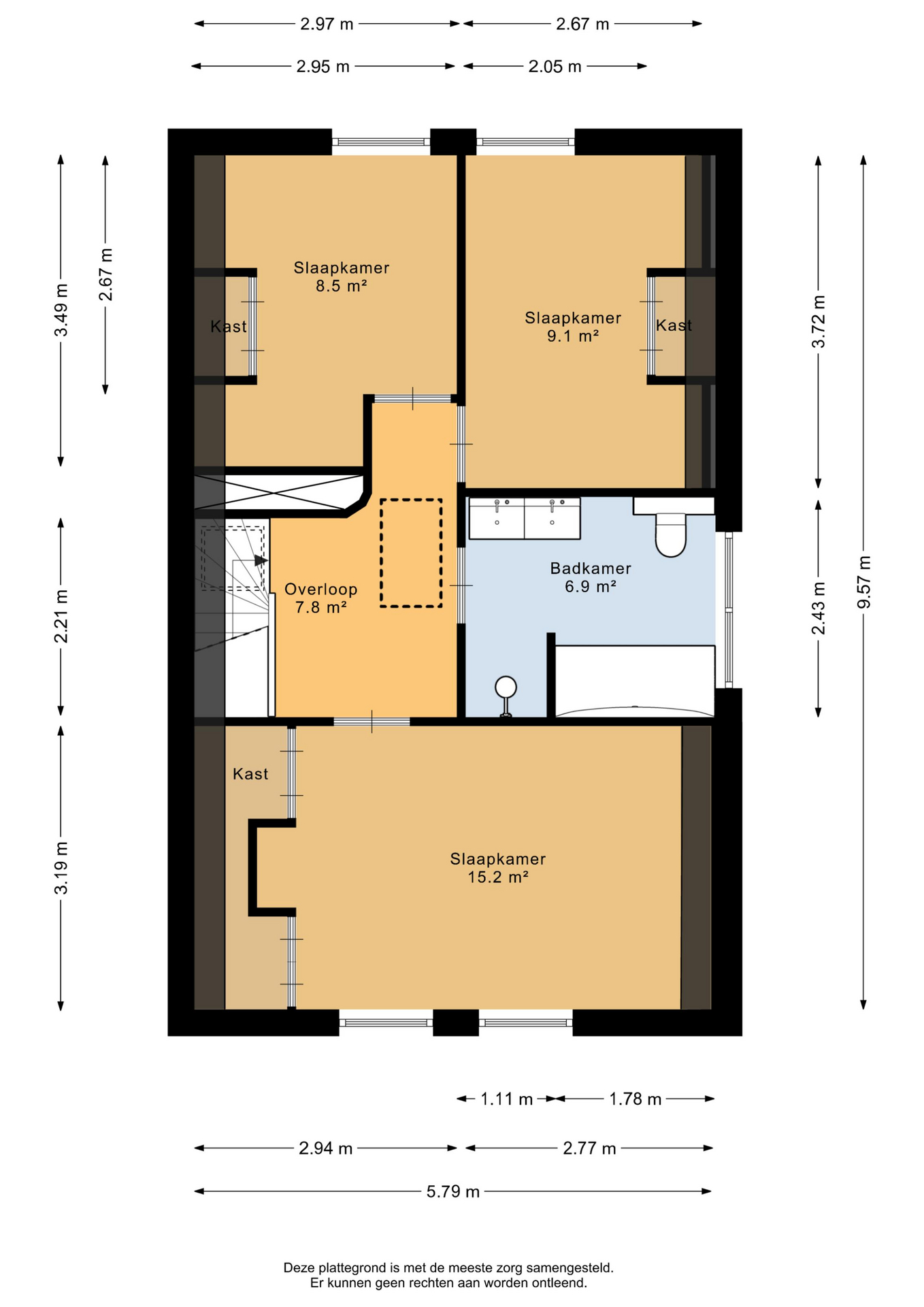
The entire first floor was renovated in 2023: three bedrooms with custom wardrobes, sleek walls, new floors, air conditioning units, and modern finishes. The luxury bathroom (from 2015) features a bathtub, walk-in shower, wall-hung toilet, vanity unit, built-in lighting, and underfloor heating. The landing includes a Velux skylight and smart storage solutions.

A pull-down ladder provides access to a practical attic for additional storage across the entire upper floor.

IMPECCABLY MAINTAINED AND SUSTAINABLE
This home is move-in ready, future-proof, and energy-efficient. With energy label A+, 24 solar panels (installed in 2023), an electric car charging station, and underfloor heating on the ground floor (pump and distributor renewed in 2022).

The flat roof was fitted with new roofing in 2023. The gutters and downpipes are made of copper, and the garage can easily be converted into a workspace or extra bedroom with bathroom on the ground floor. This property offers ample space for a variety of family situations – whether you have growing children, an empty nest, or want a peaceful place to work from home.

CHARMING AND PRACTICAL LOCATION IN SCHOONHOVEN
Schoonhoven is a charming city on the River Lek, known for its historic center and silver-making tradition. Lopikerweg 1b is located on the edge of this lovely town: detached living with peace and views, yet everything within easy reach. Families benefit from safe bike routes to schools and sports clubs. In just a few minutes, you're in the town center for groceries or a drink on a terrace by the water.

Accessibility is excellent too. Via the N210 and N216, you're quickly on your way to Gouda, Rotterdam, or Utrecht. Schoonhoven is in the heart of the Green Heart region and boasts a vibrant community life, making it especially attractive for families and active 50-plussers.

FEATURES:

Year built: 2004

Living area: 128 m² (excluding 21 m² garage)

Other indoor space: 50 m² (including garage)

Plot size: 490 m² freehold

Volume: approx. 682 m³

Number of floors: 2 + attic + basement

Energy label: A+

Solar panels: 24 (installed in 2023)

Charging station for electric car

Underfloor heating on the ground floor and in the bathroom (pump and distributor renewed in 2022)

Garden: south-facing, adjacent to water with unobstructed views

Orientation: unobstructed front views over water and meadows; rear views of water and orchard

Delivery: by arrangement

Features

Solar panels
Alarm system
Air conditioning
Transfer of ownership
Asking Price
€ 935.000 k.k.
Status
verkocht onder voorbehoud
Acceptance
in overleg
Construction
Kind of house
Villa
Building type
vrijstaande woning
Construction period
2004
Energy rating
A+
Roof type
zadeldak
Bedrooms
3
Bathrooms
1
Surface Areas And Volume
Living Area
128 m2
Other indoor space
50 m2
Volume in cubic meters
682 m3
Plot Size
490 m2
Facilities
Mechanische ventilatie
Alarminstallatie
Airconditioning
Dakraam
Zonnepanelen
Aan water
Aan rustige weg
Vrij uitzicht
Landelijk gelegen
Baerz & Co Property Brochure

Brochure

Videos

Wilbrink & v.d. Vlugt Makelaars

Heereweg 231
2161 BG Lisse

info@wilbrinkvandervlugt.nl
+31 252 41 90 49

www.onsaanbod.nl

Information / Viewing request

Frits Wilbrink profile image
Frits Wilbrink
Real Estate Agent

Buying a Luxury Property in Schoonhoven

Schoonhoven balances heritage, refinement, and a nurturing community spirit. Its luxury market draws global residents seeking distinctive living, curated services, and the appeal of timeless Dutch riverside ambiance.