Baerz & Co is een landelijk samenwerkingsverband van zorgvuldig geselecteerde boutique luxury makelaars. Samen vormen wij één netwerk, met één gedeeld aanbod. De woningen die u op onze website ziet, zijn afkomstig van alle aangesloten kantoren binnen Baerz & Co. Daardoor is niet ieder object rechtstreeks door ons kantoor in verkoop, maar door een gespecialiseerde collega binnen ons netwerk. Heeft u een woning gevonden die u aanspreekt en wilt u meer informatie? Dan brengen wij u graag persoonlijk in contact met de betreffende verkoopmakelaar, zodat u direct en zorgvuldig wordt begeleid.

'S-HERTOGENBOSCH
Kamperfoeliestraat 23 - 5213 HP
Nederland

Frits Wilbrink profile image
Frits Wilbrink
Real Estate Agent
€2.350.000 k.k.
Woonoppervlakte
320m2
Perceeloppervlakte
1336m2
Slaapkamers
8

Omschrijving

Vrijstaande villa in het Hinthamerpark.

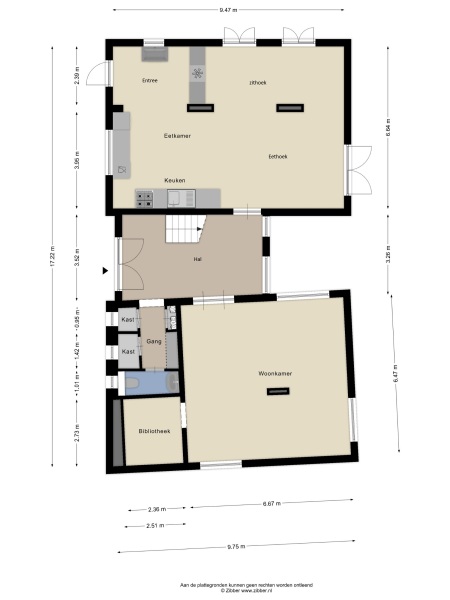
Deze woning is gebouwd in de architectuur van “De Bossche School”. Door deze architectuur, maar ook door de omvang van het pand en het perceel, laat het zich niet vergelijken met andere woningen in de wijk. De architectuur garandeert de bewoner ruimtes met de juiste verhoudingen en mooie doorkijken. Er is een voorhuis en een achterhuis welke verbonden zijn door een hal en trappenhuis. Niet alleen het aantal slaapkamer, maar ook de grote leefruimtes, zorgen ervoor dat je hier als gezin heel royaal en comfortabel leeft. De grote tuin rondom doet dit ook. Er zijn diverse terrassen, een speelveld met volwassen bomen en een bloementuin aan het atelier. Dít is het huis waarvan de buurt zich afvroeg wanneer het te koop zou komen. Nu is dus uw kans.

Download de brochure hier op Funda of vraag een bezichtiging aan. We zijn u graag van dienst.

Kenmerken

Overdracht
Vraagprijs
€ 2.350.000 k.k.
Status
beschikbaar
Aanvaarding
in overleg
Bouw
Soort woonhuis
Villa
Soort bouw
vrijstaande woning
Bouwjaar
1955
Soort dak
dwarskap
Slaapkamers
8
Badkamers
2
Oppervlakten en inhoud
Woonoppervlakte
320 m2
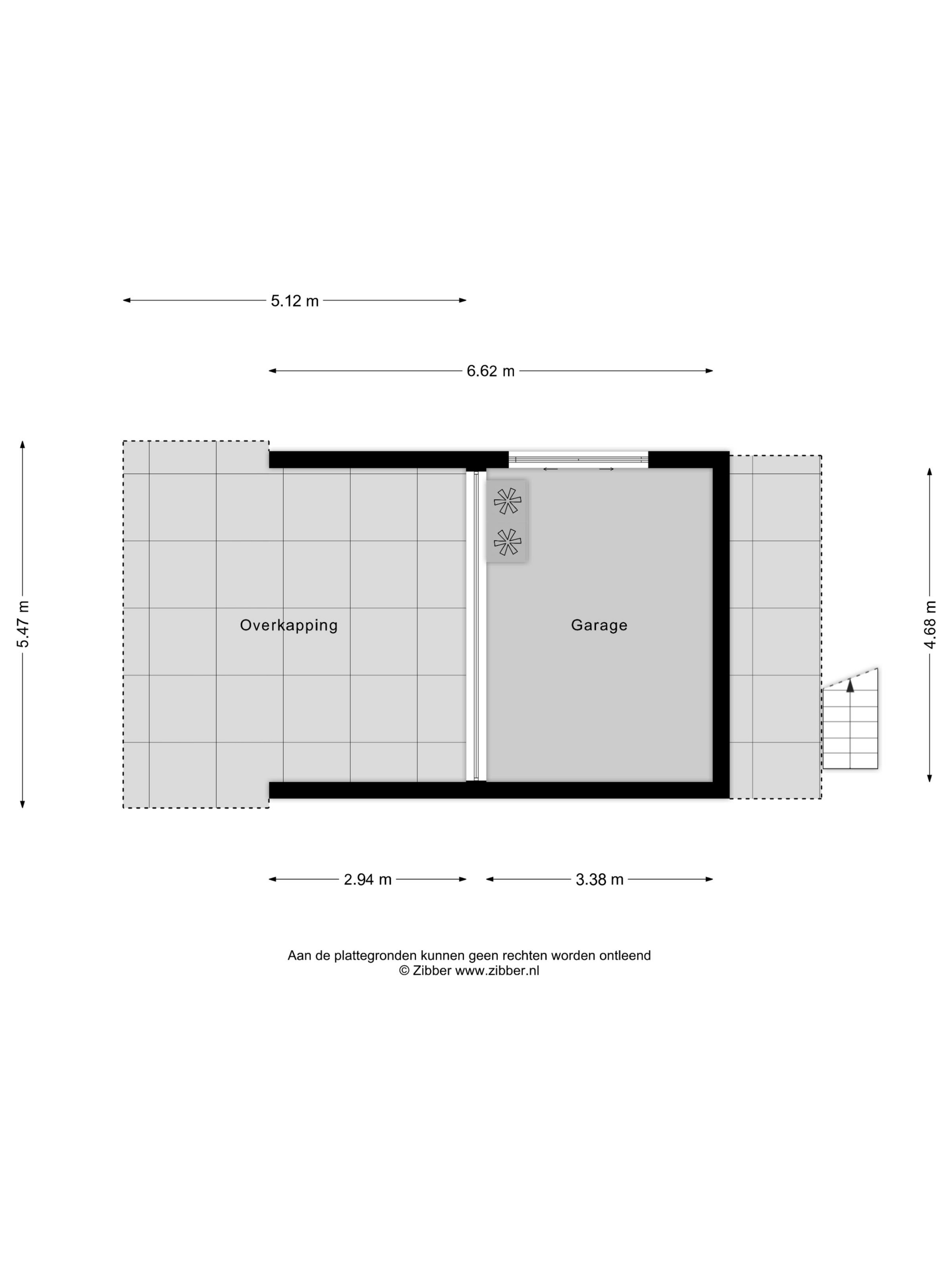
Overige inpandige ruimte
18 m2
Externe bergruimte
39 m2
Inhoud
1253 m3
Perceeloppervlakte
1336 m2
faciliteiten
Mechanische ventilatie
Natuurlijke ventilatie
Aan rustige weg
In woonwijk
Vrij uitzicht
Baerz & Co Property Brochure

Brochure

Plattegronden

Wilbrink & v.d. Vlugt Makelaars

Heereweg 231
2161 BG Lisse

info@wilbrinkvandervlugt.nl
+31 252 41 90 49

www.onsaanbod.nl

Informatie / bezichtigingsaanvraag

Frits Wilbrink profile image
Frits Wilbrink
Real Estate Agent