Baerz & Co is een landelijk samenwerkingsverband van zorgvuldig geselecteerde boutique luxury makelaars. Samen vormen wij één netwerk, met één gedeeld aanbod. De woningen die u op onze website ziet, zijn afkomstig van alle aangesloten kantoren binnen Baerz & Co. Daardoor is niet ieder object rechtstreeks door ons kantoor in verkoop, maar door een gespecialiseerde collega binnen ons netwerk. Heeft u een woning gevonden die u aanspreekt en wilt u meer informatie? Dan brengen wij u graag persoonlijk in contact met de betreffende verkoopmakelaar, zodat u direct en zorgvuldig wordt begeleid.

AMSTERDAM
Gustav Mahlerlaan 132 - 1082 ME
Nederland

Frits Wilbrink profile image
Frits Wilbrink
Real Estate Agent
€925.000 k.k.
Woonoppervlakte
106m2
Perceeloppervlakte
N/A
Slaapkamers
2

Omschrijving

Gustav Mahlerlaan 132 1082 ME Amsterdam

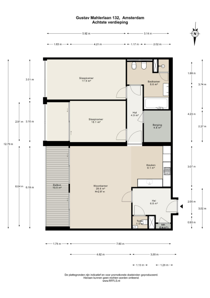
Luxe wonen op de 8e verdieping van New Amsterdam aan de Zuidas. In het gebouw New Amsterdam bieden wij een modern appartement aan van circa 105 m² met prachtig uitzicht over de Zuidas. Dit appartement beschikt over 2 ruime slaapkamers, een moderne badkamer en een ruim balkon van circa. 11 m². Hier komen gemak en luxe samen.

New Amsterdam: luxe appartementen met een hoog afwerkingsniveau. Tevens toegang tot hoogwaardige faciliteiten waaronder de private health club (fitness en sauna’s) en zwembad. Gemak en luxe stadsleven komen hier samen.

Bereikbaarheid & ligging

De Gustav Mahlerlaan is een ruim opgezette straat op de Zuidas welke loopt van De Boelelaan tot aan de Beethovenstraat. Naast de bedrijvigheid is er een ruim aanbod aan horeca in de nabije omgeving denk hierbij aan Nela, Happyhappyjoyjoy en Green Gastrobar. Bovendien bent u binnen vijf fietsminuten op de gezellige Beethovenstraat met een scala aan horeca, hippe boetieks, winkels en speciaalzaken. De echte winkelliefhebber kan zijn hart ophalen bij het Gelderlandplein, een overdekt luxe winkelcentrum met ook hier een tal aan speciaalzaken en mogelijkheden voor de dagelijkse boodschappen. Voor sport, recreatie en ontspanning bent u om de hoek van het Beatrixpark en binnen 10 minuten in het Amsterdamse Bos om te genieten van een heerlijke wandeling. De bereikbaarheid is uitstekend: de woning heeft een gunstige ligging ten opzichte van de uitvalswegen A9 en A10. Op enkele minuten lopen vanaf het appartement bevindt zich Station Zuid, waar frequent diverse treinen, bussen en trams vertrekken. Binnen zes minuten bent u met de trein op Schiphol en binnen 10 minuten in hartje centrum op het Amsterdam Centraal Station.

Indeling

Bij binnenkomst op de 8e verdieping betreedt u een ruime hal met de meterkast, een separaat toilet en ruimte voor een garderobe. Vanuit hier loopt u het ruime woon/leefgedeelte in, waar u niet ontkomt aan het uitzicht wat de ruimte open doet aanvoelen. Middels een schuifpui aan de voorzijde heeft u toegang tot het ruime balkon dat zich over de gehele breedte van het appartement strekt. Een ideale plek om te ontspannen, te genieten van u ontbijt of het uitzicht. De open keuken is gelegen aan de achterzijde en is voorzien van moderne inbouwapparatuur, waaronder een koelkast, vriezer, inductiekookplaat, Quooker en vaatwasser.

Een tweede hal verbindt de woon/leefruimte met de slaapvertrekken aan de voorzijde en badkamer aan de achterzijde. Beide slaapkamers zijn opvallend ruim en de grote ramen zorgen voor een open gevoel. De kamers brengen rust met zich mee. De hoofdslaapkamer beschikt eveneens over een serre en voelt daardoor extra ruimtelijk aan. Achterin bevindt zich een moderne badkamer, met wastafelmeubel, een ligbad, bidet en inloopdouche. U heeft vanuit de hal ook nog toegang tot een ruime berging voor extra opbergruimte.

In de onderbouw is nog een berging aanwezig.

Wil je luxe, comfort en een toplocatie combineren? Dan is dit appartement op de Zuidas dé plek.

Bijzonderheden:
- Gelegen op de 8e verdieping van gebouw New Amsterdam op de Zuidas
- Diverse faciliteiten: Healtch Club, zwembad, sauna, fitness, service centre, 24/7 conciergeservice
- Appartementsrecht ca. 105m² (NEN280 rapport aanwezig)
- Ruim balkon ca. 11m²
- Lift aanwezig
- Energielabel A+
- Actieve VvE, professioneel beheerd. Maandelijkse servicekosten €559,49 appartement en € 4,72 berging
- Erfpacht AB 2016. Eeuwigdurend afgekocht
- Projectnotaris Maatschap van Buttingha Wichers Notarissen in Den Haag
- Niet-zelfbewoningsclausule
- Oplevering in overleg

Deze informatie is door ons met de nodige zorgvuldigheid samengesteld. Onzerzijds wordt echter geen enkele aansprakelijkheid aanvaard voor enige onvolledigheid, onjuistheid of anderszins, dan wel de gevolgen daarvan. Alle opgegeven maten en oppervlakten zijn indicatief. Koper heeft zijn eigen onderzoek plicht naar alle zaken die voor hem of haar van belang zijn. Met betrekking tot deze woning is de makelaar adviseur van verkoper. Wij adviseren u een deskundige (NVM-)makelaar in te schakelen die u begeleidt bij het aankoopproces. Indien u specifieke wensen heeft omtrent de woning, adviseren wij u deze tijdig kenbaar te maken aan uw aankopend makelaar en hiernaar zelfstandig onderzoek te (laten) doen. Indien u geen deskundige vertegenwoordiger inschakelt, acht u zich volgens de wet deskundige genoeg om alle zaken die van belang zijn te kunnen overzien.

Kenmerken

Zwembad
Overdracht
Vraagprijs
€ 925.000 k.k.
Status
verkocht onder voorbehoud
Aanvaarding
in overleg
Bouw
Soort woonhuis
Bovenwoning
Soort bouw
appartement
Energieklasse
A+
Soort dak
plat dak
Slaapkamers
2
Badkamers
1
Oppervlakten en inhoud
Woonoppervlakte
106 m2
Overige inpandige ruimte
0 m2
Gebouwgebonden buitenruimte
11 m2
Inhoud
377 m3
faciliteiten
Tv kabel
Zwembad
Lift
Schuifpui
Sauna
Balansventilatie
Aan drukke weg
Baerz & Co Property Brochure

Brochure

Video’s

Plattegronden

Wilbrink & v.d. Vlugt Makelaars

Heereweg 231
2161 BG Lisse

info@wilbrinkvandervlugt.nl
+31 252 41 90 49

www.onsaanbod.nl

Informatie / bezichtigingsaanvraag

Frits Wilbrink profile image
Frits Wilbrink
Real Estate Agent

Een luxe woning kopen in Amsterdam

Amsterdam biedt een kosmopolitische levensstijl, gekenmerkt door erfgoed, verbondenheid en discrete luxe. Bewoners profiteren van een sterke internationale gemeenschap, hoogwaardige dienstverlening en een bruisende cultuur. De blijvende aantrekkingskracht van de stad schuilt in de combinatie van geschiedenis, verfijning en een vooruitstrevende geest.