Ons kantoor is lid van Baerz & Co Luxury Homes; een internationaal platform dat exclusieve woningmakelaars met elkaar verbindt. Neem contact op met ons secretariaat voor meer informatie over het landelijke aanbod, waarvan u hieronder een selectie kunt bekijken.

AMSTERDAM
Herengracht 326 2 - 1016 CE
Nederland

Sander Bovenkerk profile image
Sander Bovenkerk
Real estate agent
€2.550 p.m.
Woonoppervlakte
71m2
Perceeloppervlakte
N/A
Slaapkamers
1

Omschrijving

Herengracht 326-2, 1016 CE Amsterdam

Heerlijk licht en sfeervol appartement van circa 71 m², gelegen op de tweede verdieping van een karakteristiek pand aan de Herengracht. De woning beschikt over één slaapkamer, een royale living en een prachtig uitzicht over de gracht. Het appartement wordt volledig gemeubileerd verhuurd en is niet geschikt voor woningdelers of huisdieren.

Bereikbaarheid
In de directe omgeving vindt u een breed aanbod aan boetiekjes, restaurants, cafés en buurtwinkels. De Dam, Magna Plaza, de Negen Straatjes, de Jordaan, de Westerkerk en Amsterdam Centraal liggen op loopafstand. Ook het openbaar vervoer is uitstekend: diverse tram- en busverbindingen bevinden zich in de nabije omgeving.

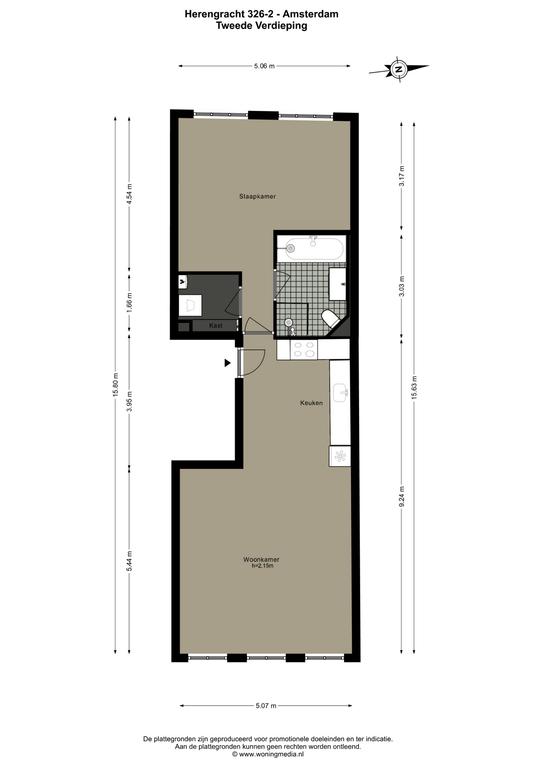
Indeling
Via de verzorgde gemeenschappelijke entree bereikt u de woning op de tweede verdieping.

Entree in de ruime en lichte woonkamer met open keuken, voorzien van een koelkast, vriezer, vaatwasser, gasfornuis met oven en spoelbak. De grote raampartijen bieden veel natuurlijk licht en een prachtig uitzicht over de Herengracht. Aan de achterzijde ligt de ruime slaapkamer, eveneens met grote ramen en uitzicht op de groene binnentuinen.

Centraal in het appartement bevindt zich een praktische wasruimte met wasmachine, droger en ingebouwde kast. De badkamer is uitgerust met een douche, ligbad, toilet en wastafelmeubel.

Bijzonderheden
- Woonoppervlakte circa 71 m²
- Ruime en lichte woonkamer met uitzicht over de gracht
- Één slaapkamer
- Gemeubileerd
- Huurprijs exclusief gas, water, elektra, tv en internet
- Huisdieren niet toegestaan
- Niet geschikt voor delers
- Per direct beschikbaar
- Waarborgsom: twee maanden kale huur
- Inkomenseis: minimaal 2,5 tot 3 keer de huur

Deze informatie is door ons met de nodige zorgvuldigheid samengesteld. Onzerzijds wordt echter geen enkele aansprakelijkheid aanvaard voor enige onvolledigheid, onjuistheid of anderszins, dan wel de gevolgen daarvan. Alle opgegeven maten en oppervlakten zijn indicatief. Koper heeft zijn eigen onderzoek plicht naar alle zaken die voor hem of haar van belang zijn. Met betrekking tot deze woning is de makelaar adviseur van verkoper. Wij adviseren u een deskundige (NVM-)makelaar in te schakelen die u begeleidt bij het aankoopproces. Indien u specifieke wensen heeft omtrent de woning, adviseren wij u deze tijdig kenbaar te maken aan uw aankopend makelaar en hiernaar zelfstandig onderzoek te (laten) doen. Indien u geen deskundige vertegenwoordiger inschakelt, acht u zich volgens de wet deskundige genoeg om alle zaken die van belang zijn te kunnen overzien.

Ontdek Amsterdam met Baerz, Uw Vertrouwde Personal Property Finder & Advisor

Het navigeren van de Amsterdamse luxemarkt vereist diepgaande lokale kennis, discretie en onderhandelingservaring. Topadviseurs verschaffen toegang tot private aanbiedingen, verduidelijken complexe eigendomsregels en signaleren waarde in een markt waar kansen zelden publiekelijk verschijnen. Adviesteams zorgen voor grondige beoordeling en professionele vertegenwoordiging, versterken uw positie bij onderhandelingen, begeleiden transacties vlekkeloos en beschermen uw privacy in elke fase.

Kenmerken

Overdracht
Huurprijs
€ 2.550 p.m.
Status
beschikbaar
Aanvaarding
direct
Bouw
Soort woonhuis
Tussenverdieping
Soort bouw
appartement
Bouwjaar
1700
Energieklasse
B
Soort dak
zadeldak
Slaapkamers
1
Badkamers
1
Oppervlakten en inhoud
Woonoppervlakte
71 m2
Overige inpandige ruimte
0 m2
Inhoud
213 m3
faciliteiten
Tv kabel
Aan water
In centrum
Vrij uitzicht
Baerz & Co Property Brochure

Brochure

Video’s

Plattegronden

Heeren Makelaars

Stadionweg 75
1077 SE Amsterdam

info@heerenmakelaars.nl
+31 204702255

www.heerenmakelaars.nl

Informatie / bezichtigingsaanvraag

Sander Bovenkerk profile image
Sander Bovenkerk
Real estate agent