Ons kantoor is lid van Baerz & Co Luxury Homes; een internationaal platform dat exclusieve woningmakelaars met elkaar verbindt. Neem contact op met ons secretariaat voor meer informatie over het landelijke aanbod, waarvan u hieronder een selectie kunt bekijken.

AMSTERDAM
Minervalaan 76 3 - 1077 PH
Nederland

Michiel Floberg profile image
Michiel Floberg
Real estate agent
€1.385.000 k.k.
Woonoppervlakte
132m2
Perceeloppervlakte
N/A
Slaapkamers
2

Omschrijving

Minervalaan 76-3, 1077 PH Amsterdam

Uitstekend ingedeeld appartement (ca. 132m²) met twee courante slaapkamers en heerlijk balkon. Het statige appartement is heerlijk licht en is gelegen aan één van de mooiste en groene lanen van Amsterdam Zuid. De woning is zeer goed onderhouden. Een fijne zolderkamer met dakterras, een ruime bergvliering en een lift behoren tot de vele pluspunten van het appartement.

Locatie/Bereikbaarheid:

De Minervalaan staat bekend als een zeer statige straat met veel Berlage details in Amsterdam Zuid. De woning is gelegen op het prachtig stuk van de Minervalaan tussen de Stadionweg en het fietsersbruggetje vlakbij station Zuid/WTC. Wonen aan de Minervalaan betekent rustig wonen met uitzicht over veel groen maar toch op loopafstand van alles wat het bruisende Amsterdam Zuid te bieden heeft. De Beethovenstraat, Stadionweg en de Cornelis Schuytstraat met een zeer breed aanbod supermarkten, speciaalzaken en andere winkels zijn zeer nabij gelegen. Aan horeca ook geen gebrek in Amsterdam Zuid: onwijs veel leuke terrassen, cafés, lunchrooms en restaurants sieren de buurt. Het appartement is omringd door goede (inter)nationale (basis)scholen. Het Vondelpark en het Beatrixpark alsmede het Amstelpark zijn dichtbij de woning gelegen. Hier kunt u terecht voor sport en recreatie.
De bereikbaarheid is uitstekend: binnen enkele minuten lopen bereikt u station Zuid/WTC, met metro’s, treinen en bussen in alle richtingen. Er is hier tevens een directe verbinding met Schiphol. Vanaf station Zuid geraakt u binnen 10 minuten op Amsterdam Centraal station. Vanaf hier vertrekken bussen, treinen, trams én metro’s in alle richtingen en kunt u met de pont het IJ oversteken. Parkeren is geen probleem aan de Minervalaan, u kunt thans zonder wachttijd twee vergunningen krijgen.

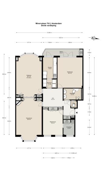
Indeling:

Nette gemeenschappelijke entree met lift en trappenhuis.

Derde etage:

Ruime entreehal die toegang geeft tot alle vertrekken. In de hal heeft u een kast voor de garderobe. Daarnaast de meterkast en hiertegen over een seperaat toilet met fontein. Aan de voorzijde gelegen een goed bemeten slaapkamer met walk-in closet en diverse inbouwkasten. Aan de achterzijde een grote slaapkamer die middels openslaande deuren toegang geeft tot het balkon op het westen. Hier heeft u uitzicht op de fraai aangelegde, groene en verzorgde binnentuinen van de Minervalaan en Michelangelostraat.
De badkamer is centraal gelegen en is voorzien van twee wastafels, een toilet en inloopdouche. De keuken ligt tevens aan de achterzijde en beschikt over een spoelbak, inductiekookplaat, vaatwasser, koelvries-combinatie, een oven en een magnetron. Vanuit de keuken heeft u eveneens toegang tot het balkon. Er is genoeg opbergruimte in de keuken. De bijkeuken is voorzien van de benodigde aansluitingen voor een wasmachine en droger.
De kamer- en suite met de woon- en eetkamer en de hal hebben mooie authentieke details. De riante woonkamer van het appartement ligt aan de voorzijde, de eetkamer aan de achterkant. Beide kamers hebben een sfeervolle erker met mooi lichtinval. Originele en-suite deuren met inbouwkasten aan weerszijden maken het mogelijk om de ruimtes af te sluiten. De eetkamer beschikt over een airconditioning.

Kortom: een courant appartement gelegen op een toplocatie!

Zolderverdieping:
Zolderkamer met wastafel, douche en inbouwkasten. Middels een deur heeft u toegang tot uw eigen dakterras.

Vliering:
Vanaf de gemeenschappelijke overloop bereikt u de zolderverdieping. Door middel van een vlizotrap bereikt u de ruime bergvliering (33m²).

Minervalaan:
In de Romeinse mythologie de godin van de wijsheid. (Bron: Stadsatlas Amsterdam)

Bijzonderheden:
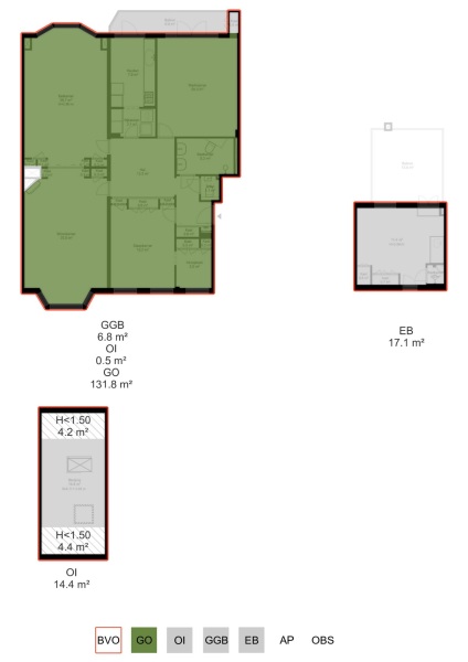
- Appartementsrecht 132m² (gemeten conform NEN2580 meetinstructie)
- Ruim, licht appartement
- Erfpacht afgekocht tot 30 juni 2055
- Gemeentelijk monument
- Actieve VvE, professioneel beheerd
- Maandelijkse servicekosten bedragen: € 350,-
- Eigen C.V.-installatie
- Zolderkamer (ca. 17m²) met dakterras
- Bergvliering (14m²) te bereiken vanaf de zolderetage
- In 2023 is het appartement op de derde etage voorzien van Bengglas, volgens voorschriften en toestemming van Monumenten Amsterdam
- In het hele appartement zijn de vloeren geïsoleerd met fermacell
- Lift
- Parkeren via vergunningsstelsel, 2 vergunningen per direct beschikbaar
- Oplevering in overleg

Deze informatie is door ons met de nodige zorgvuldigheid samengesteld. Onzerzijds wordt echter geen enkele aansprakelijkheid aanvaard voor enige onvolledigheid, onjuistheid of anderszins, dan wel de gevolgen daarvan. Alle opgegeven maten en oppervlakten zijn indicatief. Koper heeft zijn eigen onderzoek plicht naar alle zaken die voor hem of haar van belang zijn. Met betrekking tot deze woning is de makelaar adviseur van verkoper. Wij adviseren u een deskundige (NVM-)makelaar in te schakelen die u begeleidt bij het aankoopproces. Indien u specifieke wensen heeft omtrent de woning, adviseren wij u deze tijdig kenbaar te maken aan uw aankopend makelaar en hiernaar zelfstandig onderzoek te (laten) doen. Indien u geen deskundige vertegenwoordiger inschakelt, acht u zich volgens de wet deskundige genoeg om alle zaken die van belang zijn te kunnen overzien. Van toepassing zijn de NVM voorwaarden.

Ontdek Amsterdam met Baerz, Uw Vertrouwde Personal Property Finder & Advisor

Het navigeren van de Amsterdamse luxemarkt vereist diepgaande lokale kennis, discretie en onderhandelingservaring. Topadviseurs verschaffen toegang tot private aanbiedingen, verduidelijken complexe eigendomsregels en signaleren waarde in een markt waar kansen zelden publiekelijk verschijnen. Adviesteams zorgen voor grondige beoordeling en professionele vertegenwoordiging, versterken uw positie bij onderhandelingen, begeleiden transacties vlekkeloos en beschermen uw privacy in elke fase.

Speciale Kenmerken

Air conditioning

Kenmerken

Overdracht
Vraagprijs
€ 1.385.000 k.k.
Status
verkocht onder voorbehoud
Aanvaarding
in overleg
Bouw
Soort woonhuis
Bovenwoning
Soort bouw
appartement
Bouwjaar
1931
Soort dak
zadeldak
Slaapkamers
2
Badkamers
2
Oppervlakten en inhoud
Woonoppervlakte
132 m2
Overige inpandige ruimte
15 m2
Gebouwgebonden buitenruimte
7 m2
Externe bergruimte
17 m2
Inhoud
556 m3
faciliteiten
Tv kabel
Lift
Airconditioning
Aan rustige weg
In woonwijk
Vrij uitzicht
Baerz & Co Property Brochure

Brochure

Video’s

Plattegronden

Heeren Makelaars

Stadionweg 75
1077 SE Amsterdam

info@heerenmakelaars.nl
+31 204702255

www.heerenmakelaars.nl

Informatie / bezichtigingsaanvraag

Michiel Floberg profile image
Michiel Floberg
Real estate agent