Ons kantoor is lid van Baerz & Co Luxury Homes; een internationaal platform dat exclusieve woningmakelaars met elkaar verbindt. Neem contact op met ons secretariaat voor meer informatie over het landelijke aanbod, waarvan u hieronder een selectie kunt bekijken.

AMSTERDAM
Schubertstraat 40 H - 1077 GV
Nederland

Sander Bovenkerk profile image
Sander Bovenkerk
Real estate agent
€2.500.000 k.k.
Woonoppervlakte
277m2
Perceeloppervlakte
N/A
Slaapkamers
5

Omschrijving

Dit prachtig gerenoveerde, ruime en luxueuze parterre appartement van circa 277 m² is gelegen in het zeer geliefde Amsterdam Zuid. Deze gelijkvloerse woning biedt maar liefst vijf royale slaapkamers, drie stijlvolle badkamers en een zonnige tuin op het zuidwesten, waar u heerlijk van de zon kunt genieten. De locatie is ideaal: diverse parken, uitvalswegen, winkels en internationale scholen bevinden zich op korte afstand, wat dit een perfecte plek maakt voor een comfortabel en stijlvol leven in de stad.

Locatie:
De Schubertstraat staat bekend als een van de meest prestigieuze straten in Amsterdam Zuid, gekenmerkt door de fraaie architectonische details van Berlage. Op een steenworp afstand vindt u de levendige Beethovenstraat en Stadionweg, waar een divers aanbod van supermarkten, speciaalzaken en andere winkels te vinden is. Ook op het gebied van horeca biedt de buurt volop keuze, met gezellige terrassen, sfeervolle cafés, lunchrooms en uitstekende restaurants die het straatbeeld verlevendigen.

De omgeving is verder omgeven door uitstekende (inter)nationale basis- en middelbare scholen, wat het tot een ideale woonplek maakt voor gezinnen. Voor sport en recreatie hoeft u niet ver te zoeken, met nabijgelegen parken zoals het Vondelpark, Beatrixpark en Amstelpark, waar u kunt ontspannen, wandelen of sporten in het groen.

Wat betreft bereikbaarheid zit u hier perfect: station Zuid/WTC, waar u metro’s, treinen en bussen in alle richtingen vindt, ligt op loopafstand. Bovendien is er een directe verbinding met Schiphol, en bereikt u vanuit station Zuid/WTC binnen 10 minuten Amsterdam Centraal Station. Van daaruit heeft u toegang tot een uitgebreid netwerk van openbaar vervoer en de veerpont over het IJ. Parkeren is eveneens goed geregeld, bovendien kunt u momenteel zonder wachttijd twee parkeervergunningen verkrijgen.

Indeling:
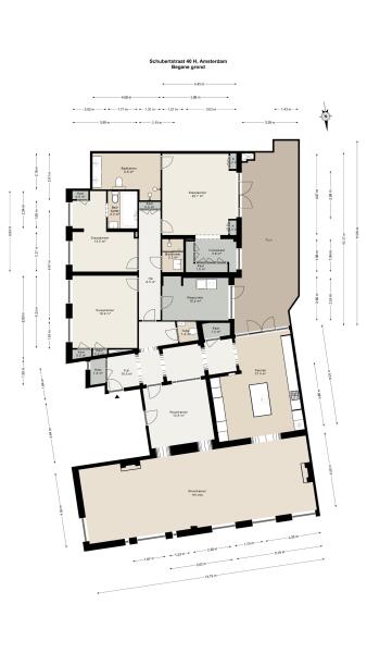
Begane grond:
Bij binnenkomst in het appartement betreedt u een royale hal die direct een gevoel van ruimte en elegantie biedt. Hier bevindt zich een separaat gastentoilet en vanuit de hal heeft u toegang tot alle vertrekken van de woning. Aan de rechterzijde treft u de ruime woonkamer met een halfopen keuken, terwijl de slaapkamers en badkamers zich aan de linkerzijde van het appartement bevinden.

Op deze verdieping bevinden zich drie ruime slaapkamers, elk voorzien van grote ramen die veel natuurlijk licht binnenlaten. De master bedroom heeft een royale inloopkast en een grote en-suite badkamer, uitgerust met een dubbele douche en wastafel. Ook de tweede slaapkamer heeft een eigen badkamer en-suite, compleet met ligbad, toilet en wastafel. De derde, centraal gelegen badkamer beschikt over een inloopdouche en wastafel. Aan deze kant van het appartement is bovendien een ruime wasruimte, die desgewenst als extra slaapkamer kan worden ingericht. De derde slaapkamer beschikt over praktische inbouwkasten.

De royale woonkamer ademt luxe en sfeer met twee sfeervolle open haarden, sierlijke plafondlijsten en chique lambrisering. De warme, donkerbruine houten vloer, gelegd in een klassieke Hongaarse punt, geeft de ruimte extra karakter. Naast de woonkamer bevindt zich nog een extra kamer, ideaal te gebruiken als studeer- of tweede woonkamer.

Aansluitend aan de woonkamer vindt u de keuken. De luxe woonkeuken is een ware eyecatcher en vormt het hart van de woning. Er is bij de renovatie geen detail overgeslagen: een prachtig marmeren werkblad, op maat gemaakte kasten, grote vloertegels en moderne ledverlichting met dimmers maken de keuken niet alleen praktisch, maar ook stijlvol. De keuken is uitgerust met hoogwaardige inbouwapparatuur, waaronder een combi-oven, stoomoven, vaatwasser, koel-vriescombinatie, inductiekookplaat met geïntegreerd afzuigsysteem, een messing Quooker en een wijnklimaatkast. Via de openslaande deuren betreedt u de zonnige, op het zuidwesten gelegen tuin, waar u volop van de zon kunt genieten.

Souterrain:
Onder het appartement bevindt zich een ruim souterrain met twee volwaardige kamers, waarvan één momenteel wordt gebruikt als slaapkamer. De kamers hebben een goede stahoogte van 2,23 meter en bieden daardoor extra woon- en opslagruimte.

Bijzonderheden:
- Woonoppervlakte van ca. 277 m² (NEN 2580 rapport aanwezig);
- Souterrain ca. 38 m²;
- Heerlijk zonnige tuin van ca. 36 m² gelegen op het zuidwesten;
- Vloerverwarming in de hal, badkamer en keuken;
- Gezonde VvE bestaande uit 4 appartementsrechten, maandelijkse servicekosten € 577,- per maand;
- MJOP aanwezig;
- Gelegen op erfpachtgrond, afgekocht tot en met 30 november 2053;
- Parkeren middels vergunningsstelsel. Bron: Parkeren en Verkeer gemeente Amsterdam;
- Oplevering in overleg.

Deze informatie is door ons met de nodige zorgvuldigheid samengesteld. Onzerzijds wordt echter geen enkele aansprakelijkheid aanvaard voor enige onvolledigheid, onjuistheid of anderszins, dan wel de gevolgen daarvan. Alle opgegeven maten en oppervlakten zijn indicatief. Koper heeft zijn eigen onderzoeksplicht naar alle zaken die voor hem of haar van belang zijn. Met betrekking tot deze woning is de makelaar adviseur van verkoper. Wij adviseren u een deskundige (NVM-)makelaar in te schakelen die u begeleidt bij het aankoopproces. Indien u specifieke wensen heeft omtrent de woning, adviseren wij u deze tijdig kenbaar te maken aan uw aankopend makelaar en hiernaar zelfstandig onderzoek te (laten) doen. Indien u geen deskundige vertegenwoordiger inschakelt, acht u zich volgens de wet deskundige genoeg om alle zaken die van belang zijn te kunnen overzien. Van toepassing zijn de NVM voorwaarden.

Ontdek Amsterdam met Baerz, Uw Vertrouwde Personal Property Finder & Advisor

Het navigeren van de Amsterdamse luxemarkt vereist diepgaande lokale kennis, discretie en onderhandelingservaring. Topadviseurs verschaffen toegang tot private aanbiedingen, verduidelijken complexe eigendomsregels en signaleren waarde in een markt waar kansen zelden publiekelijk verschijnen. Adviesteams zorgen voor grondige beoordeling en professionele vertegenwoordiging, versterken uw positie bij onderhandelingen, begeleiden transacties vlekkeloos en beschermen uw privacy in elke fase.

Kenmerken

Overdracht
Vraagprijs
€ 2.500.000 k.k.
Status
verkocht onder voorbehoud
Aanvaarding
in overleg
Bouw
Soort woonhuis
Dubbel benedenhuis
Soort bouw
appartement
Bouwjaar
1931
Energieklasse
E
Soort dak
zadeldak
Slaapkamers
5
Badkamers
3
Oppervlakten en inhoud
Woonoppervlakte
277 m2
Overige inpandige ruimte
0 m2
Inhoud
1087 m3
faciliteiten
Tv kabel
Natuurlijke ventilatie
In woonwijk
Baerz & Co Property Brochure

Brochure

Video’s

Plattegronden

Heeren Makelaars

Stadionweg 75
1077 SE Amsterdam

info@heerenmakelaars.nl
+31 204702255

www.heerenmakelaars.nl

Informatie / bezichtigingsaanvraag

Sander Bovenkerk profile image
Sander Bovenkerk
Real estate agent