Ons kantoor is lid van Baerz & Co Luxury Homes; een internationaal platform dat exclusieve woningmakelaars met elkaar verbindt. Neem contact op met ons secretariaat voor meer informatie over het landelijke aanbod, waarvan u hieronder een selectie kunt bekijken.

AMSTERDAM
Stadhouderskade 22 B - 1054 ES
Nederland

Sander Bovenkerk profile image
Sander Bovenkerk
Real estate agent
€2.400.000 k.k.
Woonoppervlakte
219m2
Perceeloppervlakte
N/A
Slaapkamers
3

Omschrijving

Uniek licht penthouse (ca. 219 m²) met parkeerplaats (separaat te koop) inclusief laadpaal en lift gelegen aan het Vondelpark!

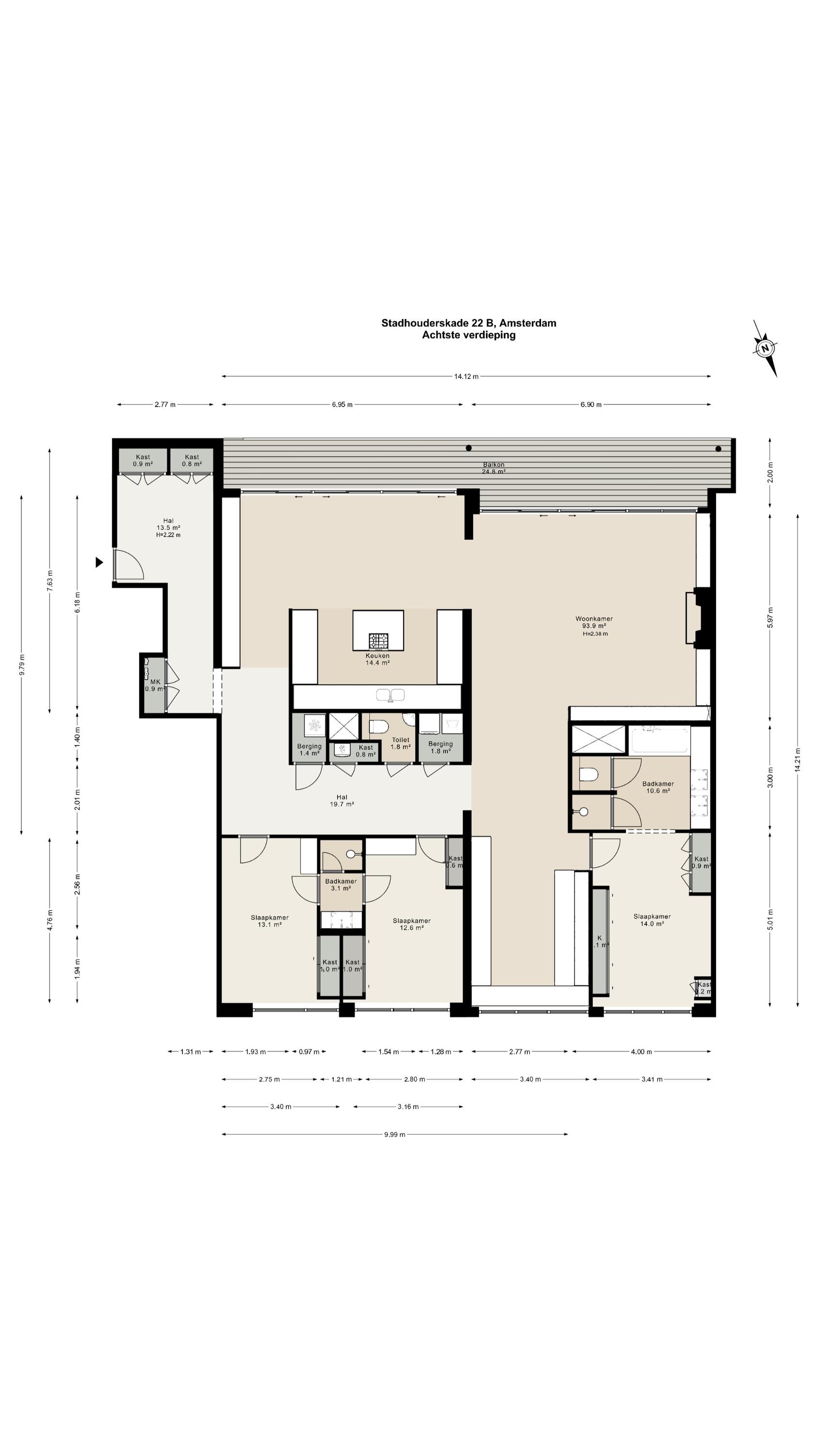
Dit unieke appartement bevindt zich op de achtste verdieping van appartementencomplex Byzantium en bestaat uit een royale living, open keuken, drie slaapkamers, twee badkamers, een prettige werkruimte en een separate berging, gelegen op de begane grond. Bovendien beschikt u over een breed balkon dat zich uitstrekt over de gehele woning, voorzien van zonwering en een prachtig uitzicht op het Vondelpark.

Ligging & Bereikbaarheid

Byzantium is gelegen op een ideale locatie: Aan de ene zijde de bruisende binnenstad en aan de andere zijde de rust van het Vondelpark. Hotel Americain, de Stadsschouwburg, DeLaMar Theater, het Leidseplein met z'n vele internationaal georiënteerde eetgelegenheden, Pathé Bioscopen, Het Rijksmuseum, Stedelijk Museum, het van Gogh Museum en het Concertgebouw, allemaal op loopafstand gelegen. Ook de bekende winkelstraten zoals P.C. Hooftstraat en Van Baerlestraat bevinden zich om de hoek. De woning is uitstekend bereikbaar met zowel de auto als het openbaar vervoer. Rondom het Leidseplein zijn haltes voor tramlijnen 1,2,5,7,11,19 en bij het busstation aan de Marnixstraat ter hoogte van de Elandsgracht vindt u haltes voor diverse buslijnen waaronder de snelbus naar Schiphol. Met de auto bent u binnen 15 minuten bereikt ut diverse uitvalwegen waaronder de ring A10. Parkeren kan in de parkeergarage op de begane grond van het complex of om de hoek in de straat tegen betaling.

Complex Byzantium
De woning is gelegen in het moderne appartementengebouw “Byzantium” op de achtste verdieping van dit complex. Het gebouw is ontworpen door de wereldberoemde architect Rem Koolhaas en heeft een moderne, luxueuze entree van natuursteen. De fraaie hal heeft een lift en een zeer verzorgd trappenhuis. Het complex heeft een goed beveiligingssysteem, waaronder een 24 uurs camerabewaking en een huismeester. Zowel de entree op de begane grond als de parkeergarage zijn bewaakt. Vanuit de parkeergarage heeft u direct toegang tot het trappenhuis en kunt u binnendoor de woning bereiken. Bovendien is de garage voorzien van een fietsenberging en wasstraat. Alsmede heeft de vereniging van eigenaren een gedeelde, fraai aangelegde en gemeubileerde, groene daktuin op de eerste verdieping.

Indeling

Bij binnenkomst wordt u verwelkomd door een royale entree, aan uw linkerzijde vindt u ruime garderobekasten. Vanuit de entree loopt u naar de open keuken met eetruimte. De keuken bestaat uit een kookeiland met 6-pits inductieplaat met afzuiger en oven, drie koelkasten, een magnetron, vaatwasser, Quooker en de nodige opbergruimte. Middels plafond hoge glazen schuifdeuren heeft u toegang tot het brede balkon van ca. 25 m². Het balkon is zo een twee meter diep en is voorzien van elektrische zonwering en biedt een schitterend uitzicht. Naast de eetruimte bevindt zich de riante living met gashaard en kastenwanden, de tv is middels een houten schuifpaneel af te schermen. Ideaal voor een gezellige avond bij de haard! Vanuit de woonkamer loopt u langs een comfortabele werkruimte waar u de nodige kastruimte tot uw beschikking heeft. De hoofdslaapkamer bevindt zich in de noordwesthoek van het appartement en is voorzien van ruime inbouwkasten, airconditioning, ingebouwde muziek speakers en een badkamer en-suite. De badkamer is bekleed met prachtig groen marmer en bestaat uit een dubbele wastafel met meubelstuk, een ligbad met douchekop, een toilet en een inloopdouche. De andere twee slaapkamers met gedeelde badkamer bevinden zich in de noordoosthoek van het appartement. Beiden zijn voorzien van inbouwkasten, airconditioning en ingebouwd bureau. De badkamer en-suite beschikt over een inloopdouche en wastafel met meubel. Vanuit de uitgestrekte hal tegenover deze twee slaapkamers vindt u nog een berging met vrieskast, een separaat toilet met fontein en een praktische wasruimte.
Kortom, een zeer praktisch ingedeelde woning met veel ruimte, lichtinval en een prachtige buitenruimte.

Bijzonderheden:

- Appartementsrecht van ca. 219 m² (NEN2580 rapport aanwezig)
- Uniek penthouse pal gelegen aan het Vondelpark
- Parkeerplaats met laadpaal in de onderbouw
- Vraagprijs parkeerplaats € 100.000,- kk
- Onderdeel van complex Byzantium
- Drie goed bemeten slaapkamers
- Twee badkamers
- Breed opgezet balkon (ca. 25m²) met uitzicht op het Vondelpark
- VvE wordt professioneel beheerd, MJOP aanwezig
- VvE bijdrage: € 824,52 per maand voor het appartement en € 10 voor de parkeerplaats
- Voortdurend recht van erfpacht: afgekocht t/m 30-09-2038
- Energielabel A
- Oplevering in overleg

Deze informatie is door ons met de nodige zorgvuldigheid samengesteld. Onzerzijds wordt echter geen enkele aansprakelijkheid aanvaard voor enige onvolledigheid, onjuistheid of anderszins, dan wel de gevolgen daarvan. Alle opgegeven maten en oppervlakten zijn indicatief. Koper heeft zijn eigen onderzoeksplicht naar alle zaken die voor hem of haar van belang zijn. Met betrekking tot deze woning is de makelaar adviseur van verkoper. Wij adviseren u een deskundige (NVM-)makelaar in te schakelen die u begeleidt bij het aankoopproces. Indien u specifieke wensen heeft omtrent de woning, adviseren wij u deze tijdig kenbaar te maken aan uw aankopend makelaar en hiernaar zelfstandig onderzoek te (laten) doen. Indien u geen deskundige vertegenwoordiger inschakelt, acht u zich volgens de wet deskundige genoeg om alle zaken die van belang zijn te kunnen overzien. Van toepassing zijn de NVM voorwaarden.

Ontdek Amsterdam met Baerz, Uw Vertrouwde Personal Property Finder & Advisor

Het navigeren van de Amsterdamse luxemarkt vereist diepgaande lokale kennis, discretie en onderhandelingservaring. Topadviseurs verschaffen toegang tot private aanbiedingen, verduidelijken complexe eigendomsregels en signaleren waarde in een markt waar kansen zelden publiekelijk verschijnen. Adviesteams zorgen voor grondige beoordeling en professionele vertegenwoordiging, versterken uw positie bij onderhandelingen, begeleiden transacties vlekkeloos en beschermen uw privacy in elke fase.

Speciale Kenmerken

Air conditioning

Kenmerken

Overdracht
Vraagprijs
€ 2.400.000 k.k.
Status
onder bod
Aanvaarding
in overleg
Bouw
Soort woonhuis
Penthouse
Soort bouw
appartement
Bouwjaar
1991
Energieklasse
A
Soort dak
samengesteld dak
Slaapkamers
3
Badkamers
0
Oppervlakten en inhoud
Woonoppervlakte
219 m2
Overige inpandige ruimte
0 m2
Gebouwgebonden buitenruimte
25 m2
Inhoud
635 m3
faciliteiten
Mechanische ventilatie
Buitenzonwering
Lift
Airconditioning
Rookkanaal
Aan park
In centrum
Vrij uitzicht
Baerz & Co Property Brochure

Brochure

Video’s

Plattegronden

Heeren Makelaars

Stadionweg 75
1077 SE Amsterdam

info@heerenmakelaars.nl
+31 204702255

www.heerenmakelaars.nl

Informatie / bezichtigingsaanvraag

Sander Bovenkerk profile image
Sander Bovenkerk
Real estate agent