Ons kantoor is lid van Baerz & Co Luxury Homes; een internationaal platform dat exclusieve woningmakelaars met elkaar verbindt. Neem contact op met ons secretariaat voor meer informatie over het landelijke aanbod, waarvan u hieronder een selectie kunt bekijken.

AMSTERDAM
Weteringschans 203 - 1017 XG
Nederland

Sander Bovenkerk profile image
Sander Bovenkerk
Real estate agent
€5.000 p.m.
Woonoppervlakte
137m2
Perceeloppervlakte
N/A
Slaapkamers
4

Omschrijving

Weteringschans 203, 1017 XG Amsterdam

Stijlvol en volledig gerenoveerd dubbel bovenhuis van circa 137 m², gelegen in een charmant pand met karakteristieke trapgevel. Deze woning beschikt over energielabel A, vier slaapkamers, een royale open keuken met kookeiland en een heerlijk dakterras van 32 m² met fraai uitzicht over de Lijnbaansgracht.

Ligging en bereikbaarheid:
Het bovenhuis is gelegen aan de Weteringschans, aan de rand van het centrum en stadsdeel Zuid. Een aantrekkelijke locatie vanwege de uitstekende bereikbaarheid, zowel met het openbaar vervoer als met de auto. Alsook vanwege de gunstige ligging ten opzichte van het centrum en uitvalswegen, met aansluiting op de ringweg (A2 en A10) en Het Centraal Station, station RAI/Zuid WTC en het Amstel Station zijn op fietsafstand gelegen.

Nabij vindt u o.a. het Weteringcircuit, Frederiksplein en de Stadhouderskade (westeinde) diverse haltes voor tram (o.a. lijn 4, 7, 10, en 16) en bus. Tevens zijn er op steenworp afstand haltes voor de Noord-Zuidlijn te vinden bij het Weteringscircuit. Vanuit de woning loopt u binnen enkele minuten de sfeervolle Utrechtsestraat in. Ook de Albert Cuypmarkt, Koninklijk Theater Carré en de Hermitage bevinden zich om de hoek. U profiteert hier maximaal van alle voordelen die Amsterdam te bieden heeft.

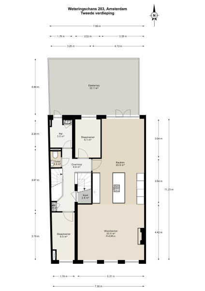
Indeling:
Het appartement is bereikbaar via een gemeenschappelijke entree, met een eigen opgang op de eerste verdieping met ruime trapkast. De woning strekt zich uit over de tweede en derde — tevens bovenste — verdieping van het pand.

Via de overloop, waar zich een separaat gastentoilet bevindt, zijn alle vertrekken op deze verdieping toegankelijk. Aan de linkerzijde bevinden zich twee goed bemeten slaapkamers. Aan de rechterzijde ligt de royale doorzonwoonkamer, die dankzij de grote raampartijen rijkelijk wordt overspoeld met daglicht. De stijlvolle open keuken is uitgevoerd in een strak en luxe design en uitgerust met alle denkbare inbouwapparatuur, waaronder een kookeiland, combi-oven, vaatwasser, koel-vriescombinatie en volop bergruimte. De originele schouw voegt een warm, authentiek accent toe aan het geheel. Via openslaande deuren heeft u toegang tot het dakterras (ca. 32 m²): een heerlijke plek om buiten te ontspannen.

Een vaste trap leidt naar de bovenste verdieping, waar de overloop wederom is voorzien van een separaat toilet. Aan weerszijden bevinden zich twee ruim opgezette slaapkamers met airconditioning. De zichtbare houten spanten geven deze ruimtes extra charme en karakter, mede dankzij de indrukwekkende plafondhoogte van maar liefst 3,70 meter. Vanuit één van de slaapkamers is de vlieringzolder bereikbaar, met een extra bergruimte van ca. 12 m².

Centraal gelegen op deze verdieping vindt u de moderne badkamer, uitgerust met een dubbele wastafel met meubel, een comfortabel ligbad en een ruime inloopdouche.

Bijzonderheden:
- Dubbel bovenhuis van ca. 137 m² (conform NEN-2580 meetinstructies)
- Energielabel A
- Dakterras van ca. 32 m²
- Gestoffeerd
- Wasmachine en droger beschikbaar
- Inbouwkasten in de slaapkamers
- Vliering van ca. 12 m²
- Volledig gerenoveerd in 2025
- Vier slaapkamers
- Huurprijs € 5.000,- per maand, exclusief stookkosten
- Waarborgsom 2 maanden
- Niet beschikbaar voor woningdelers en/of studenten
- Per direct beschikbaar

Deze informatie is door ons met de nodige zorgvuldigheid samengesteld. Onzerzijds wordt echter geen enkele aansprakelijkheid aanvaard voor enige onvolledigheid, onjuistheid of anderszins, dan wel de gevolgen daarvan. Alle opgegeven maten en oppervlakten zijn indicatief. Koper heeft zijn eigen onderzoek plicht naar alle zaken die voor hem of haar van belang zijn. Met betrekking tot deze woning is de makelaar adviseur van verkoper. Wij adviseren u een deskundige (NVM-)makelaar in te schakelen die u begeleidt bij het aankoopproces. Indien u specifieke wensen heeft omtrent de woning, adviseren wij u deze tijdig kenbaar te maken aan uw aankopend makelaar en hiernaar zelfstandig onderzoek te (laten) doen. Indien u geen deskundige vertegenwoordiger inschakelt, acht u zich volgens de wet deskundige genoeg om alle zaken die van belang zijn te kunnen overzien. Van toepassing zijn de NVM voorwaarden.

Ontdek Amsterdam met Baerz, Uw Vertrouwde Personal Property Finder & Advisor

Het navigeren van de Amsterdamse luxemarkt vereist diepgaande lokale kennis, discretie en onderhandelingservaring. Topadviseurs verschaffen toegang tot private aanbiedingen, verduidelijken complexe eigendomsregels en signaleren waarde in een markt waar kansen zelden publiekelijk verschijnen. Adviesteams zorgen voor grondige beoordeling en professionele vertegenwoordiging, versterken uw positie bij onderhandelingen, begeleiden transacties vlekkeloos en beschermen uw privacy in elke fase.

Speciale Kenmerken

Air conditioning

Kenmerken

Overdracht
Huurprijs
€ 5.000 p.m.
Status
beschikbaar
Aanvaarding
in overleg
Bouw
Soort woonhuis
Tussenverdieping
Soort bouw
appartement
Bouwjaar
1881
Energieklasse
A
Slaapkamers
4
Badkamers
1
Oppervlakten en inhoud
Woonoppervlakte
137 m2
Overige inpandige ruimte
12 m2
Gebouwgebonden buitenruimte
32 m2
Inhoud
523 m3
faciliteiten
Mechanische ventilatie
Tv kabel
Airconditioning
In centrum
Vrij uitzicht
Baerz & Co Property Brochure

Brochure

Video’s

Plattegronden

Heeren Makelaars

Stadionweg 75
1077 SE Amsterdam

info@heerenmakelaars.nl
+31 204702255

www.heerenmakelaars.nl

Informatie / bezichtigingsaanvraag

Sander Bovenkerk profile image
Sander Bovenkerk
Real estate agent