Baerz & Co is een landelijk samenwerkingsverband van zorgvuldig geselecteerde boutique luxury makelaars. Samen vormen wij één netwerk, met één gedeeld aanbod. De woningen die u op onze website ziet, zijn afkomstig van alle aangesloten kantoren binnen Baerz & Co. Daardoor is niet ieder object rechtstreeks door ons kantoor in verkoop, maar door een gespecialiseerde collega binnen ons netwerk. Heeft u een woning gevonden die u aanspreekt en wilt u meer informatie? Dan brengen wij u graag persoonlijk in contact met de betreffende verkoopmakelaar, zodat u direct en zorgvuldig wordt begeleid.

BERGEN AAN ZEE
Elzenlaan 30 - 1865 BM
Nederland

Frits Wilbrink profile image
Frits Wilbrink
Real Estate Agent
€1.795.000 k.k.
Woonoppervlakte
126m2
Perceeloppervlakte
768m2
Slaapkamers
4

Omschrijving

Aan de Elzenlaan 30 in Bergen aan Zee bieden wij dit heerlijke levensloopbestendige familiehuis met mogelijkheid tot creëren extra recreatiewoning, te koop aan. Wij heten u graag welkom bij deze karaktervolle vrijstaande woning met een fijne tuin rondom. Echt een heerlijk familiehuis dat generaties lang gekoesterd is en in 2022 is gerenoveerd en verduurzaamd. Door o.a. dak- en glasisolatie, een nieuwe keuken en een moderne cv-installatie is deze woning klaar voor de toekomst.
De Elzenlaan is een bijzondere plek in Bergen aan Zee, gelegen aan de rand van het bos en op loopafstand van duinen en strand. Hier kom je echt tot rust.

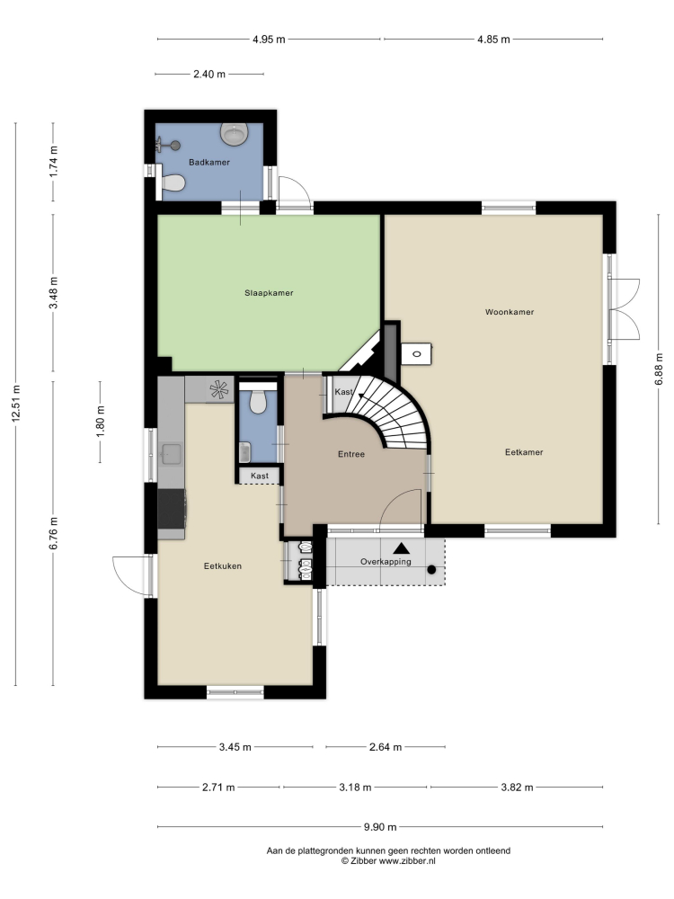
We nemen u mee naar binnen. Bij binnenkomst valt direct de fraaie entreehal op met een stijlvolle trapopgang met smeedijzeren leuning, een moderne toiletruimte en een handige kelderkast. De woonkamer is licht en sfeervol met een originele houten parketvloer, een houtkachel en openslaande tuindeuren naar de groene tuin. Ingebouwde houten maatwerkkasten zorgen voor extra charme én bergruimte.

Op de begane grond bevindt zich tevens een slaapkamer met een ensuite badkamer. Hier bevinden zich een douche, toilet en wastafel. Kortom een levensloopbestendige indeling.
De woonkeuken is een fijne plek voor het hele gezin, voorzien van alle gemakken: een quooker, vaatwasser, afzuigkap, grote oven met inductiekookplaat en een losse koel-vriescombinatie. Vanuit de keuken is ook toegang tot de meterkast.

De eerste verdieping beschikt over drie slaapkamers, elk met een wastafel en vaste kast. Dankzij meerdere dakkapellen is er veel licht en ruimte. Er is een aparte cv-kast en een tweede badkamer met ligbad, douche, toilet, dakraam en mechanische ventilatie. Vanaf de overloop biedt een kleine dakkapel zicht op de kust.

Op het perceel staat ook een vrijstaand bijgebouw. Dit bijgebouw heeft al een recreatiebestemming, maar is momenteel in gebruik als garage. Dit gebouw beschikt over een keukenblok, wasmachineaansluiting, badcel (douche, wc, wastafel), en een vliering bereikbaar via een luik met losse trap. Het bijgebouw verdient modernisering, maar biedt volop potentie.

De woning ligt op een rustige locatie met veel groen en privacy. Zowel permanente bewoning als gebruik als tweede (vakantie)woning is hier mogelijk. Het huis wordt nu afwisselend verhuurd (kort en lang) en deels door de familie zelf gebruikt.

Heeft u interesse in deze woning, laat het ons weten, wij leiden u hier graag rond!

Kenmerken

Overdracht
Vraagprijs
€ 1.795.000 k.k.
Status
beschikbaar
Aanvaarding
in overleg
Bouw
Soort woonhuis
Villa
Soort bouw
vrijstaande woning
Bouwjaar
1950
Energieklasse
D
Soort dak
zadeldak
Slaapkamers
4
Badkamers
2
Oppervlakten en inhoud
Woonoppervlakte
126 m2
Overige inpandige ruimte
0 m2
Gebouwgebonden buitenruimte
3 m2
Externe bergruimte
44 m2
Inhoud
467 m3
Perceeloppervlakte
768 m2
faciliteiten
Mechanische ventilatie
Tv kabel
Rookkanaal
Dakraam
Natuurlijke ventilatie
Aan bosrand
Aan rustige weg
Beschutte ligging
In bosrijke omgeving
Baerz & Co Property Brochure

Brochure

Video’s

Plattegronden

Wilbrink & v.d. Vlugt Makelaars

Heereweg 231
2161 BG Lisse

info@wilbrinkvandervlugt.nl
+31 252 41 90 49

www.onsaanbod.nl

Informatie / bezichtigingsaanvraag

Frits Wilbrink profile image
Frits Wilbrink
Real Estate Agent

Een luxe woning kopen in Bergen Aan Zee

Bergen Aan Zee biedt een elegante gemeenschap bekend om haar privacy, natuurlijke schoonheid en een levendig cultureel aanbod. Kopers en bewoners genieten van verfijnd kustwonen met deskundige begeleiding en een internationaal, exclusief karakter.