Ons kantoor is lid van Baerz & Co Luxury Homes; een internationaal platform dat exclusieve woningmakelaars met elkaar verbindt. Neem contact op met ons secretariaat voor meer informatie over het landelijke aanbod, waarvan u hieronder een selectie kunt bekijken.

BERGSCHENHOEK
Van Keulendreef 51 - 2661 ST
Nederland

Dominique Blom profile image
Dominique Blom
Register Makelaar Taxateur
€850.000 k.k.
Woonoppervlakte
177m2
Perceeloppervlakte
252m2
Slaapkamers
5

Omschrijving

Ruim geschakeld herenhuis met 5 slaapkamers op een prachtige locatie en vrij uitzicht over het water. Ideaal huis voor grote gezinnen of voor wie op zoek is naar een gezinshuis met een eigen thuiswerkplek, om in alle rust te kunnen werken.

De woning is gelegen in de rustige en kindvriendelijke wijk Oosteindsche Ackers aan een brede singel. Op loofafstand bevinden zich diverse basisscholen, kinderdagverblijven, de bibliotheek en het gezellige centrum van Bergschenhoek met een diversiteit aan winkels en restaurants.

De woning beschikt naast een zee van ruimte ook over een diepe, op het zuiden gelegen achtertuin met veel privacy. En wil je echt van de laatste zonnestralen genieten? Dan kan je ook nog heerlijk op het dakterras plaatsnemen.

Op korte fietsafstand bevinden zich diverse sport- en recreatievoorzieningen, zoals het zwembad De Windas en het Annie M.G. Schmidtpark. Verder is de woning gunstig gelegen ten opzichte van het openbaar vervoer (bus en RandstadRail) en de uitvalswegen (A12, A13, N209, N470 en N471) naar Rotterdam, Den Haag, Delft en Zoetermeer.

Kortom: een fijn huis in een rustige omgeving met alles wat Bergschenhoek te bieden heeft in de buurt.

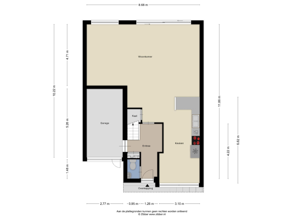
Indeling

Begane grond:
Ruime oprit met parkeergelegenheid voor meerdere auto’s met een oplaadpunt voor een elektrische auto en toegang tot de garage.
Entree/hal met trapopgang naar de eerste verdieping, meterkast, toilet, toegang tot de garage en de woonkamer.

Aan de voorkant bevindt zich de open keuken met veel opbergruimte en is van alle gemakken voorzien, zoals een spoelbak met mengkraan, keramische kookplaat, afzuigkap, koelkast, vriezer en vaatwasser.

De ruime woonkamer is gelegen aan de achterzijde. De grote ramen zorgen voor veel lichtinval en de schuifpui geeft toegang tot achtertuin. De L-vormige woonkamer heeft een gezellige zithoek en voldoende ruimte om met een groot gezelschap aan een lange tafel plaats te nemen.

De fraai aangelegde achtertuin is een fijne plek waar je door de ligging op het zuiden heerlijk van het middag- en het avondzonnetje kunt genieten. De achtertuin is voorzien van een elektrisch zonnescherm.

1e verdieping:
De overloop geeft toegang tot de 4 slaapkamers, het toilet en de badkamer.
Slaapkamer 1 en 2 liggen aan de voorzijde van de woning en beschikken over een kastenwand.
Slaapkamer 3 en 4 bevinden zich aan de achterzijde, waarbij slaapkamer 4 eveneens is voorzien van een kastenwand.

De badkamer is voorzien van een douche, ligbad, twee wastafels en een handdoekradiator.

2e verdieping:
Op de tweede verdieping bevindt zich de overloop, met opstelplaats voor de cv-ketel en de wasmachine en droger aansluiting. De overloop biedt toegang tot het ruime dakterras, ideaal om de was te laten drogen of van de zon kunt genieten.
Op de zolder bevindt zich ook de vijfde ruime slaapkamer met vaste kasten.

De gehele woning is voorzien van vloerbedekking.

Bijzonderheden:
- Bouwjaar 1999, gelegen op een perceel van 252 m2
- Vrij uitzicht over het water in een kindvriendelijke wijk;
- 5 slaapkamers;
- Zonnig terras op de tweede etage;
- Oplevering in overleg, conform Lijst van Zaken.

Wij nodigen jullie van harte uit om deze woning met eigen ogen te bewonderen.

Alle verstrekte informatie moet beschouwd worden als een uitnodiging tot het doen van een bod of om in onderhandeling te treden. De teksten en impressies zijn bedoeld om een goede indruk te geven van het object. Aan de inhoud ervan is de grootst mogelijke zorg besteed. Desondanks is alle informatie nadrukkelijk onder voorbehoud. Er kunnen geen rechten worden ontleend aan deze woninginformatie.

Koopovereenkomst pas rechtsgeldig na ondertekening:
Een mondelinge overeenstemming tussen de particuliere verkoper en de particuliere koper is niet rechtsgeldig. Met andere woorden: er is geen koop. Er is pas sprake van een rechtsgeldige koop als de particuliere verkoper en de particuliere koper de koopovereenkomst hebben ondertekend. Dit vloeit voort uit artikel 7:2 Burgerlijk Wetboek. Een bevestiging van de mondelinge overeenstemming per e-mail of een toegestuurd concept van de koopovereenkomst wordt overigens niet gezien als een 'ondertekende koopovereenkomst'.

Toelichtingsclausule Meetinstructie:
De woning is conform de Branchebrede Meetinstructie (BBMI) opgemeten. De Meetinstructie is bedoeld om een meer eenduidige manier van meten toe te passen voor het geven van een indicatie van de gebruiksoppervlakte. De Meetinstructie sluit verschillen in meetuitkomsten niet volledig uit, door bijvoorbeeld interpretatieverschillen, afrondingen of beperkingen bij het uitvoeren van de meting.
Wij zijn de makelaar van verkoper. Wij adviseren je jouw eigen makelaar mee te nemen voor jouw belangenbehartiging bij de aankoop van jouw toekomstige huis!

Ontdek Bergschenhoek met Baerz, Uw Vertrouwde Personal Property Finder & Advisor

Kenmerken

Overdracht
Vraagprijs
€ 850.000 k.k.
Status
beschikbaar
Aanvaarding
in overleg
Bouw
Soort woonhuis
Herenhuis
Soort bouw
geschakelde woning
Bouwjaar
1999
Energieklasse
B
Soort dak
samengesteld dak
Slaapkamers
5
Badkamers
1
Oppervlakten en inhoud
Woonoppervlakte
177 m2
Overige inpandige ruimte
15 m2
Gebouwgebonden buitenruimte
27 m2
Inhoud
679 m3
Perceeloppervlakte
252 m2
faciliteiten
Mechanische ventilatie
Jacuzzi
Schuifpui
Glasvezel kabel
Aan water
In woonwijk
Baerz & Co Property Brochure

Brochure

Video’s

Plattegronden

DB Makelaars

Dorpsstraat 79
2661 CE Bergschenhoek

dominique@dbmakelaars.nl
+31 107850833

www.dbmakelaars.nl

Informatie / bezichtigingsaanvraag

Dominique Blom profile image
Dominique Blom
Register Makelaar Taxateur