Ons kantoor is lid van Baerz & Co Luxury Homes; een internationaal platform dat exclusieve woningmakelaars met elkaar verbindt. Neem contact op met ons secretariaat voor meer informatie over het landelijke aanbod, waarvan u hieronder een selectie kunt bekijken.

BREDA
Duivelsbruglaan 12 - 4835 JE
Nederland

Frits Wilbrink profile image
Frits Wilbrink
Real Estate Agent
€5.000.000 k.k.
Woonoppervlakte
850m2
Perceeloppervlakte
3188m2
Slaapkamers
7

Omschrijving

Letterlijk op loopafstand van de Ginnekenmarkt, het Mastbos en Markdal, treft u, nagenoeg geheel aan het zicht onttrokken, deze met zeer hoogwaardige materialen gebouwde villa, genaamd Ganseweyde.

Achter de poort treft u de binnenplaats met platanen en een houten schuur voor 4 auto’s. Het 850m² grote landhuis werd in 2011 gebouwd en laat een combinatie van classicistische en moderne architectuur zien, die zich uit in statige allure en maximaal, modern wooncomfort. ‘s Zomers is het op het circa 3.200m² grote en beveiligde perceel genieten van het zwembad, de (overdekte) terrassen en het ruime grasveld, voor de kinderen is een hockeyveld in kunstgras aangelegd. ’s Winters bieden de lichte, op de tuin gerichte vertrekken een geborgen plek met rust en ruimte, midden in het gezellige Ginneken.

Een bijzondere villa waar u kunt genieten van de sfeer en gezelligheid van een klassieke villa met het comfort en de techniek van nu. Deze unieke woning biedt o.a. 7 (slaap) kamers, meerdere werk-/tv-kamers en ruim voldoende sanitaire voorzieningen en badkamers. Bovendien biedt de kelderruimte o.a. een grote berging, een speelkamer, een wasruimte en een gym.

Aan afwerking en duurzaamheid is veel aandacht besteed. Er is zonder uitzondering met zeer hoogwaardige materalen gewerkt en de afwerking is tot in de kleinste details van zeer onderscheidend niveau. De woning is optimaal geïsoleerd en voorzien va een warmtepompsysteem en 32 zonnepanelen.
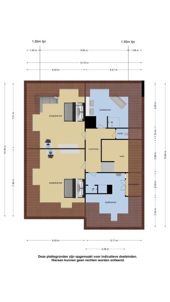
BEGANE GROND
Vanuit de klassieke entree zijn de praktische mudroom met zijentree en de zit– en eetkamer te bereiken. Deze lichte en open living verbindt twee zijvleugels met elkaar en heeft bovendien een prachtige lichtinval en mooi zicht op de gehele tuin. Activiteit en gezelligheid zijn gecentreerd rondom de keuken (met aangrenzend een ruime en praktische bijkeuken) en het overdekte terras. Aan de voorzijde treft u, grenzend aan de living, een aparte televisie- c.q. werkkamer met zicht op het erf.

De keuken is uitgevoerd met een zeer luxe inrichting, uiteraard van alle gemakken en apparatuur voorzien. Door de glaspartij rondom kookt u als het ware ’in de tuin’.

Aan de keuken grenst het riante, geheel overdekte terras, de veranda. Deze veranda, net als de keuken voorzien van screens, is feitelijk een verlengstuk van de leefruimte en is voorzien van een heerlijke open haard.
Aan de veranda grenst de (buiten)badkamer met onder andere een toilet en een douche.

De linkervleugel is een plek om te werken en ontspannen, met een sfeervolle werkkamer aan de achterzijde van het huis. De hiervoor gelegen behaaglijk aandoende haardkamer verbindt de woonkamer en de werkkamer met elkaar.
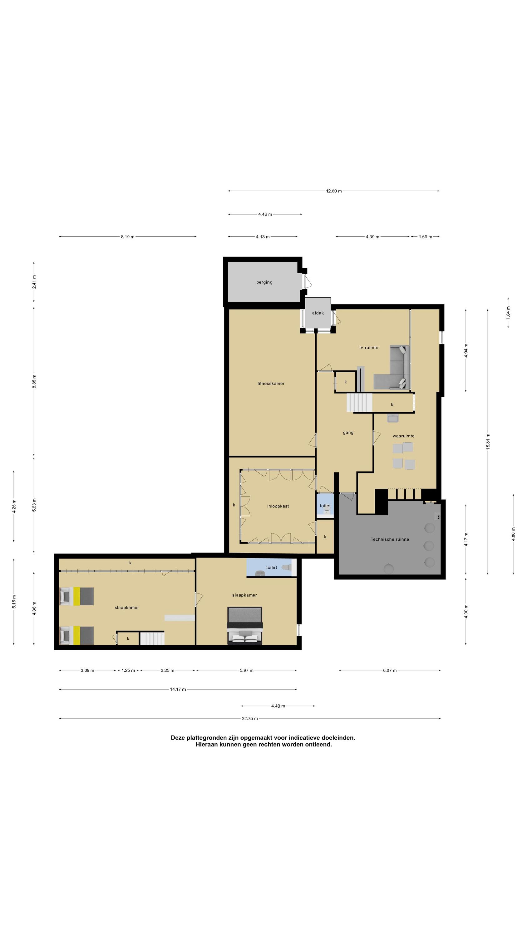
ONDERVERDIEPING
Deze onderverdieping, opgesplitst in twee delen, is te bereiken via de centrale hal respectievelijk via de werkkamer in de zijvleugel. Hier wordt onder meer gesport in de fitnessruimte, gewassen in de was-/linnenkamer en naar films gekeken of gegamed in de tv-kamer. In dit deel treft u ook de technische ruimte.

Gasten hebben privacy in hun eigen logeerkamer met sanitaire voorzieningen.
Tot slot biedt de onderverdieping zowel een archief- als garderobe/bergruimte.
EERSTE VERDIEPING
Via een brede trap en ruime overloop is de masterbedroom (met balkon en uitzicht op de tuin) te bereiken. De naastgelegen dressingroom staat in open verbinding met de ouderbadkamer.

De dressingroom is uitgevoerd met prachtige (op maat gemaakte) meubelen met veel hang- en legruimte. De badkamer is zeer ruim en voorzien van onder andere een riant duo-ligbad, een grote inloopdouche, een toilet en een bidet.

De andere zijde van de verdieping is voor de kinderen; de twee slaapkamers hebben beschikking over hun eigen, eveneens met prachtige materialen afgewerkte badkamer. De slaapkamers zijn aan de voor- en achterzijde gesitueerd.
TWEEDE VERDIEPING
Deze gezellige ‘zolderverdieping’ telt twee riante slaapkamers, aan de achterzijde gesitueerd, én een aparte, stijlvolle badkamer. Daarnaast is er nog een logeerkamer met eigen badkamer aanwezig op deze verdieping.
TUIN
Aan de voorzijde, op de binnenplaats, vindt u de “wagenschuur” met prachtige (eiken) kapconstructie, waar plaats is voor 4 auto’s. De voorzijde ademt de sfeer van het gezellige, sfeervolle Ginneken, terwijl u aan de achterzijde geniet van de rust en het groen van een landelijk gelegen villa. Gezeten op het terras en in de tuin ziet u slechts groen en prachtige luchten; geen omliggende bebouwing.

Het zwembad is door een haag ietwat aan het oog onttrokken. Vanuit de keuken bereikt u het royale overdekt terras, waar u zich in Zuid-Frankrijk waant. Beschut tegen regen ofwel hete zon kijkt u prachtig over de fraaie tuin uit, waar kinderen onder ander kunnen spelen op het kunstgras-hockeyveld.
In de tuin is een drainagesysteem aangelegd.
WAT U VERDER NOG MOET WETEN;
• Op alle verdiepingen zijn voldoende sanitaire voorzieningen;
• Alle slaapkamers zijn voorzien van airconditioning;
• De villa heeft een efficiënte indeling met zeer veel bergruimte op alle verdiepingen;
• De wagenschuur is aan de rechterzijde van de binnenplaats gesitueerd en biedt o.a. plaats aan 4 auto's én een afsluitbare schuur;
• Naast de zijentree is een fietsenberging geplaatst, verspreid over het perceel treft u diverse bergingen;
• Isolatie: de woning is optimaal geïsoleerd (EPC van 0,8);
• Verwarming alsmede warmwater voorziening geschieden middels de warmtepompinstallatie;
• In de tuin is een drainagesysteem aangelegd.

Kenmerken

Zwembad
Alarm system
Air conditioning
Overdracht
Vraagprijs
€ 5.000.000 k.k.
Status
beschikbaar
Aanvaarding
in overleg
Bouw
Soort woonhuis
Villa
Soort bouw
vrijstaande woning
Bouwjaar
2011
Energieklasse
A
Slaapkamers
7
Badkamers
6
Oppervlakten en inhoud
Woonoppervlakte
850 m2
Overige inpandige ruimte
36 m2
Gebouwgebonden buitenruimte
91 m2
Externe bergruimte
50 m2
Inhoud
3285 m3
Perceeloppervlakte
3188 m2
faciliteiten
Mechanische ventilatie
Alarminstallatie
Tv kabel
Buitenzonwering
Zwembad
Airconditioning
Rookkanaal
Schuifpui
Aan bosrand
Aan rustige weg
In centrum
Beschutte ligging
In bosrijke omgeving
Baerz & Co Property Brochure

Brochure

Video’s

Wilbrink & v.d. Vlugt Makelaars

Heereweg 231
2161 BG Lisse

info@wilbrinkvandervlugt.nl
+31 252 41 90 49

www.onsaanbod.nl

Informatie / bezichtigingsaanvraag

Frits Wilbrink profile image
Frits Wilbrink
Real Estate Agent

Een luxe woning kopen in Breda

Breda trekt een veeleisende internationale gemeenschap met elegante woningen, een verfijnde levensstijl en hoogstaande vastgoedservice. De combinatie van rijk erfgoed en moderne voorzieningen maakt de stad blijvend geliefd bij wie stijlvol en comfortabel wil wonen in een energiek Nederlands decor.