Baerz & Co is een landelijk samenwerkingsverband van zorgvuldig geselecteerde boutique luxury makelaars. Samen vormen wij één netwerk, met één gedeeld aanbod. De woningen die u op onze website ziet, zijn afkomstig van alle aangesloten kantoren binnen Baerz & Co. Daardoor is niet ieder object rechtstreeks door ons kantoor in verkoop, maar door een gespecialiseerde collega binnen ons netwerk. Heeft u een woning gevonden die u aanspreekt en wilt u meer informatie? Dan brengen wij u graag persoonlijk in contact met de betreffende verkoopmakelaar, zodat u direct en zorgvuldig wordt begeleid.

DEN ILP
Den Ilp 96 - 1127 PJ
Nederland

Frits Wilbrink profile image
Frits Wilbrink
Real Estate Agent
€2.295.011 k.k.
Woonoppervlakte
273m2
Perceeloppervlakte
3835m2
Slaapkamers
4

Omschrijving

Den Ilp 96 te Den Ilp (Gemeente Landsmeer).

Bel nu voor het maken van een afspraak of voor het opvragen van een brochure van deze non-plus-ultra witte villa met luxe guesthouse, dubbele garage en eigen boothuis.

Welkom in Den Ilp, een idyllisch lintdorpje binnen de Gemeente Landsmeer, slechts enkele -filevrije - autominuten verwijderd van het bruisende hart van Amsterdam. Hier, aan de rand van natuur- en recreatiegebied Het Twiske, wacht een residentie die haar gelijke nauwelijks kent: een exclusieve vrijstaande villa met guesthouse, dubbele garage en directe vaarverbinding naar de Amsterdamse grachten.

Deze non-plus-ultra witte villa bevindt zich in absolute mint-condition en wordt omringd door een perceel van maar liefst 3.835 m² eigen grond. De combinatie van serene rust, water, natuur en ongekende luxe maakt dit een eigendom van zeldzame allure.

Enkele minuten na het verlaten van de Amsterdamse Ringweg A10, opent het elektrische hek bij aankomst en ontvouwt zich een indrukwekkende oprijlaan met royale parkeergelegenheid op het erf en onder de carport. Uiteraard is parkeren ook mogelijk in de dubbele (verwarmde) garage.

De overkapte ingang, geeft toegang tot de villa.

Begane grond:
De entree leidt naar een riante hal, van waaruit de verschillende leefruimtes bereikbaar zijn. Een verfijnde woonkeuken met royaal kookeiland en hoogwaardige inbouwapparatuur, een sfeervolle tv-kamer, een ruime living met serre/tuinkamer, bijkeuken/berging en gastentoilet.

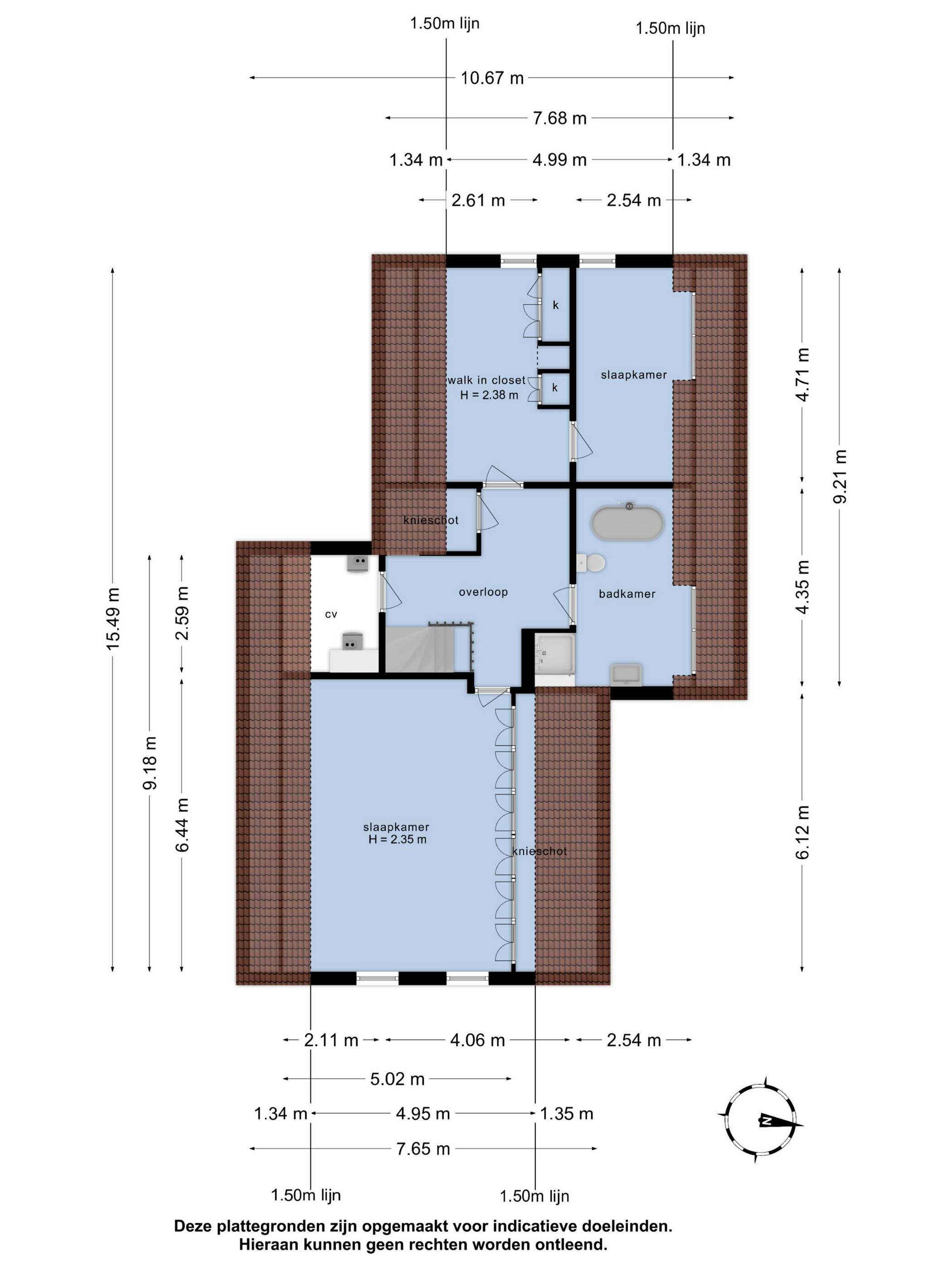
Eerste verdieping:
Drie royale slaapkamers, waaronder een elegante masterbedroom met veel kastruimte, en een luxe badkamer met inloopdouche en ligbad.

De grote raampartijen zorgen overal voor een overdaad aan licht en bieden panoramische uitzichten over de tuin en het water.

Guesthouse & dubbele garage:
Het multifunctionele bijgebouw ademt dezelfde hoogwaardige kwaliteit en verfijning.

Begane grond:
Zij-entree, dubbele garage, badkamer met douche, wastafel en toilet, en een lichte woonkamer met moderne open keuken.

Eerste verdieping:
Royale slaapkamer, berging en zolderruimte.

Perfect geschikt als gastenverblijf, thuiskantoor of hobbyruimte.

Buitenleven & Ligging
De fraai aangelegde tuin is een oase van rust en elegantie. Strakke terrassen, volwassen bomen en een perfecte oriëntatie op zon en water creëren een omgeving waar privacy en ontspanning centraal staan. Vanuit het eigen boothuis stapt u direct in uw sloep voor een tocht over open vaarwater – van Het Twiske tot de Amsterdamse grachten.

'Om de hoek' strekt zich het pittoreske Ilperveld uit; ideaal voor varen, kanoën en zelfs schaatsen in de winter. Aan de achterzijde kijkt men over Het Twiske, waar u kunt wandelen, zwemmen, zeilen of paardrijden. Vanuit deze heerlijk landelijke setting bereikt u in slechts 20 minuten de Zuidas of het centrum van Amsterdam.

Noemenswaardig:
- Non-plus-ultra witte villa in absolute mint-condition
- Unieke ligging: direct grenzend aan natuur- en recreatiegebied Het Twiske.
- Royaal perceel van 3.835 m² eigen grond.
- Schitterende tuin op het westen, rondom 'groot' vaarwater
- Luxe guesthouse met dubbele garage.
- Boothuis (4,50 x 6,50 m) en directe vaarverbinding met Amsterdam.
- Hoogwaardige afwerking en perfect onderhouden – instapklaar.
- Slechts enkele (filevrije) autominuten van Amsterdam.
- Een residentie die luxe, comfort en natuur in ultieme harmonie verenigt.

Kenmerken

Alarm system
Air conditioning
Overdracht
Vraagprijs
€ 2.295.011 k.k.
Status
verkocht onder voorbehoud
Aanvaarding
direct
Bouw
Soort woonhuis
Villa
Soort bouw
vrijstaande woning
Bouwjaar
1983
Energieklasse
C
Soort dak
zadeldak
Slaapkamers
4
Badkamers
2
Oppervlakten en inhoud
Woonoppervlakte
273 m2
Overige inpandige ruimte
95 m2
Gebouwgebonden buitenruimte
29 m2
Externe bergruimte
42 m2
Inhoud
1365 m3
Perceeloppervlakte
3835 m2
faciliteiten
Mechanische ventilatie
Alarminstallatie
Rolluiken
Tv kabel
Buitenzonwering
Airconditioning
Rookkanaal
Schuifpui
Dakraam
Cctv
Aan water
Vrij uitzicht
Aan vaarwater
Baerz & Co Property Brochure

Brochure

Video’s

Plattegronden

Wilbrink & v.d. Vlugt Makelaars

Heereweg 231
2161 BG Lisse

info@wilbrinkvandervlugt.nl
+31 252 41 90 49

www.onsaanbod.nl

Informatie / bezichtigingsaanvraag

Frits Wilbrink profile image
Frits Wilbrink
Real Estate Agent

Een luxe woning kopen in Den Ilp

Den Ilp biedt exclusieve toegang tot stijlvol landelijk wonen, een gastvrije gemeenschap en hoogwaardige voorzieningen. De regio trekt internationale kopers aan die privacy, authenticiteit en culturele nabijheid waarderen.