Ons kantoor is lid van Baerz & Co Luxury Homes; een internationaal platform dat exclusieve woningmakelaars met elkaar verbindt. Neem contact op met ons secretariaat voor meer informatie over het landelijke aanbod, waarvan u hieronder een selectie kunt bekijken.

GALDER
Galderseweg 85 - 4855 AG
Nederland

Lennart van Oosterhout profile image
Lennart van Oosterhout
Real Estate Agent
€1.950.000 k.k.
Woonoppervlakte
310m2
Perceeloppervlakte
25110m2
Slaapkamers
5

Omschrijving

Vrijstaande villa op 25.110 m² – met bijgebouw, 2 B&B's en ultieme privacy aan natuurgebied bij Breda

Op een unieke locatie aan de zuidzijde van Breda, in het dorp Galder en grenzend aan natuurgebied het Markdal, ligt deze luxe vrijstaande villa met multifunctioneel bijgebouw. Het geheel is gelegen op een uitzonderlijk royaal perceel van maar liefst 25.110 m², verdeeld over vijf percelen. Hier woont u midden in het groen, met volledige privacy en een weids uitzicht over eigen landerijen en omliggende weilanden.

De hoofdwoning is zeer goed onderhouden en beschikt over een ruime woonkamer, een sfeervolle woon-/eetkeuken en drie volwaardige slaapkamers. Grote raampartijen zorgen voor veel licht en een prachtig uitzicht op de tuin en het omliggende landschap.

Het vrijstaande bijgebouw biedt ongekende mogelijkheden. Achterin zijn twee volledig zelfstandige wooneenheden gerealiseerd, elk voorzien van een eigen keuken, badkamer en slaapkamer. Ideaal als guesthouses, voor mantelzorg of dubbele bewoning. De 2 guesthouses zijn op dit moment in gebruik als goed lopende B&B’s (De Veldenhof I & II) inclusief benodigde vergunning en bestemming. Daarnaast is er voldoende ruimte voor een kantoor of praktijk aan huis, atelier of andere creatieve invulling. Het achter de guesthouses gelegen privé natuurgebied biedt ultieme privacy.

Deze woning is perfect voor wie royaal wil wonen in het groen, met alle ruimte, rust en natuur – en toch op korte afstand van de stad Breda.

BEGANE GROND
ENTREE
De entree bevindt zich aan de achterzijde, ter plaatse van de carport. Via deze (voor)deur toegang tot:

HAL
Hal met (garderobe)kast en toegang tot:

TOILET
Toiletruimte met wandcloset met inbouwreservoir en fonteintje.

BIJKEUKEN
Bijkeuken met grote wandkast. In deze ruimte bevinden zich tevens de aansluitpunten ten behoeve van de wasapparatuur en een uitstootgootsteen.

WOON-/EETKEUKEN
De prachtige woon-/eetkeuken (ca. 51 m²) vormt het middelpunt van de woning. Deze lichte en zeer ruimtelijke keuken is voorzien van een moderne en luxe keukeninrichting, bestaand uit een betonnen blad, een breed gasfornuis (Lacanche) met diverse ovens, een afzuigkap en zeer veel bergruimte. Daarnaast treft u een spoeleiland (eveneens met een betonnen blad) met spoelbak, design-mengkraan, vaatwasser en veel kastruimte.

Aan de tuinzijde bevinden zich twee dubbele tuindeuren én een grote glaspartij waardoor u prachtig zicht heeft op de tuin en het achtergelegen weiland/natuurgebied. In de tussenliggende wand is een moderne gashaard geplaatst.

Een extra ruimtelijk effect wordt verkregen door de hoge kapconstructie die in het zicht gebleven is.

Trapopgang naar verdieping I en toegang tot:

WOONKAMER
Ruime L-vormige woonkamer (ca. 47 m²) met moderne schouw met inzethaard. De woonkamer is voorzien van eiken vloerdelen.

Openslaande deuren bieden toegang tot de veranda. Ook vanuit deze veranda, waar een buitenhaard geplaatst is, heeft u prachtig zicht op de tuin en het achterliggend gebied.

Vanuit eerdergenoemde woon-eetkeuken toegang tot:

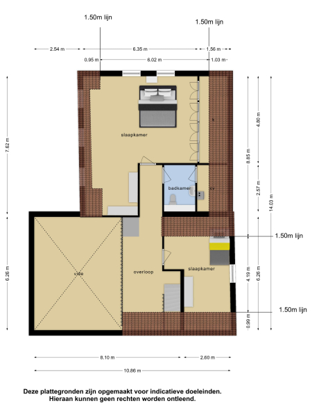
SLAAPKAMER I
Ouderslaapkamer (ca. 4.55 x 3.00 m) met grote garderobekast, in deze ruimte bevindt zich ook de meterkast (8 groepen + krachtstroom + aardlekschakelaar). De vloer is voorzien van sfeervol donker laminaat.

BADKAMER
Badkamer (ca. 4.40 x 2.45 m) aan de voorzijde van de woning gesitueerd. Deze badkamer is uitgevoerd met een breed meubel met twee opzetwastafels, een design-ligbad en een inloopdouche met thermostaatkraan met hand- en regendouche.
EERSTE VERDIEPING
OVERLOOP
Overloop/vide, met zicht op de woon-/eetkeuken en vanwaar toegang tot:

SLAAPKAMER II
Voorslaapkamer (ca. 6.25 x 2.60/3.50 m), ook in deze kamer is de kapconstructie deels in het zicht gebleven.

TOILET
Toiletruimte met wandcloset met inbouwreservoir en fonteintje.

CV-RUIMTE
CV-ruimte waar de cv-combiketel (Vaillant, Ecotec Plus, 2024) geplaatst is.

SLAAPKAMER III
Grote slaapkamer (ca. 7.60/4.80 x 6.35 m) met aan de achterzijde een zeer brede dakkapel en aan de voorzijde een grote garderobekast. Het plafond is voorzien van inbouwspots.

De eerste verdieping is geheel voorzien van een fraaie donkere laminaatvloer.
BIJGEBOUW (2022)
Grote garage annex werkruimte, te gebruiken als hobbyruimte, kantoor aan huis, garage etc. Aan de voorzijde is deze ruimte te bereiken middels een grote sectionaaldeur, welke elektrisch bedienbaar is.

Aparte, grote technische ruimte met meterkast (22 groepen + aardlekschakelaar). Hier zijn de CV-combiketel (Vaillant, 2022) en de computer ten behoeve van de beregeningsinstallatie geplaatst.
Dit gehele gebouw is voorzien van vloerverwarming en er zijn voorbereidingen ten behoeve van het toilet en de keuken/sanitair.

Verder is er een volledig te openen pui/vouwwand aanwezig waardoor een geheel open verbinding met de tuin ontstaat.

Boven deze ruimte bevindt zich een grote bergvliering. Het bijgebouw is in totaal ca. 200 m².
STUDIO I EN STUDIO II
Studio I en II hebben een identieke indeling en afwerking;

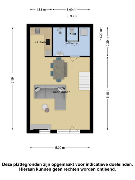
WOON-/EETKEUKEN
Woonkamer (ca. 35 m²) met zicht op de achtertuin, open keuken met moderne inrichting, bestaand uit een kunststof blad met rvsspoelbak, inductiekookplaat, combi-oven, koelkast met vriesvakje, vaatwasser en diverse boven- en onderkasten.
EERSTE VERDIEPING
SLAAPGEDEELTE
Slaapgedeelte (ca. 2.40 x 3.15 m) voorzien van airconditioning

BADKAMER
Badkamer (ca. 2.40 x 3.15 m) met inloopdouche met thermostaatkraan, wastafelmeubel en toiletruimte. Voorts bevinden zich hier de aansluitpunten ten behoeve van de wasapparatuur.

De woningen hebben een hoog afwerkingsniveau; alle plafonds zijn voorzien van inbouwspots, alles is gestukt, afgewerkt met fraai timmerwerk en volledig voorzien van aluminium kozijnen met triple glas.
TUIN
De tuin biedt optimale privacy en is fraai aangelegd, met onder andere een groot gazon, borders met siergrassen, boompjes, en heesters. Aan de achterzijde is de tuin begrensd door een lage beukenhaag waardoor het zicht op het achtergelegen gebied gewaarborgd is.

Aan de zijkant bevindt zich een overkapping/berging ten behoeve van fietsen, tuingereedschap etc.
De veranda en het terras zijn uitgevoerd met grote betontegels. De oprit is aan de zijkant gelegen en biedt toegang tot het erf met parkeergelegenheid voor meerdere auto’s én toegang tot de garage. Tegen de woning is een carport ten behoeve van twee auto’s geplaatst.

Aan de zijkant van het perceel staan een 5-tal 60 jaar oude laagstam perenbomen (Conference).
WAT U VERDER NOG
MOET WETEN
• Woning:
- Bouwjaar: 1936
(gerenoveerd in 2009 en 2010)
- Isolatie: geheel voorzien van dubbel glas,
dakisolatie, vloerisolatie en muurisolatie
- CV-ketel: 2024
- Onder de stenen vloeren is vloerverwarming aanwezig
- Energielabel: B
• Bijgebouw:
- Bouwjaar: 2022
- Isolatie: volledig
- Cv-ketel bijgebouw: 2022
- Dit gebouw is geheel voorzien van
vloerverwarming
- Energielabel: A+
• De woonoppervlakte van het woonhuis bedraagt: 224 m², studio I: 43 m² en studio II tevens: 43 m².

Ontdek Galder met Baerz, Uw Vertrouwde Personal Property Finder & Advisor

Onroerendgoedtransacties in Galder vragen om gespecialiseerde kennis en scherpe onderhandeling. Een ervaren adviseur biedt toegang tot discreet aanbod en ontwikkelt een strategie op maat. Erfgoed, bestemmingsplannen en grensoverschrijdende klantbehoeften vragen om internationale visie én een lokaal netwerk. Met topadviseurs komen waarde, discretie en toekomstbestendigheid samen.

Speciale Kenmerken

Air conditioning

Kenmerken

Overdracht
Vraagprijs
€ 1.950.000 k.k.
Status
verkocht onder voorbehoud
Aanvaarding
in overleg
Bouw
Soort woonhuis
Villa
Soort bouw
vrijstaande woning
Bouwjaar
1936
Energieklasse
B
Soort dak
zadeldak
Slaapkamers
5
Badkamers
3
Oppervlakten en inhoud
Woonoppervlakte
310 m2
Overige inpandige ruimte
0 m2
Gebouwgebonden buitenruimte
53 m2
Externe bergruimte
100 m2
Inhoud
931 m3
Perceeloppervlakte
25110 m2
faciliteiten
Tv kabel
Airconditioning
Aan rustige weg
Vrij uitzicht
Buiten bebouwde kom
Landelijk gelegen
Baerz & Co Property Brochure

Brochure

Video’s

Plattegronden

Storimans en Partners

Ginnekenweg 161
4818 JD Breda

lvanoosterhout@storimansenpartners.nl
+31 76 522 60 90

www.storimansenpartners.nl

Informatie / bezichtigingsaanvraag

Lennart van Oosterhout profile image
Lennart van Oosterhout
Real Estate Agent