Baerz & Co is een landelijk samenwerkingsverband van zorgvuldig geselecteerde boutique luxury makelaars. Samen vormen wij één netwerk, met één gedeeld aanbod. De woningen die u op onze website ziet, zijn afkomstig van alle aangesloten kantoren binnen Baerz & Co. Daardoor is niet ieder object rechtstreeks door ons kantoor in verkoop, maar door een gespecialiseerde collega binnen ons netwerk. Heeft u een woning gevonden die u aanspreekt en wilt u meer informatie? Dan brengen wij u graag persoonlijk in contact met de betreffende verkoopmakelaar, zodat u direct en zorgvuldig wordt begeleid.

HARLINGEN
Industrieweg 1 A - 8861 VH
Nederland

Frits Wilbrink profile image
Frits Wilbrink
Real Estate Agent
€900.000 k.k.
Woonoppervlakte
229m2
Perceeloppervlakte
890m2
Slaapkamers
4

Omschrijving

Watervilla met tuin, garage en ligplaats, energielabel A

Deze in 2023 gebouwde watervilla is met recht een drijvend droomhuis op afgesloten perceel grond en water in volle eigendom. Van alle luxe voorzien, duurzaam gebouwd met kunststof kozijnen, triple glas, volledig geïsoleerd en vloerverwarming op beide verdiepingen. Hier is nergens op bespaard. De riante woonkamer biedt een schitterend panoramisch zicht op het doorgaande vaarwater. De luxe woonkeuken met aansluitend zonnedeck, de levensloop bestendige hoofdslaapkamer met en-suite badkamer plus in het souterrain nog drie royale slaapkamers en tweede luxe badkamer. Alles smaakvol hotel-chique uitgevoerd. Met de dubbele garage, stijlvolle tuin en ruime ligplaats voor motorjacht of zeilboot, alles aan de staande mastroute, ontbreekt het hier de ultieme watersporter aan niets.
Harlingen, de stad aan het Wad, bereikbaar binnen het uur vanuit de Randstad biedt rust, ruimte, natuur en cultuur maar bovenal een maritieme sfeer.

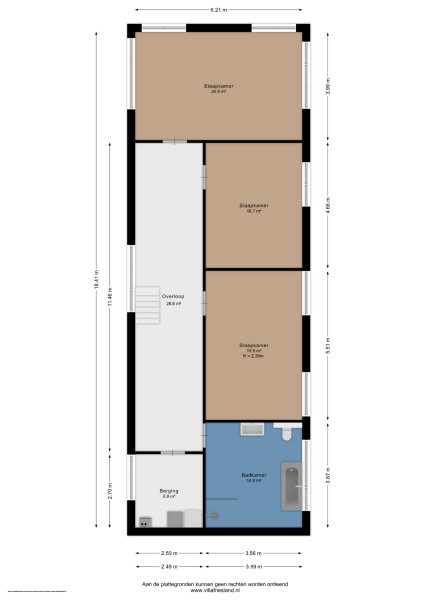
INDELING
De entree heeft een hal met garderobe en toiletruimte. Middels de metalen industriële deuren is de woonkamer bereikbaar. En dan begint het feest, wat een ruimte, wat een panoramisch zicht over het water. Door de 3 grote schuifpuien en vele raampartijen is de verbinding met het water direct gemaakt. Omdat de woonkamer met open keuken boven het souterrain zijn gesitueerd is privacy gegarandeerd.
De keuken is voorzien van een hoge kastenwand, kookeiland en diverse inbouwapparatuur, alles van Miele zoals inductie kookplaat met geïntegreerde afzuiging, combioven, 2x koel/vriescombinatie, vaatwasser en Quooker.
Direct aan de keuken is het zonnedeck van 22m2 op het westen gelegen. Wat een fantastische plek met uitzicht over de Franker trekvaart. Alles op gepaste afstand dankzij het eigen water. Aan het deck beneden het terras kan, apart van de riante extra ligplaats, nog een boot afgemeerd worden.
Achter de woonkeuken bevindt zich de ouderslaapkamer met badkamer en-suite.
De badkamer is voorzien van stijlvol reliëf tegelwerk, een inloopdouche, een wastafelmeubel en 2e toilet.
De gehele verdieping is voorzien van airconditioning en een pvc-visgraatvloer met vloerverwarming.

SOUTERRAIN
Middels een opengewerkte designtrap gelegen naast hoge raampartijen is de hal van het souterrain bereikbaar. Hier zijn nog 3 royale slaapkamers, een luxe badkamer en waskamer te vinden.
De slaapkamers zijn allen voorzien van veel daglicht. De badkamer heeft een modern ligbad, inloopdouche, chique dubbel wastafelmeubel en 3e toilet. Het moderne reliëf tegelwerk geeft de badkamer een luxe hotel chique uitstraling.
De royale wasruimte is voorzien van witgoedaansluitingen en hier zijn tevens de technische installaties opgesteld.
Het souterrain in voorzien van pvc-visgraatvloer met vloerverwarming.

GARAGE
Op eigen terrein binnen de entreepoort is de royale garage van 35m2 gelegen. Deze is voorzien van isolatie, een elektrische overheaddeur met separate loopdeur en elektra. Hier is voldoende ruimte voor bijvoorbeeld een auto, een werkplaats en fietsenberging.
De bestraatte oprit voor de garage biedt ruim voldoende parkeergelegenheid voor 2 auto’s op eigen afgesloten terrein.

TUIN/WATER
Het perceel is omsloten door een stijlvolle erfafscheiding met maritieme look en moderne electrische toegangspoort. De tuin op het zuidoosten is sfeervol aangelegd met volle (fruit) bomen, een prachtig strak gazon en diverse borders met bloeiende struiken. Er zijn dagelijks op diverse momenten van de dag prachtige vogels in de tuin te spotten van watersnippen tot Vlaamse gaaien, er broedt zelft een eend in de grote plantenbak aan het steigerterras. De tuin is voorzien van een wateraansluiting. Het zonneterras op het westen is gelegen aan de open keuken en kijkt uit over het reilen en zeilen in de Franekertrekvaart. Een heerlijke zonnige en windluwe plek om net even teruggetrokken de bootjes die voor de brug wachten te bespieden. Naast de ark is een riante ligplaats voor een zeilboot of motorjacht gesitueerd. Het betreft hier de staande mast route met ontsluiting naar zee en alle Friese meren.

BIJZONDERHEDEN
* riant perceel 890m2 met tuin en water in volle eigendom
* gebruiksoppervlakte wonen 229m2, inhoud 774m3
* 4 slaapkamers, 2 badkamers
* bouwjaar woonark 2023
* energielabel A
* geïsoleerde garage 35m2 met elektrische overheaddeur
* aangesloten op water, gas, elektra en riool
* betonnen woonschip met stabiele ligging afm. ca. 20m x 7m
* eigen riante ligplaats voor zeil/motorjacht aan staande mast route
* bestemming permanente bewoning

HARLINGEN
Harlingen aan de Waddenzee, benoemd tot de mooiste havenstad van Friesland met maar liefst zeshonderd monumenten heeft het allemaal. Wonen aan de wadden zee met haar prachtige flora en fauna, op steenworp afstand van de wadden eilanden, stranden en alle voorzieningen als gezellige restaurants, culturele evenementen, winkelstraatjes, scholen en een treinstation.
De havenstad heeft een historie die teruggaat tot het begin van de 13e eeuw. De nautische inslag bepaalt tot op de dag van vandaag de sfeer in en rond het karakteristieke havengebied waar het in de zomer een komen en gaan is van (internationale) toeristen, zeelieden en waddengebied liefhebbers.
Dankzij de locatie ten noorden van de afsluitdijk is Amsterdam bereikbaar binnen het uur.

DISCLAIMER
Deze informatie is met zorg samengesteld en deels gebaseerd op gegevens van de verkoper en/of derden. Hoewel gestreefd is naar een zo accuraat mogelijke weergave, kunnen aan de inhoud, waaronder teksten, bijlagen, plattegronden en maatvoering, geen rechten worden ontleend.
De vermelde oppervlakten zijn gemeten conform de NEN 2580-meetinstructie, waarbij afwijkingen niet zijn uit te sluiten. Deze aanbieding is geheel vrijblijvend en bedoeld als uitnodiging tot het uitbrengen van een bod. Voor objecten ouder dan 25 jaar worden standaard een ouderdoms- en indien van toepassing asbestclausule opgenomen in de koopakte.

Kenmerken

Air conditioning
Overdracht
Vraagprijs
€ 900.000 k.k.
Status
beschikbaar
Aanvaarding
in overleg
Bouw
Soort woonhuis
Woonboot
Soort bouw
vrijstaande woning
Bouwjaar
2023
Energieklasse
A
Soort dak
plat dak
Slaapkamers
4
Badkamers
2
Oppervlakten en inhoud
Woonoppervlakte
229 m2
Overige inpandige ruimte
0 m2
Gebouwgebonden buitenruimte
22 m2
Externe bergruimte
35 m2
Inhoud
774 m3
Perceeloppervlakte
890 m2
faciliteiten
Airconditioning
Schuifpui
Aan water
Vrij uitzicht
Beschutte ligging
Aan vaarwater
Baerz & Co Property Brochure

Brochure

Video’s

Plattegronden

Wilbrink & v.d. Vlugt Makelaars

Heereweg 231
2161 BG Lisse

info@wilbrinkvandervlugt.nl
+31 252 41 90 49

www.onsaanbod.nl

Informatie / bezichtigingsaanvraag

Frits Wilbrink profile image
Frits Wilbrink
Real Estate Agent

Een luxe woning kopen in Harlingen

Harlingen biedt veeleisende kopers een perfecte mix van erfgoed, culturele charme en exclusiviteit aan het water. De gemeenschap waardeert privacy en persoonlijke service, met een internationale aantrekkingskracht geworteld in authenticiteit en een verfijnde levensstijl.