Baerz & Co is een landelijk samenwerkingsverband van zorgvuldig geselecteerde boutique luxury makelaars. Samen vormen wij één netwerk, met één gedeeld aanbod. De woningen die u op onze website ziet, zijn afkomstig van alle aangesloten kantoren binnen Baerz & Co. Daardoor is niet ieder object rechtstreeks door ons kantoor in verkoop, maar door een gespecialiseerde collega binnen ons netwerk. Heeft u een woning gevonden die u aanspreekt en wilt u meer informatie? Dan brengen wij u graag persoonlijk in contact met de betreffende verkoopmakelaar, zodat u direct en zorgvuldig wordt begeleid.

HARLINGEN
Noorderhaven 102 - 8861 AR
Nederland

Frits Wilbrink profile image
Frits Wilbrink
Real Estate Agent
€995.000 k.k.
Woonoppervlakte
208m2
Perceeloppervlakte
148m2
Slaapkamers
5

Omschrijving

Monumentale grandeur met stadstuin en panoramisch havenzicht!

Wonderschoon wonen in een stad vol monumenten, waar eeuwenlange historie niet alleen zichtbaar, maar ook voelbaar is. Aan de getijdehaven Noorderhaven komt het verleden tot leven. Een omgeving die even authentiek als adembenemend is. Hier woon je niet alleen – hier leef en beleef je, als onderdeel van een levend eigen verhaal. De haven is rechtstreeks verbonden met de schoonheid van de Waddenzee (UNESCO werelderfgoed).
Harlingen, ook wel aangeduid als het kleine Amsterdam, is uitstekend bereikbaar en ligt slechts een uur rijden over de Afsluitdijk van Amsterdam met zijn internationale allure.

Beschrijving rijksmonument uit 1639

Een diep grachtenpand vol karakter
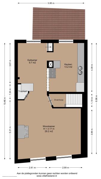
De authentieke gevel met gouden leeuwenkopjes, het middenrisaliet en de zesruitsvensters geven dit pand allure. Binnen ervaart u de ruimte dankzij hoog geornamenteerde plafonds, brede originele houten vloeren, marmeren schouwen en verfijnde lambriseringen. De vier verdiepingen tellen maar liefst negen ruime kamers en drie badkamers, praktisch ingedeeld en verrassend royaal.

Licht, uitzicht en privacy

De bel-etage biedt onder meer een inspirerende (werk/slaap/atelier)kamer met uitzonderlijk uitzicht over de haven. De stijlvolle tuinkamer wordt nu gebruikt als master bedroom met en-suite badkamer. Openslaande deuren leiden naar de besloten stadstuin op het zuiden: een zeldzame oase van rust en privacy midden in de stad.

Op de eerste verdieping bevindt zich de imposante woonkamer met kamerhoge ramen, originele schuifmechanieken en een weids uitzicht over de haven, het raadhuis en de Leeuwenbrug. Een schouwspel dat door de getijden van eb en vloed voortdurend verandert, met als levendig decor de passanten met hun plezier- en zeiljachten. Aan de achterzijde liggen de eetkamer en de authentieke keuken, voorzien van fraaie Friese witjes en granieten werkbladen.

Royale slaapvertrekken met charme

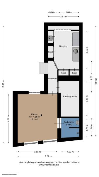
Naast de en-suite met openslaande deuren op de bel-etage, biedt de derde verdieping twee royale slaapkamers met een luxe badkamer. Deze verdieping ademt charme met zichtbare balken onder een prachtig nieuw afgetimmerd dak. Het souterrain biedt extra leefruimte met een knusse slaapkamer, een en-suite badkamer en een walk-in closet – ideaal voor gasten of een au pair.

Een woning die historie, ruimte en comfort samenbrengt
• Rijksmonumentaal woonhuis met authentieke details
• Uitstekend onderhouden – bouwkundig rapport aanwezig zonder aantekeningen
• Schilderwerk 2023; dak vernieuwd en geïsoleerd in 2015
• 5 ruime slaapkamers, 3 stijlvolle badkamers
• Beschutte stadstuin op het zuiden
• Mogelijkheid tot ligplaats voor een boot voor de deur
• Parkeren met vergunning (tot 5 vergunningen mogelijk)
• Amsterdam binnen een uur bereikbaar

Ervaar wonen op stand aan de Noorderhaven

Een unieke kans om te wonen op een plek waar historie, comfort en ruimte samenkomen. U moet het gezien én gevoeld hebben om het echt te ervaren. Laat u overtuigen door de grandeur, het uitzicht en de bijzondere sfeer van dit prachtige herenhuis. Wij nodigen u van harte uit om dit monument zelf te komen ontdekken – bel ons gerust voor een afspraak!

Harlingen

Harlingen aan de Waddenzee, ook wel “klein Amsterdam” genoemd, is met maar liefst zeshonderd monumenten verkozen tot de mooiste havenstad van Friesland. Dit is wonen aan de Waddenzee met haar prachtige flora en fauna, op steenworp afstand van de eilanden, stranden en alle voorzieningen als gezellige restaurants, winkelstraatjes, scholen, medisch dependance en een treinstation.
De havenstad heeft een historie die teruggaat tot het begin van de 13e eeuw. De nautische inslag bepaalt tot op de dag van vandaag de sfeer in en rond het karakteristieke havengebied waar het in de zomer een komen en gaan is van (internationale) toeristen, zeelieden en waddengebied liefhebbers.
Dankzij de locatie ten noorden van de afsluitdijk is Amsterdam bereikbaar binnen het uur.

DISCLAIMER
Deze informatie is met zorg samengesteld en deels gebaseerd op gegevens van de verkoper en/of derden. Hoewel gestreefd is naar een zo accuraat mogelijke weergave, kunnen aan de inhoud, waaronder teksten, bijlagen, plattegronden en maatvoering, geen rechten worden ontleend.
De vermelde oppervlakten zijn gemeten conform de NEN 2580-meetinstructie, waarbij afwijkingen niet zijn uit te sluiten. Deze aanbieding is geheel vrijblijvend en bedoeld als uitnodiging tot het uitbrengen van een bod. Voor objecten ouder dan 25 jaar worden standaard een ouderdoms- en indien van toepassing asbestclausule opgenomen in de koopakte.

Kenmerken

Overdracht
Vraagprijs
€ 995.000 k.k.
Status
beschikbaar
Aanvaarding
in overleg
Bouw
Soort woonhuis
Grachtenpand
Soort bouw
tussenwoning
Soort dak
samengesteld dak
Slaapkamers
5
Badkamers
3
Oppervlakten en inhoud
Woonoppervlakte
208 m2
Overige inpandige ruimte
0 m2
Inhoud
762 m3
Perceeloppervlakte
148 m2
faciliteiten
Mechanische ventilatie
Tv kabel
Rookkanaal
Dakraam
Glasvezel kabel
Natuurlijke ventilatie
Aan water
In centrum
Vrij uitzicht
Aan vaarwater
Baerz & Co Property Brochure

Brochure

Video’s

Plattegronden

Wilbrink & v.d. Vlugt Makelaars

Heereweg 231
2161 BG Lisse

info@wilbrinkvandervlugt.nl
+31 252 41 90 49

www.onsaanbod.nl

Informatie / bezichtigingsaanvraag

Frits Wilbrink profile image
Frits Wilbrink
Real Estate Agent

Een luxe woning kopen in Harlingen

Harlingen biedt veeleisende kopers een perfecte mix van erfgoed, culturele charme en exclusiviteit aan het water. De gemeenschap waardeert privacy en persoonlijke service, met een internationale aantrekkingskracht geworteld in authenticiteit en een verfijnde levensstijl.