Baerz & Co is een landelijk samenwerkingsverband van zorgvuldig geselecteerde boutique luxury makelaars. Samen vormen wij één netwerk, met één gedeeld aanbod. De woningen die u op onze website ziet, zijn afkomstig van alle aangesloten kantoren binnen Baerz & Co. Daardoor is niet ieder object rechtstreeks door ons kantoor in verkoop, maar door een gespecialiseerde collega binnen ons netwerk. Heeft u een woning gevonden die u aanspreekt en wilt u meer informatie? Dan brengen wij u graag persoonlijk in contact met de betreffende verkoopmakelaar, zodat u direct en zorgvuldig wordt begeleid.

HILVERSUM
Dr. P.j.h. Cuypersplein 45 - 1222 NC
Nederland

Frits Wilbrink profile image
Frits Wilbrink
Real Estate Agent
€825.000 k.k.
Woonoppervlakte
181m2
Perceeloppervlakte
198m2
Slaapkamers
6

Omschrijving

Uw Droomhuis in de Jaren '30 Stijl: Royale Gezinswoning (181 m²) met 6 Slaapkamers en 2 Badkamers!

Stap binnen in deze schitterende en ruime gezinswoning uit 1929, waar modern wooncomfort en de charme van de jaren '30 perfect samenkomen. Met maar liefst 6 slaapkamers, 2 badkamers en een zonnige achtertuin, biedt deze woning alles wat een groot gezin nodig heeft. Gelegen in een levendige straat, direct tegenover een speeltuin en grasveld, is dit de ideale plek voor een groot gezin.

Dit gemeentelijk monument is ontworpen door de gerenommeerde Hilversumse architect J. van Laren, in de kenmerkende stijl van de Amsterdamse School. Het huis is uitstekend onderhouden en volledig voorzien van dubbel glas en 8 zonnepanelen. Geniet van het vrije uitzicht aan de voorzijde, terwijl zowel de diepe voortuin als de beschutte, zonnige achtertuin u alle privacy bieden die u zich kunt wensen.

Gelegen in een geliefde en kindvriendelijke buurt, op loopafstand van de grootste vers-supermarkt van het Gooi, winkelcentrum Seinhorst en nabij het bruisende centrum van Hilversum. Hier vindt u het NS-station, winkels, gezellige terrasjes, een mooi marktplein en uitstekende restaurants. Bovendien bent u via de A1 en A27 binnen twintig minuten in het hart van Amsterdam, Utrecht en Amersfoort.

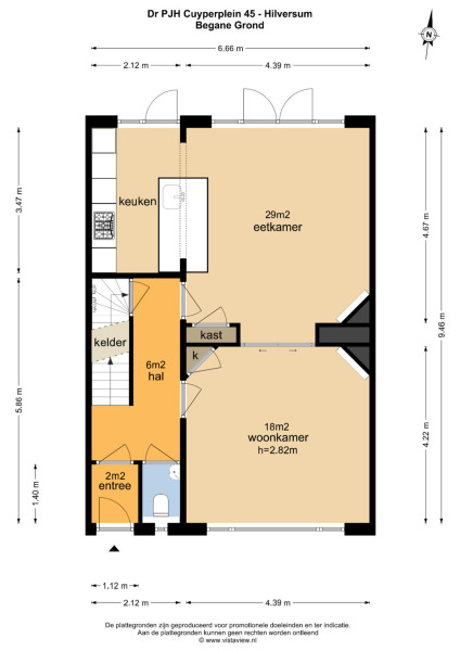
Indeling:
Begane grond: Bij binnenkomst wordt u verwelkomd door een elegante entree, gevolgd door een vestibule en een hal met een prachtige tegelvloer. Hier bevindt zich ook een toilet met fonteintje en toegang tot de koele stahoge kelder met meterkast. De sfeervolle woonkamer en-suite beschikt over twee originele schouwen, een mooie parketvloer en openslaande deuren naar de zonnige achtertuin met vrijstaande schuur en achterom. De moderne open keuken, voorzien van diverse inbouwapparatuur, heeft eveneens een deur naar de achtertuin.

Eerste verdieping: De eerste verdieping biedt een overloop, een royale hoofdslaapkamer met vaste kast, een ruime tweede slaapkamer met schouw en vaste kast, en een derde slaapkamer met deur naar het balkon. De moderne badkamer is uitgerust met een douche, dubbele wastafel, designradiator en een separaat toilet.

Tweede verdieping: De volledig verbouwde zolderverdieping beschikt over een ruime vierde slaapkamer met dakkapel en inloopkast, een vijfde en zesde kamer met beide een Velux dakraam en slaapvide. Daarnaast is er een separaat toilet en een tweede, moderne badkamer met ligbad, douche, wastafel en aansluitingen voor wasmachine en droger. Tot slot is er een ruime bergvliering aanwezig.

Bijzonderheden:
- royaal, goed onderhouden familiehuis;
- gelegen in een kindvriendelijke buurt nabij alle voorzieningen;
- maar liefst 6 slaapkamers en 2 badkamers;
- bouwjaar 1929;
- gemeentelijk monument;
- woonoppervlak 180 m² NEN gemeten;
- volledig voorzien van dubbel glas;
- 8 zonnepanelen;
- perceeloppervlak 198 m²;
- oplevering in overleg

++++++++

Your Dream House in the 1930s Style: Spacious Family House (181 m²) with 6 Bedrooms and 2 Bathrooms!

Step inside this stunning and spacious 1929 family home, where modern living comforts and 1930s charm come together perfectly. With no less than 6 bedrooms, 2 bathrooms and a sunny backyard, this home offers everything a large family needs. Located in a lively street, directly opposite a playground and lawn, this is the ideal place for a large family.

This municipal monument was designed by renowned Hilversum architect J. van Laren, in the distinctive style of the Amsterdam School. The house is excellently maintained and fully double-glazed with 8 solar panels. Enjoy the unobstructed view at the front, while both the deep front garden and the sheltered, sunny rear garden offer you all the privacy you could wish for.

Located in a popular and child-friendly neighbourhood, within walking distance of the largest fresh supermarket in the Gooi, shopping centre Seinhorst and near the bustling centre of Hilversum. Here you will find the NS railway station, shops, cosy terraces, a beautiful market square and excellent restaurants. Moreover, via the A1 and A27, you are in the heart of Amsterdam, Utrecht and Amersfoort within twenty minutes.

Layout:
Ground floor: Upon entering, you are welcomed by an elegant entrance hall, followed by a vestibule and a hallway with a beautiful tiled floor. Here you will also find a toilet with hand basin and access to the cool standing cellar with meter cupboard. The cosy living room en-suite features two original fireplaces, a beautiful parquet floor and French doors to the sunny back garden with detached shed and back entrance. The modern open-plan kitchen, equipped with various built-in appliances, also has a door to the back garden.

First floor: The first floor offers a landing, a generous master bedroom with wardrobe, a spacious second bedroom with fireplace and wardrobe, and a third bedroom with door to the balcony. The modern bathroom is equipped with a shower, double sink, design radiator and a separate toilet.

Second floor: The fully remodelled attic floor features a spacious fourth bedroom with dormer window and walk-in closet, a fifth and sixth room with both a Velux skylight and sleeping loft. There is also a separate toilet and a second, modern bathroom with bath, shower, washbasin and connections for washing machine and dryer. Finally, there is a spacious storage attic.

Details:
- generous, well-maintained family home;
- located in a child-friendly neighbourhood near all amenities;
- no less than 6 bedrooms and 2 bathrooms;
- built in 1929;
- municipal monument;
- living area 180 m² NEN measured;
- fully double glazed
- 8 solar panels;
- plot surface 198 m²;
- delivery in consultation

Kenmerken

Zonnepanelen
Overdracht
Vraagprijs
€ 825.000 k.k.
Status
verkocht onder voorbehoud
Aanvaarding
in overleg
Bouw
Soort woonhuis
Eengezinswoning
Soort bouw
tussenwoning
Bouwjaar
1929
Soort dak
zadeldak
Slaapkamers
6
Badkamers
2
Oppervlakten en inhoud
Woonoppervlakte
181 m2
Overige inpandige ruimte
7 m2
Gebouwgebonden buitenruimte
2 m2
Externe bergruimte
6 m2
Inhoud
694 m3
Perceeloppervlakte
198 m2
faciliteiten
Zonnepanelen
Aan rustige weg
In woonwijk
Baerz & Co Property Brochure

Brochure

Video’s

Wilbrink & v.d. Vlugt Makelaars

Heereweg 231
2161 BG Lisse

info@wilbrinkvandervlugt.nl
+31 252 41 90 49

www.onsaanbod.nl

Informatie / bezichtigingsaanvraag

Frits Wilbrink profile image
Frits Wilbrink
Real Estate Agent

Een luxe woning kopen in Hilversum

Hilversum biedt verfijnd wonen, erfgoedpanden en culturele klasse binnen een internationale gemeenschap. Persoonlijk advies waarborgt een soepel traject voor veeleisende kopers en verkopers die privacy en duurzame waarde zoeken.