Baerz & Co is een landelijk samenwerkingsverband van zorgvuldig geselecteerde boutique luxury makelaars. Samen vormen wij één netwerk, met één gedeeld aanbod. De woningen die u op onze website ziet, zijn afkomstig van alle aangesloten kantoren binnen Baerz & Co. Daardoor is niet ieder object rechtstreeks door ons kantoor in verkoop, maar door een gespecialiseerde collega binnen ons netwerk. Heeft u een woning gevonden die u aanspreekt en wilt u meer informatie? Dan brengen wij u graag persoonlijk in contact met de betreffende verkoopmakelaar, zodat u direct en zorgvuldig wordt begeleid.

LANDSMEER
Zuiderzeelaan 105 - 1121 RA
Nederland

€798.011 k.k.
Woonoppervlakte
132m2
Perceeloppervlakte
147m2
Slaapkamers
5

Omschrijving

Zuiderzeelaan 105 te Landsmeer

Bel nu voor het maken van een bezichtigingsafspraak voor deze ruime en hoogwaardig afgewerkte eengezinswoning van ca. 132 m², gelegen in een jonge en zeer gewilde woonwijk in Landsmeer. Tuin op het Zuiden, gelegen aan vaarwater en voorzien van energielabel A!

Een woning waar ruimte, licht en comfort op hoog niveau samenkomen. Instapklaar en tot in de puntjes afgewerkt!

De woning is gelegen in een rustige, ruim opgezette en kindvriendelijke woonwijk met voldoende parkeergelegenheid voor de deur. Landsmeer combineert een groen en dorps karakter met de nabijheid van Amsterdam. Binnen enkele minuten bereikt u de ring A10 en via de IJ-tunnel bent u snel in de stad. De NDSM-werf ligt op circa 15 minuten fietsen en binnen 20 minuten staat u bij de pont richting Amsterdam Centraal. In de directe omgeving bevinden zich diverse scholen, winkels en sportvoorzieningen. Ook recreatiegebied ’t Twiske ligt op korte afstand en biedt volop mogelijkheden voor ontspanning, natuur en recreatie.

Indeling
Begane grond
Via de entree komt u in de hal met meterkast en een modern zwevend toilet met fonteintje. Aan de voorzijde van de woning bevindt zich de open keuken, voorzien van diverse inbouwapparatuur en een ruim werkblad. De woonkamer ligt aan de tuinzijde en biedt middels openslaande deuren toegang tot de fraai aangelegde achtertuin. Daarnaast beschikt de begane grond over een praktische trapkast.

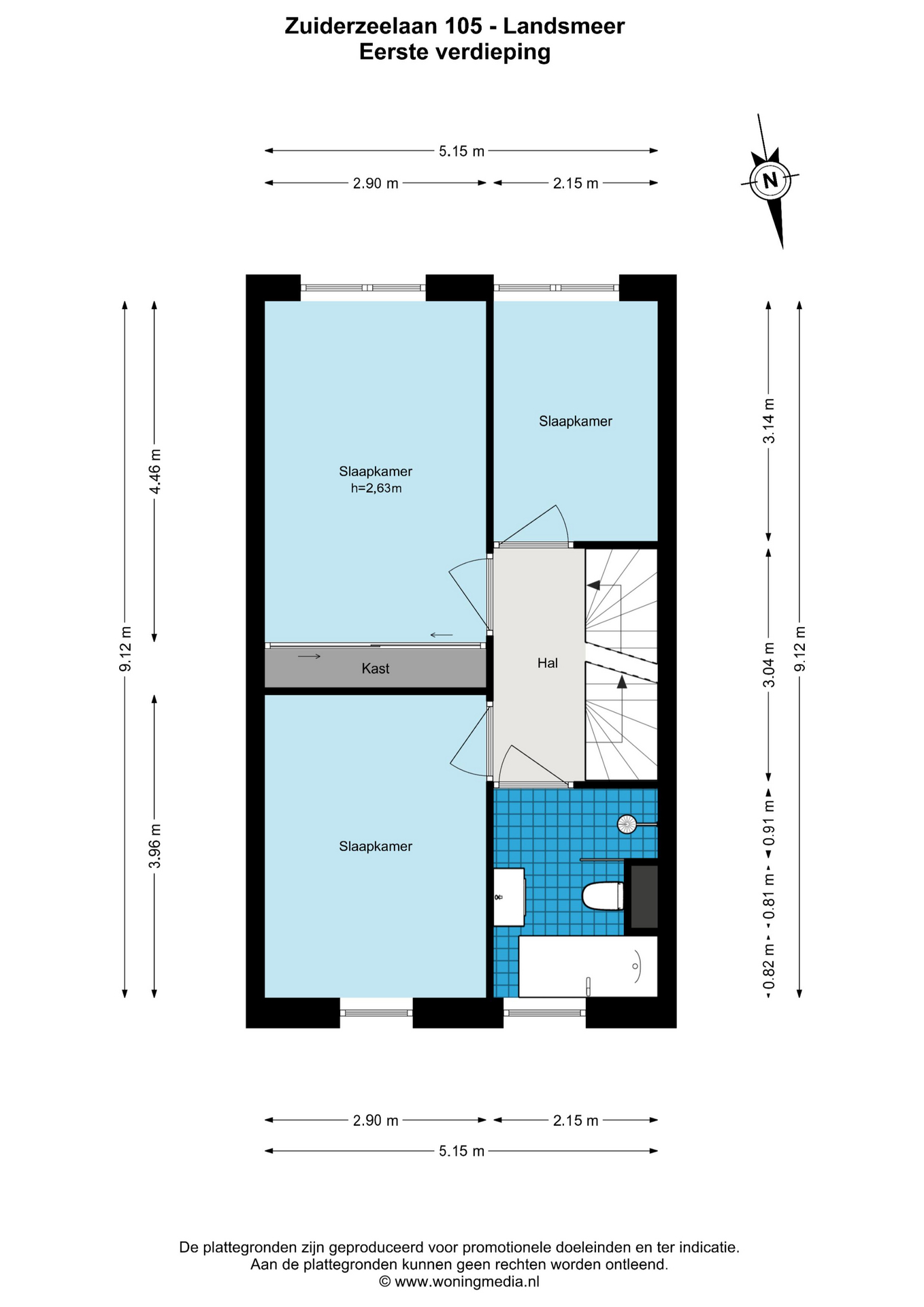
Eerste verdieping
De verdieping bestaat uit een overloop met toegang tot drie goed bemeten slaapkamers. De slaapkamer aan de voorzijde en de twee slaapkamers aan de achterzijde zijn allen netjes afgewerkt en voorzien van veel daglicht. De moderne badkamer is voorzien van een ligbad, inloopdouche, tweede toilet, wastafelmeubel en designradiator.

Tweede verdieping
Via de vaste trap bereikt u de tweede verdieping. Hier bevinden zich nog eens twee volwaardige slaapkamers, beide voorzien van daglicht. Daarnaast is er een separate ruimte met de wasmachine- en drogeraansluiting en de technische installaties.

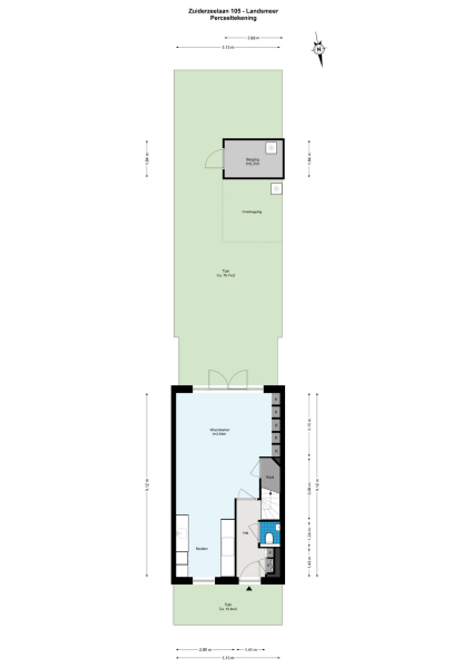
Tuin
De achtertuin is fraai en verzorgd aangelegd en biedt veel privacy. De tuin beschikt over een vrijstaande berging en een achterom. Een heerlijke plek om in alle rust te genieten van het buitenleven.

Noemenswaardigheden:
- Instapklare gezinswoning
- Maar liefst 5 slaapkamers, ideaal voor gezin/thuiswerken
- Fraai aangelegde tuin op het Zuiden met privacy, berging en achterom
- Gelegen in populaire, kindvriendelijke woonwijk
- Op korte afstand van Amsterdam én ’t Twiske
- Woonoppervlakte ca. 132 m² (NEN 2580 meetrapport aanwezig)
- Vrij parkeren voor de deur

Kenmerken

Overdracht
Vraagprijs
€ 798.011 k.k.
Status
verkocht onder voorbehoud
Aanvaarding
in overleg
Bouw
Soort woonhuis
Eengezinswoning
Soort bouw
tussenwoning
Bouwjaar
2016
Energieklasse
A
Soort dak
zadeldak
Slaapkamers
5
Badkamers
1
Oppervlakten en inhoud
Woonoppervlakte
132 m2
Overige inpandige ruimte
3 m2
Externe bergruimte
5 m2
Inhoud
512 m3
Perceeloppervlakte
147 m2
faciliteiten
Mechanische ventilatie
Tv kabel
Dakraam
Aan water
Aan rustige weg
In woonwijk
Vrij uitzicht
Aan vaarwater
Baerz & Co Property Brochure

Brochure

Video’s

Wilbrink & v.d. Vlugt Makelaars

Heereweg 231
2161 BG Lisse

info@wilbrinkvandervlugt.nl
+31 252 41 90 49

www.onsaanbod.nl

Informatie / bezichtigingsaanvraag

Frits Wilbrink profile image
Frits Wilbrink
Real Estate Agent

Een luxe woning kopen in Landsmeer

Landsmeer staat voor harmonieus en exclusief wonen met hoogwaardige voorzieningen, natuurlijke schoonheid en een internationale gemeenschap. De subtiele balans van privacy en verbondenheid trekt een veeleisend, mondiaal publiek.