Ons kantoor is lid van Baerz & Co Luxury Homes; een internationaal platform dat exclusieve woningmakelaars met elkaar verbindt. Neem contact op met ons secretariaat voor meer informatie over het landelijke aanbod, waarvan u hieronder een selectie kunt bekijken.

LEIDEN
Hooglandse Kerkgracht 23 - 2312 HS
Nederland

Michiel de Jong RM profile image
Michiel de Jong RM
NVM Register Makelaar - Partner
€2.495.000 k.k.
Woonoppervlakte
445m2
Perceeloppervlakte
657m2
Slaapkamers
4

Omschrijving

Uniek monumentaal object met schitterende tuin van ca. 500 m² op toplocatie

Hoogst zelden komt een dergelijk uniek en historisch object op de markt in Leiden. Een uitstekend onderhouden woonhuis met een woonoppervlakte van maar liefst ca. 445 m² en een prachtige zonnige tuin op het westen.

De Hooglandse Kerkgracht is zondermeer één van de mooiste lanen van Leiden. Sinds de herinrichting in 2004 is deze voormalige gracht autoluw en staat vooral bekend om de vele monumentale gevels en het sfeervolle middenterrein waar twee prachtige bomenrijen ‘s-zomers zorgen voor een haast Mediterrane sfeer. Een mooiere locatie in het centrum van Leiden is nauwelijks denkbaar.

Het uiterlijk en de indeling van dit prachtige woonhuis is in essentie nauwelijks veranderd sinds de vroeg 18e eeuw. Wel is rond 1900 de woning ingrijpend verbouwd door de toenmalige bewoner (en architect) Leo van der Laan; van zijn hand is o.a. de unieke stalen overkapping tussen voor- en achterhuis met glas en klinknagels. En in 2013 is het gehele pand grondig gerenoveerd met o.a. als doel het geheel te verduurzamen. Zo is o.a. de gehele kap vernieuwd en geïsoleerd, zijn de verwarmingssystemen van het voor-en achterhuis gespitst van elkaar, zijn de goten en hemelwaterafvoeren vernieuwd, etc. Onlangs zijn ook alle ramen en kozijnen aan de gehele buitenzijde geschilderd. Kortom, het geheel heeft zeer veel van zijn oorspronkelijke karakter behouden én is uitstekend onderhouden.

De tuin is wellicht wel het échte ‘unique selling point’ van dit object .... een tuin met meerdere terrassen en zithoekjes voor schaduw en zon; een tuin mét achterom; een tuin met prachtige volwassen bomen, kleurrijke struiken en bloemen en plek voor een eigen groentetuin; én een tuin met prachtige doorkijkjes naar bijv. ‘De Burcht’ en de Hooglandse Kerk.

Voor een goed beeld van de indeling en de sfeer van dit unieke object verwijzen wij naar de plattegronden en de prachtige foto’s. Voor het echte ‘gevoel’ is een bezichtiging uiteraard noodzakelijk.

Ontdek Leiden met Baerz, Uw Vertrouwde Personal Property Finder & Advisor

Navigeren in de Leidse markt vraagt om diepgaande kennis van lokale tradities, regelgeving en discrete off-market mogelijkheden. Voorname adviseurs geven toegang tot exclusieve portefeuilles, onderhandelen deskundig en bieden integrale begeleiding bij het structureren van transacties. Hun vermogen om trends te duiden, schaarse kansen te herkennen en belangen te beschermen garandeert strategisch voordeel en rust tijdens het gehele aankooptraject.

Speciale Kenmerken

Alarm system

Kenmerken

Overdracht
Vraagprijs
€ 2.495.000 k.k.
Status
onder bod
Aanvaarding
in overleg
Bouw
Soort woonhuis
Herenhuis
Soort bouw
tussenwoning
Bouwjaar
1738
Soort dak
samengesteld dak
Slaapkamers
4
Badkamers
2
Oppervlakten en inhoud
Woonoppervlakte
445 m2
Overige inpandige ruimte
0 m2
Gebouwgebonden buitenruimte
10 m2
Inhoud
1575 m3
Perceeloppervlakte
657 m2
faciliteiten
Mechanische ventilatie
Alarminstallatie
Tv kabel
Aan rustige weg
In centrum
Baerz & Co Property Brochure

Brochure

Video’s

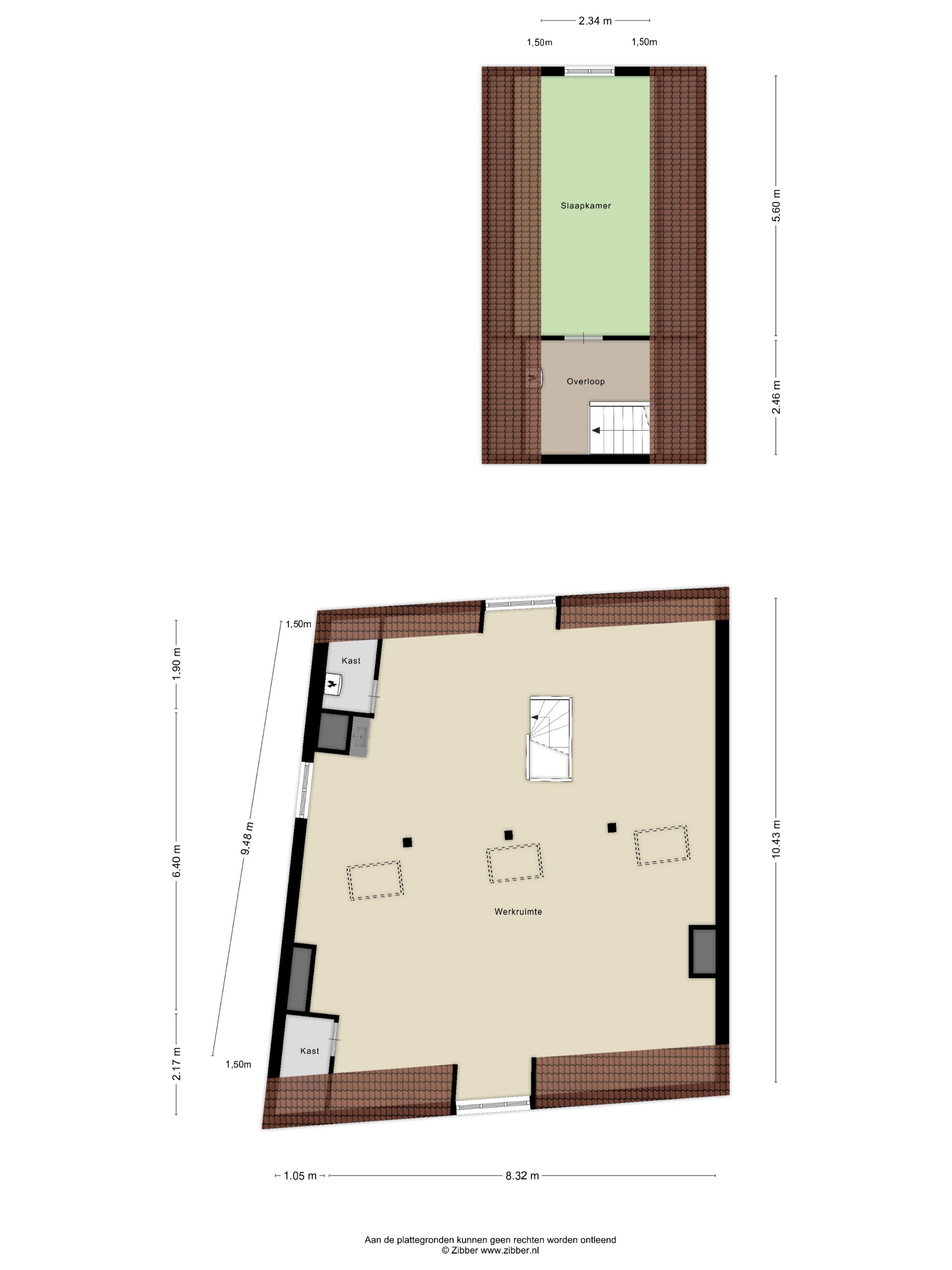
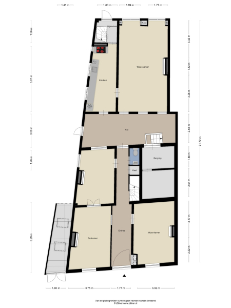
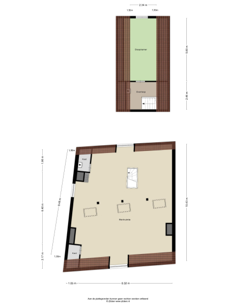
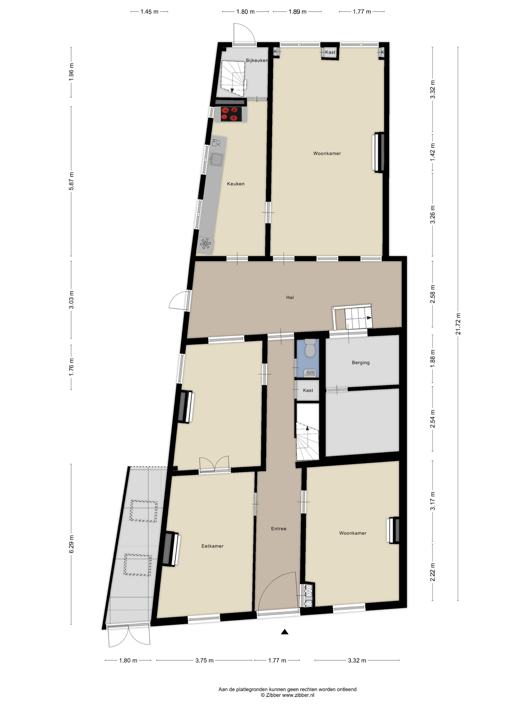
Plattegronden

Graal Makelaardij

Rapenburg 4
2311 EV Leiden

info@graalmakelaardij.nl
+31 (0)71 51 61 000

www.graalmakelaardij.nl

Informatie / bezichtigingsaanvraag

Michiel de Jong RM profile image
Michiel de Jong RM
NVM Register Makelaar - Partner