Ons kantoor is lid van Baerz & Co Luxury Homes; een internationaal platform dat exclusieve woningmakelaars met elkaar verbindt. Neem contact op met ons secretariaat voor meer informatie over het landelijke aanbod, waarvan u hieronder een selectie kunt bekijken.

Villa te koop in ROTTERDAM

ROTTERDAM Molenlaan 15 - 3055 EE Nederland


Joris van Oosten profile image
Joris van Oosten
Real Estate Agent
+31 6 42 19 84 37
info@vanoostenmakelaardij.nl

J.J. Van Oosten Makelaardij BV
Straatweg 225
3054 AG Rotterdam
NETHERLANDS
+31 10 422 11 00
www.vanoostenmakelaardij.nl
info@vanoostenmakelaardij.nl

Woonoppervlakte
177m2
Perceeloppervlakte
379m2
Slaapkamers
4

Omschrijving

Luxe en moderne twee-onder-een-kapwoning aan de Molenlaan

Aan de geliefde Molenlaan in Rotterdam ligt deze ruime twee-onder-een-kapwoning (ca. 180m2) : een écht gezinshuis met 4 slaapkamers, ruime en lichte living, moderne open leefkeuken, een royale voor- en achtertuin, parkeergelegenheid op eigen terrein, laadpaal en volop leefruimte. De woning is in 2019 verbouwd onder begeleiding van een architect en is sindsdien tot in de puntjes afgewerkt. Licht, luxe en comfort staan hier centraal, gecombineerd met alle praktische voorzieningen die een gezin zich kan wensen.

Omgeving
De Molenlaan is één van de bekendste lanen van Hillegersberg, omgeven door groen, uitstekende scholen, sportclubs en de Bergse Plassen op korte afstand. Met winkels, horeca en openbaar vervoer in de buurt én goede verbindingen naar de stad en uitvalswegen, is dit een toplocatie voor wie comfortabel en rustig wil wonen, maar toch de stad binnen handbereik wil hebben.

Indeling
Voortuin
De ruime, fraai aangelegde voortuin biedt niet alleen een representatieve entree, maar ook veel gemak. Er is parkeergelegenheid op eigen terrein voor twee auto’s, een laadpaal en voldoende plek voor meerdere fietsen.

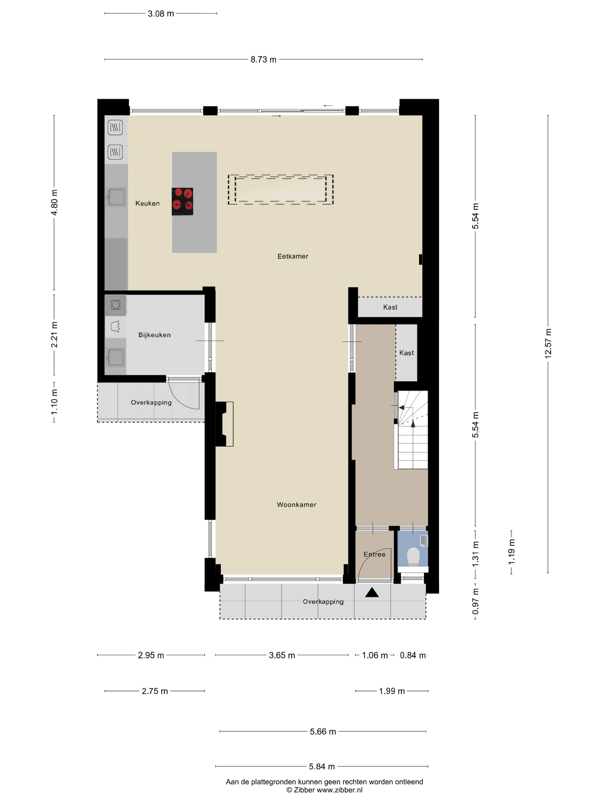
Begane grond
De begane grond ademt ruimte en licht. In 2019 is de woning nagenoeg volledig verbouwd en voorzien van een moderne leefkeuken met luxe inbouwapparatuur, een grote koelkast, vriezer en wijnklimaatkast. De royale woonkamer met glazen pui over de volledige breedte van het huis en tweedelige schuifdeur geeft direct toegang tot de achtertuin. Daarnaast is er een praktische bijkeuken met aansluitingen voor wasmachine en droger.

Achtertuin
De zonnige, diepe achtertuin is fraai aangelegd en kindvriendelijk ingericht. Er is geen achteruitgang, waardoor de tuin volledig beschermd is. Voor kinderen staat er een speeltoestel, en voor volwassenen is er volop ruimte om te genieten van zon en privacy. Verder beschikt de tuin over een moderne berging en sfeervolle verlichting op tijdsschakelaar.

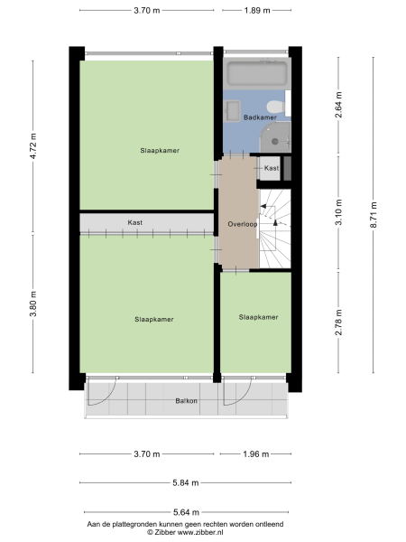
Eerste verdieping
Op de eerste verdieping bevinden zich twee ruime slaapkamers en een derde kleinere kamer, ideaal als kinderkamer of thuiswerkplek. De badkamer is netjes afgewerkt en beschikt over een ligbad, perfect voor gezinnen. Een grote inbouwkast biedt extra bergruimte.

Tweede verdieping
De tweede verdieping is een echte eyecatcher en vormt de master bedroom van maar liefst 45 m². Deze verdieping is eveneens in 2019 volledig vernieuwd onder architectuur. De moderne inloopbadkamer, airconditioning (ook te gebruiken als verwarming), grote inbouwkast en bergruimte achter de knieschotten maken dit tot een luxe privéverdieping.

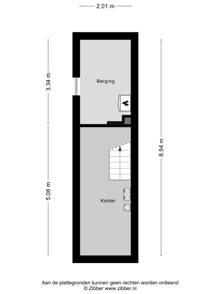
Kelder
Tot slot beschikt de woning over een ruime kelder van ca. 16 m², ideaal voor opslag, een wijnkelder of hobbyruimte.

Bijzonderheden;
- bouwjaar 1956
- gelegen op ca. 379 m² eigen grond
- gebruiksoppervlakte wonen ca. 177 m² (conform BBMI / NEN2580)
- gebruiksoppervlakte overige inpandige ruimte ca. 17 m² (conform BBMI / NEN2580)
- gebouwgebonden buitenruimte ca. 14 m² (conform BBMI / NEN2580)
- externe bergruimte ca. 8 m² (conform BBMI / NEN2580)
- nagenoeg volledig verbouwd in 2019 onder begeleiding van een architect
- energielabel C
- 12 zonnepanelen (2023 geplaatst)
- vier royale slaapkamers verdeeld over twee verdiepingen
- twee moderne badkamers met eigentijdse afwerking
- Fraai aangelegde, zonnige en kindvriendelijke achtertuin met speeltoestel
- diepe en brede, verzorgde voortuin voor extra privacy en groen
- kelder voor optimale opbergruimte
- toplocatie in Hillegersberg – vlak bij de Bergse Plassen, scholen, sportclubs en de winkels van de Bergse Dorpsstraat

Oplevering in overleg

Voor aanvullende informatie over deze woning kunt u de eigen website (adres+huisnummer) bezoeken.

J.J. van Oosten Makelaardij is de NVM-makelaar van de verkoper. Wij adviseren u uw eigen NVM-makelaar in te schakelen om uw belangen te behartigen bij de aankoop van dit object.

Aan deze aanbiedingstekst kunnen geen rechten worden ontleend.

De gebruiksoppervlakte van de woning is opgemeten conform de branchebrede meetinstructie (BBMI). De BBMI is gebaseerd op de NEN2580. De BBMI is bedoeld om een meer eenduidige manier van meten toe te passen voor het geven van een indicatie van de gebruiksoppervlakte. De meetinstructie sluit verschillen in meetuitkomsten niet volledig uit, door bijvoorbeeld interpretatieverschillen, afrondingen of beperkingen bij het uitvoeren van de meting.

Kenmerken

Overdracht
Vraagprijs
€ 1.200.000 k.k.
Status
verkocht onder voorbehoud
Aanvaarding
in overleg
Bouw
Soort woonhuis
Eengezinswoning
Soort bouw
twee onder een kapwoning
Bouwjaar
1956
Energieklasse
C
Soort dak
zadeldak
Slaapkamers
4
Badkamers
2
Oppervlakten en inhoud
Woonoppervlakte
177 m2
Overige inpandige ruimte
17 m2
Gebouwgebonden buitenruimte
14 m2
Externe bergruimte
8 m2
Inhoud
689 m3
Perceeloppervlakte
379 m2
faciliteiten
Mechanische ventilatie
Alarminstallatie
Tv kabel
Airconditioning
Glasvezel kabel
Zonnepanelen
In woonwijk
Beschutte ligging
Baerz & Co Property Brochure

Brochure

Informatie / bezichtigingsaanvraag

Video's

Foto's

Plattegronden