Welkom bij Wilbrink & v.d. Vlugt Makelaars Internationaal. Ook ver buiten Nederland zijn wij zeer actief. Via ons internationale netwerk binnen Baerz & Co Luxury Homes begeleiden onze Nederlandse (!) partners u vakkundig bij de aankoop van exclusieve tweede huizen. U vindt ons in 20 landen rond de Middellandse zee, de Alpen, Mexico en Dubai. Neem voor meer informatie contact op met ons secretariaat.

WAHLBACH
Frankrijk

Chantal Cunningham profile image
Chantal Cunningham
Chief Property Advisory
€848.000
Woonoppervlakte
280m2
Perceeloppervlakte
1900m2
Slaapkamers
5

Omschrijving

Gelegen in het schilderachtige dorp Wahlbach, in het hart van Sundgau (Elzas), biedt deze prachtige houten villa in Long Island-stijl ongeveer 280 m² woonruimte verdeeld over drie zorgvuldig ontworpen verdiepingen. Slechts 15 minuten van Bazel (Zwitserland) en dicht bij Duitsland, combineert deze locatie de rust van het platteland met de voordelen van een internationale ligging.

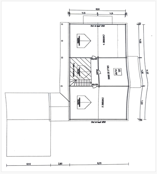
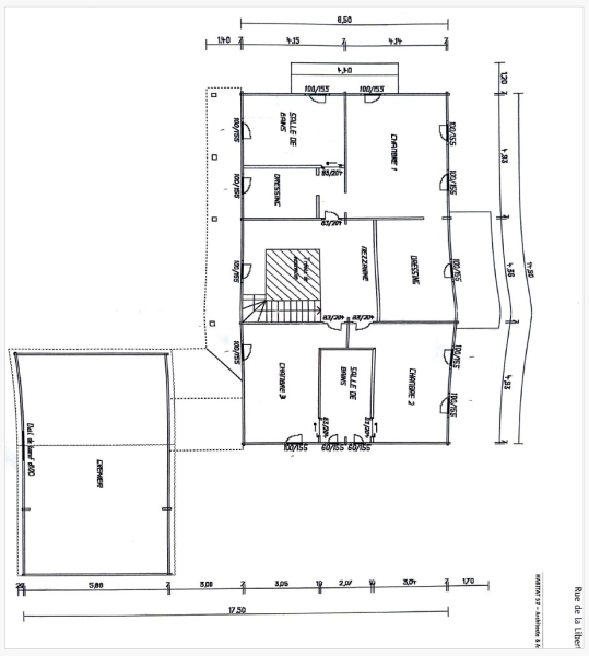
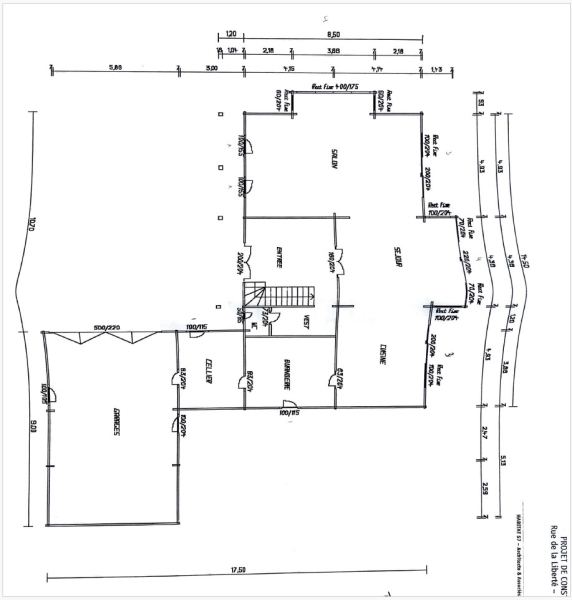
De woning, gebouwd in 2011 en uitstekend onderhouden, beschikt over een ruime, lichte woon- en eetkamer met een gezellige houtkachel, een open keuken die ideaal is voor familieleven en gastvrijheid, vijf royale slaapkamers, twee stijlvolle kleedkamers ("Dressing Madame" en "Dressing Monsieur"), drie badkamers en vier toiletten. Daarnaast zijn er een mezzanine, een aparte wasruimte, een berging en een wijnkelder aanwezig. De garage van 52 m² biedt plaats aan vier auto's. De woning beschikt over een snelle glasvezel-internetverbinding en een satelliet-tv-aansluiting, waardoor u ook in deze rustige, natuurlijke omgeving kunt genieten van modern comfort en connectiviteit.

Het perceel van bijna 1900 m² biedt volop ruimte en rust, met een idyllisch beekje dat langs de achterzijde van het terrein stroomt — perfect voor wie op zoek is naar natuur en ontspanning.
Sundgau, bekend om zijn glooiende groene heuvels, charmante dorpjes is een verborgen parel in de Elzas. De regio ademt geschiedenis, met middeleeuwse kastelen, vakwerkhuizen en Romaanse kapellen verspreid over het landschap. De Elzas zelf biedt een fascinerende mix van Franse en Duitse invloeden, zichtbaar in cultuur, taal en gastronomie.

Voor liefhebbers van het buitenleven liggen de Vogezen met wandel-, fiets- en skimogelijkheden vlakbij. Ook het Zwarte Woud en de Jura zijn perfect voor een dagtocht of weekendtrip. Bazel, met zijn musea van wereldklasse, internationale luchthaven en bruisende culturele leven, ligt om de hoek en biedt het beste van twee werelden.

Ideaal voor wie houdt van ruimte, rust, natuur én culturele rijkdom.

Ontdek Wahlbach met Baerz, Uw Vertrouwde Personal Property Finder & Advisor

De discrete vastgoedmarkt vraagt om specialistisch advies. Lokale experts bieden toegang tot off-market aanbod en hebben de onderhandelingsvaardigheden om bijzondere objecten te bemachtigen. Ze kennen grensprocedures en vastgoedspecificaties en zorgen voor maatwerkoplossingen die het erfgoed in iedere transactie veiligstellen.

Vermijd veelvoorkomende valkuilen

Internationale kopers verspillen vaak kostbare tijd aan dubbele, verouderde of misleidende online aanbiedingen, en ook omdat bijna 30% van de luxe woningen nooit openbaar op de markt verschijnt. Verkopersmakelaars behartigen de belangen van de verkoper, niet die van kopers. Alleen al het aanvragen van informatie over een woning kan ertoe leiden dat een verkoopmakelaar u zonder uw toestemming als “cliënt” registreert.
Met Baerz Property Finders & Advisors voorkomt u al deze valkuilen volledig. Wij werken uitsluitend in uw belang en bieden onafhankelijke vertegenwoordiging, heldere begeleiding en toegang tot alle beschikbare woningen, inclusief off-market aanbiedingen die anderen nooit te zien krijgen.

Interesse in een Personal Property Advisor?

Wij tonen u alle beschikbare woningen op één plek. Neem gerust contact met ons op om te zien hoe wij aan uw wensen kunnen voldoen en uitsluitend uw belangen zullen beschermen.

Kenmerken

Overdracht
Vraagprijs
€ 848.000
BAE
Bouw
Soort woonhuis
Villa
Bouwjaar
2011
Energieklasse
C
Slaapkamers
5
Badkamers
3
Oppervlakten en inhoud
Woonoppervlakte
280 m2
Perceeloppervlakte
1900 m2
faciliteiten
Hiking
Mountain biking
Skiing
Surroundings: Rolling green hills - Charming villages - Romanesque chapels
Baerz & Co Property Brochure

Brochure

Video’s

Plattegronden

Informatie / bezichtigingsaanvraag

Chantal Cunningham profile image
Chantal Cunningham
Chief Property Advisory

Een luxe woning kopen in Wahlbach

Wahlbach staat voor een verfijnde mix van erfgoed, privacy en maatwerkdiensten. Internationale kopers waarderen de authentieke levensstijl, exclusieve kansen en optimale wereldwijde bereikbaarheid. De gemeenschap waarborgt duurzame waarde en ingetogen elegantie.